We present this spacious commercial premises located in one of the most sought-after areas of Torrevieja: Playa del Cura, just 130 meters from the sea. A strategic location that combines high pedestrian traffic throughout the year with a large influx of tourists during the high season.
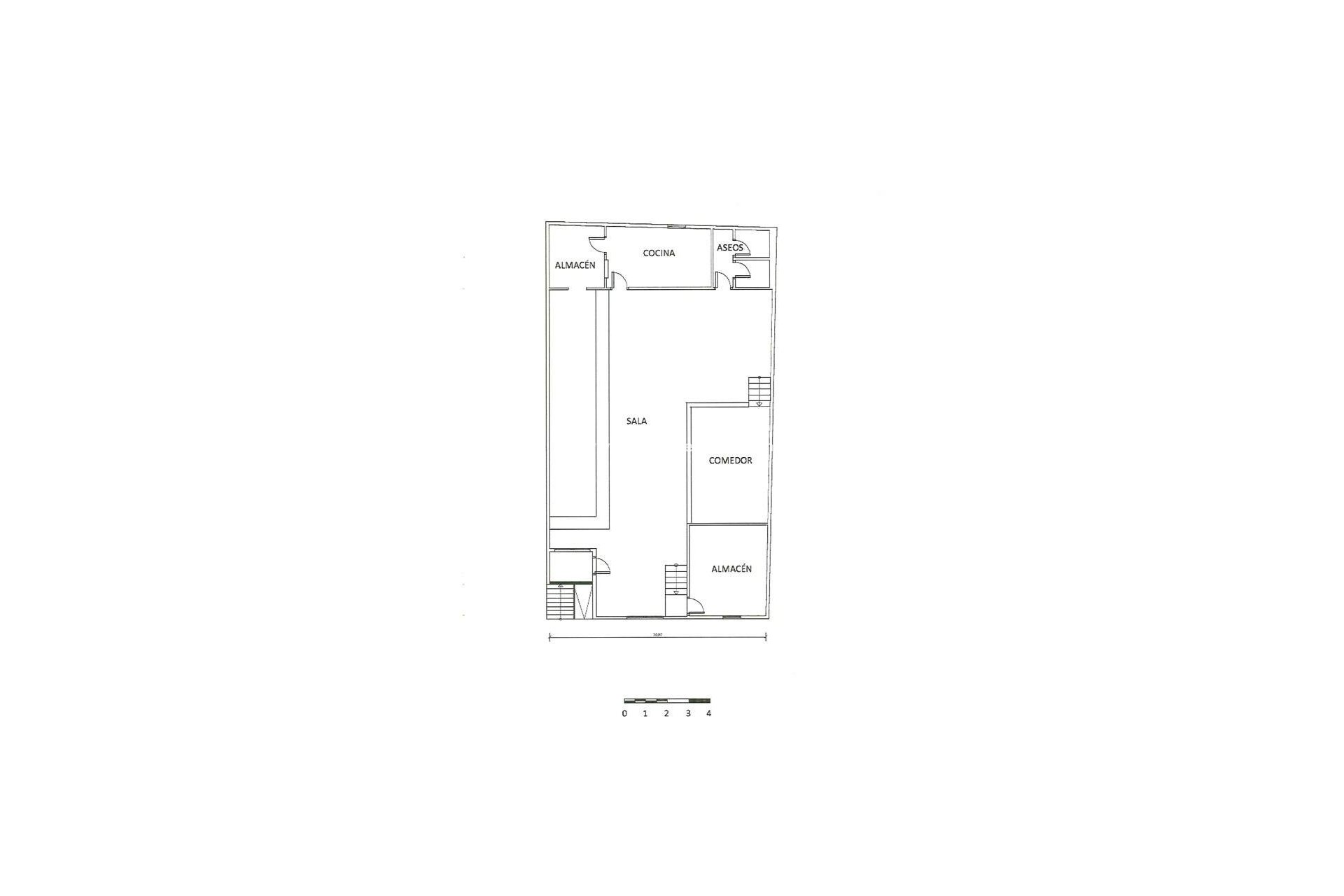
The property offers 149 m2 built, providing a spacious and versatile area that can be adapted to many different types of businesses.
The premises currently require complete renovation, offering an excellent opportunity to design the space entirely according to the needs of the business. Its characteristics make it ideal for developing a restaurant, café, shop, office, boutique gym, beauty center or any other commercial project.
The property also features two bathrooms and a large storage room, adding functionality and additional storage possibilities.
In summary, this is an excellent investment opportunity in one of the most attractive areas of the Costa Blanca, perfect for entrepreneurs and investors looking for a commercial property with great profitability potential near the sea.