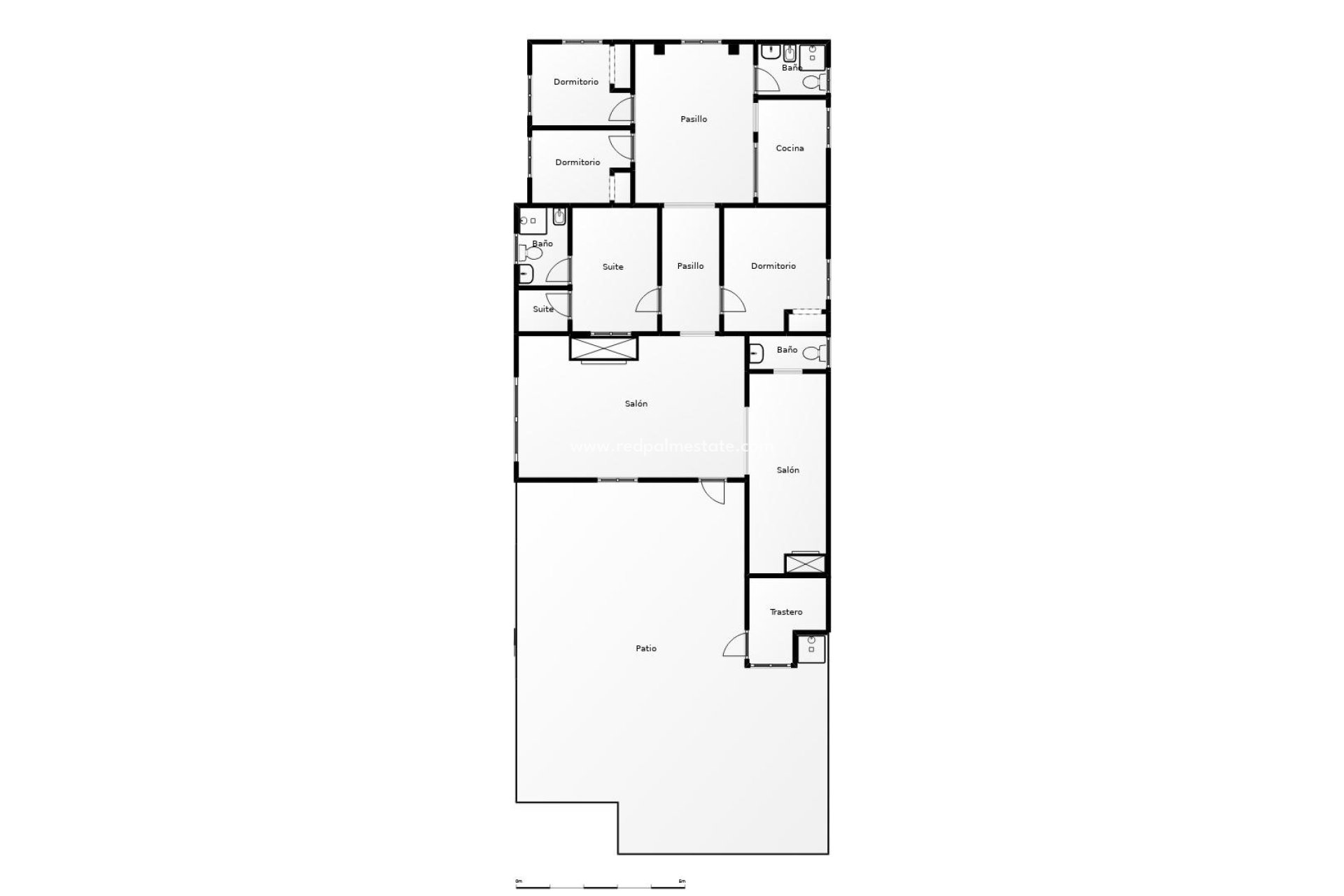
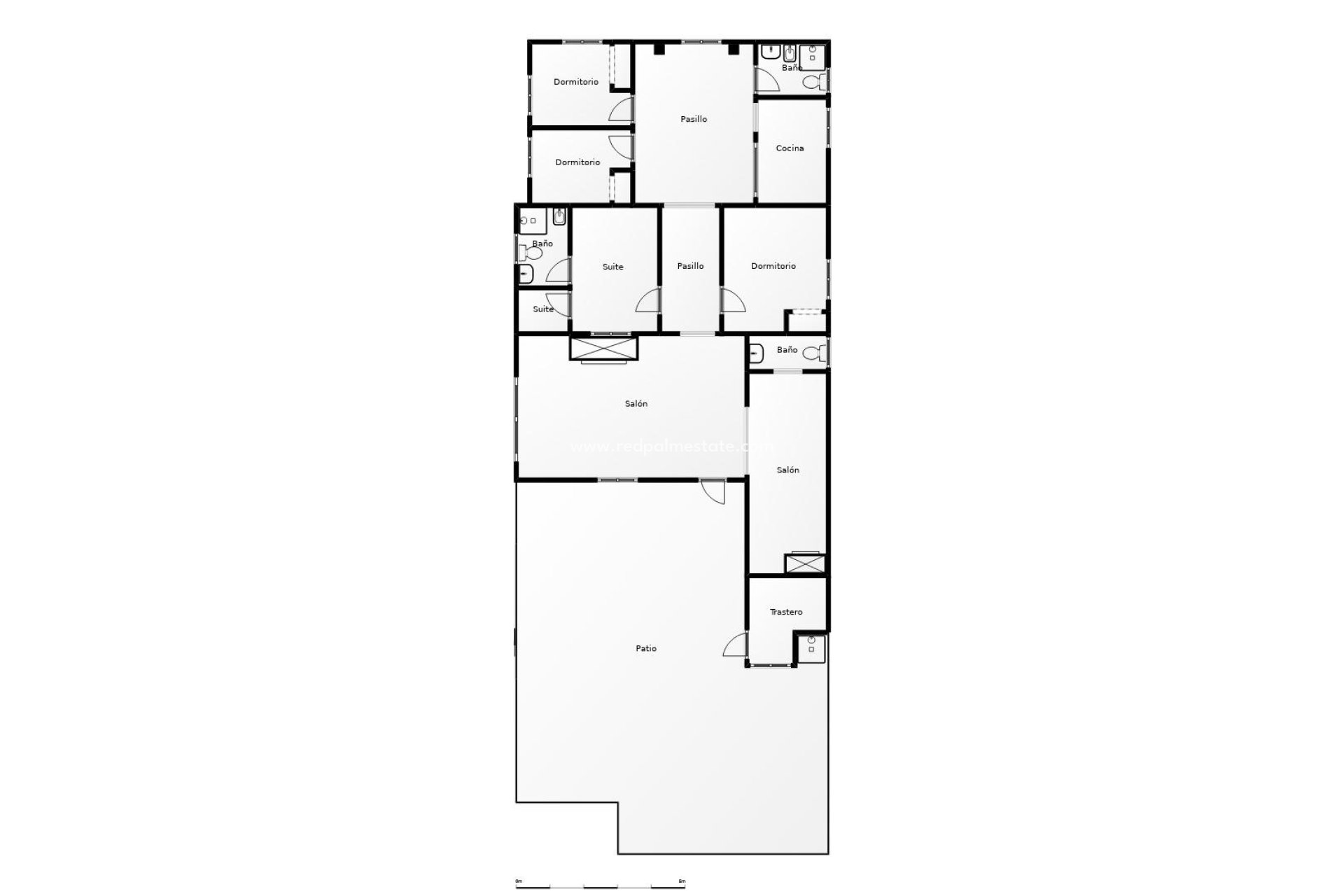
An exclusive property with great potential is presented, located on the outskirts of Torrevieja, in the prestigious Los Altos urbanization, opposite the Hotel Atlas, in an area with high tourist and residential activity throughout the year.. The house is perfect for year-round living, and the adjoining buildings have the potential to expand the living space or even generate income by increasing the usable area, for example as long-term rentals.. . The estate consists of two independent properties on a plot of approximately 440 m2, with a total built area of around 310 m2, offering multiple possibilities for large families or those seeking extra space for guests, rentals, or private use as mentioned above.. . The main house, on the ground floor, stands out for its spaciousness, character, and comfort. It features 4 large bedrooms and 2 full bathrooms, one adapted for people with disabilities or the elderly, a large living-dining room with a fireplace, and an independent kitchen. All spaces are bright and comfortable, designed for family life, with the heart of the home being a large Castilian-style living room with a traditional fireplace, adding warmth and personality to the property.. The estate has no water connection. Both properties are delivered completely empty, without furniture or appliances.. . From the main house, you have direct access to the shared courtyard, where the private pool is located, creating a perfect environment for relaxation, leisure, and outdoor gatherings.. . The second property is an independent space, previously internally connected to the main house via the central plot of the two properties, but currently separated, allowing total privacy between the two areas or easy reintegration if desired.. . This second space offers multiple uses once the necessary change-of-use works are carried out: it could be converted into a second house, guest apartment, additional family area, or independent space within the same property. It also has a terrace-solarium above this second property, ideal for enjoying summer, BBQs, or a chill-out area perfect for family and friends.. . Location. Situated in a strategic area of Los Altos, surrounded by residential developments and very close to all services, the property is just minutes from beaches, shopping centers, restaurants, golf courses, and main transport connections.. . A unique property, full of character and versatility, ideal for those seeking space, privacy, a privileged location on the Costa Blanca, and many opportunities for expansion to add value to the current property.. Price: €449,000. Taxes and purchase costs not included (according to applicable regulations). A breakdown of additional costs will be provided prior to reservation.