Contemporary 4-Bedroom Villa with Private Pool in Central Ciudad Quesada
This modern south-facing villa offers elegant design, spacious living areas, and a superb location in the heart of Ciudad Quesada. Built in 2020 and maintained in excellent condition, it combines contemporary styling with practical comfort, making it an ideal home for families, full-time living, or luxury holidays.
Key Features
Contemporary detached villa built in 20204 bedrooms & 3 modern bathrooms153 m² build size on a 533 m² private plotPrivate saltwater swimming poolPrivate garage & off-road parkingOpen-plan kitchen with quality appliancesSouth orientation for all-day sunSolarium with panoramic viewsLaundry/utility room & storage roomAir conditioning & heatingEnergy rating: BWalking distance to shops, cafés & services (300 m)
Property Description
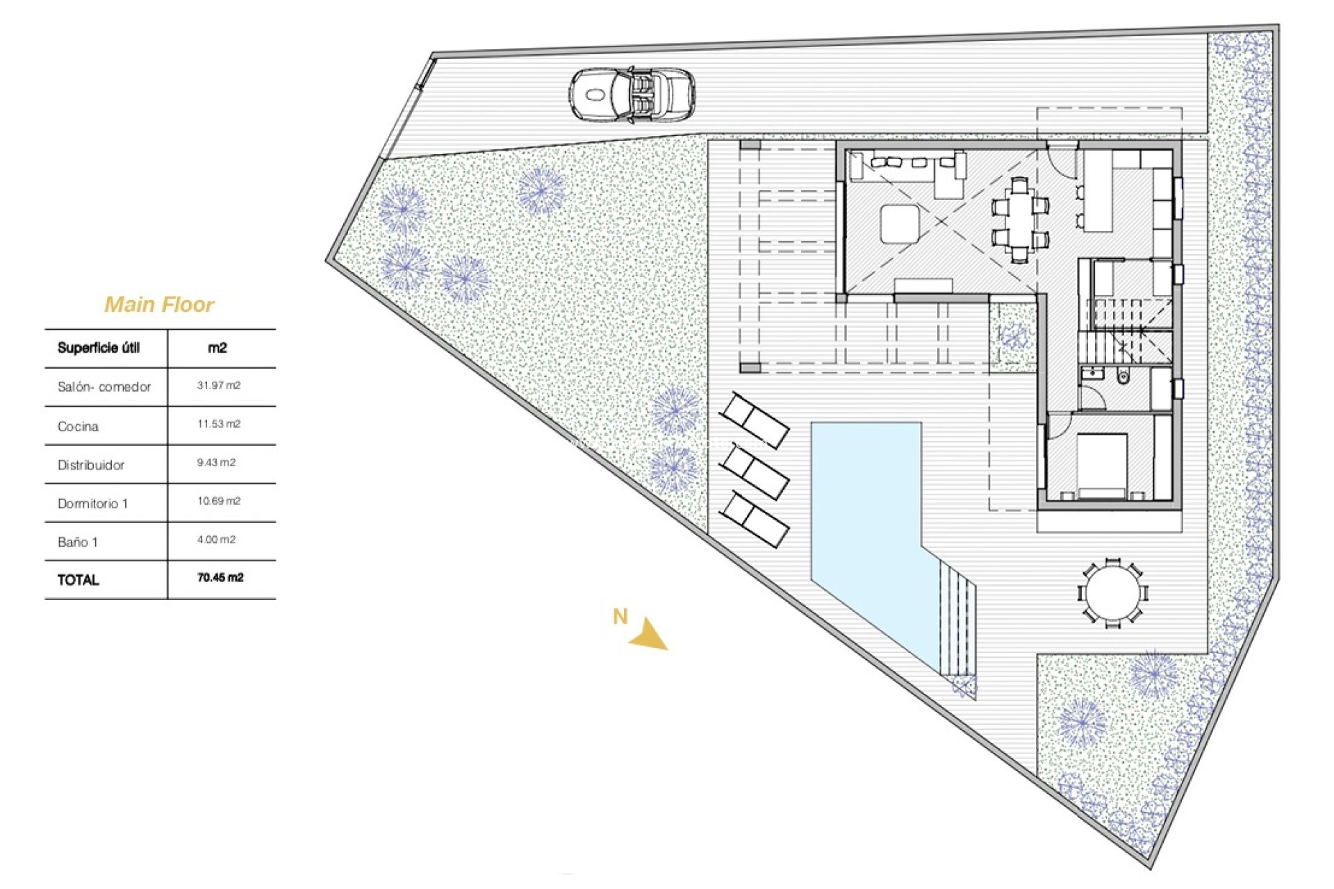
This beautifully designed villa offers a bright and contemporary layout across three levels, maximising natural light and functional living.
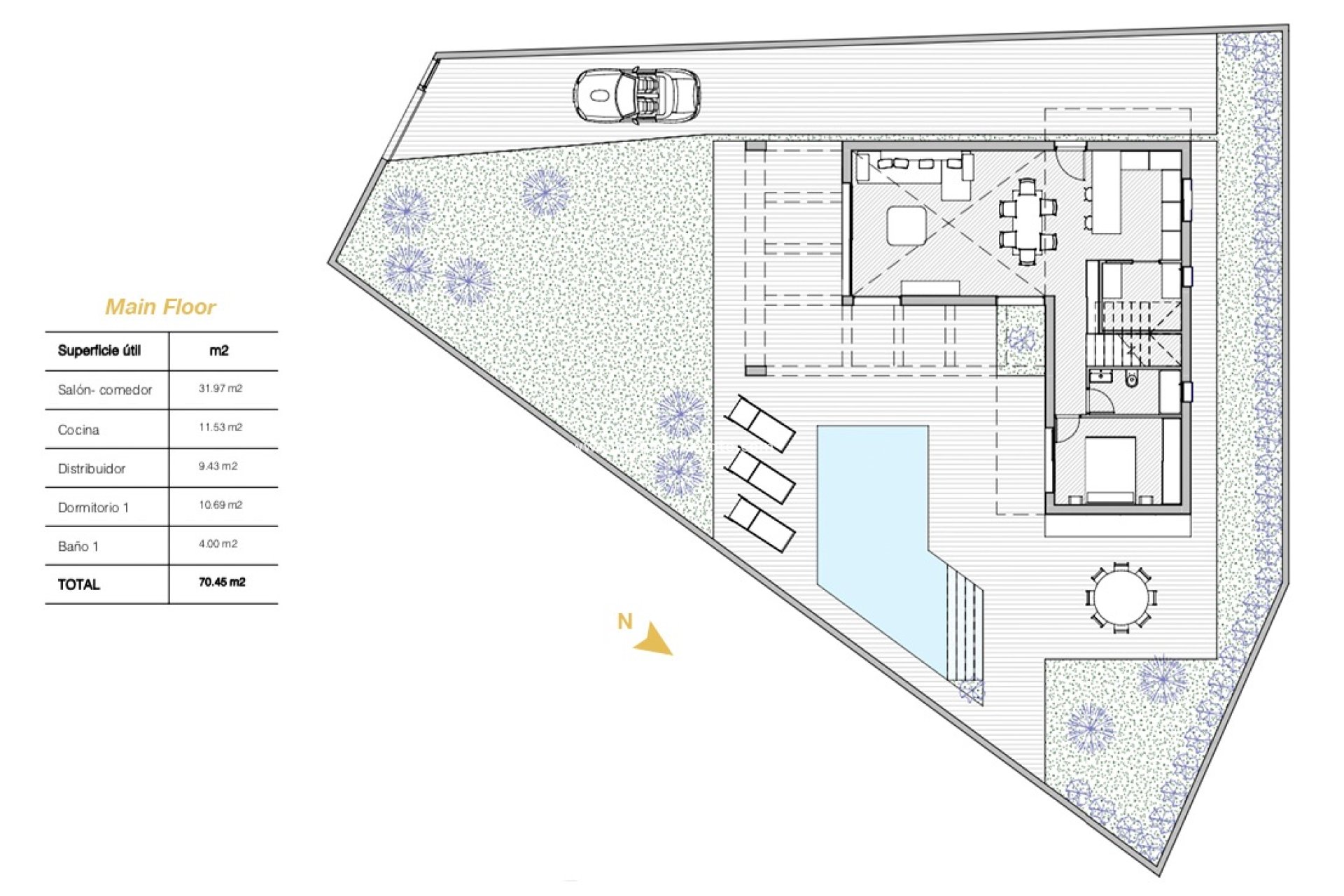
On the main floor, the spacious open-plan living area connects effortlessly to the kitchen and dining zone, creating a warm and airy atmosphere. Large windows frame views of the pool and garden, while an adjoining utility room adds extra convenience. A stylish guest bedroom and full bathroom complete this level.
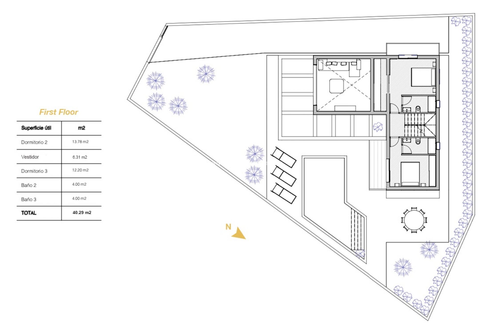
The first floor hosts two generously sized bedrooms, each with its own en-suite bathroom. One suite includes a walk-in wardrobe, while the other opens onto a private balcony overlooking the garden and pool.
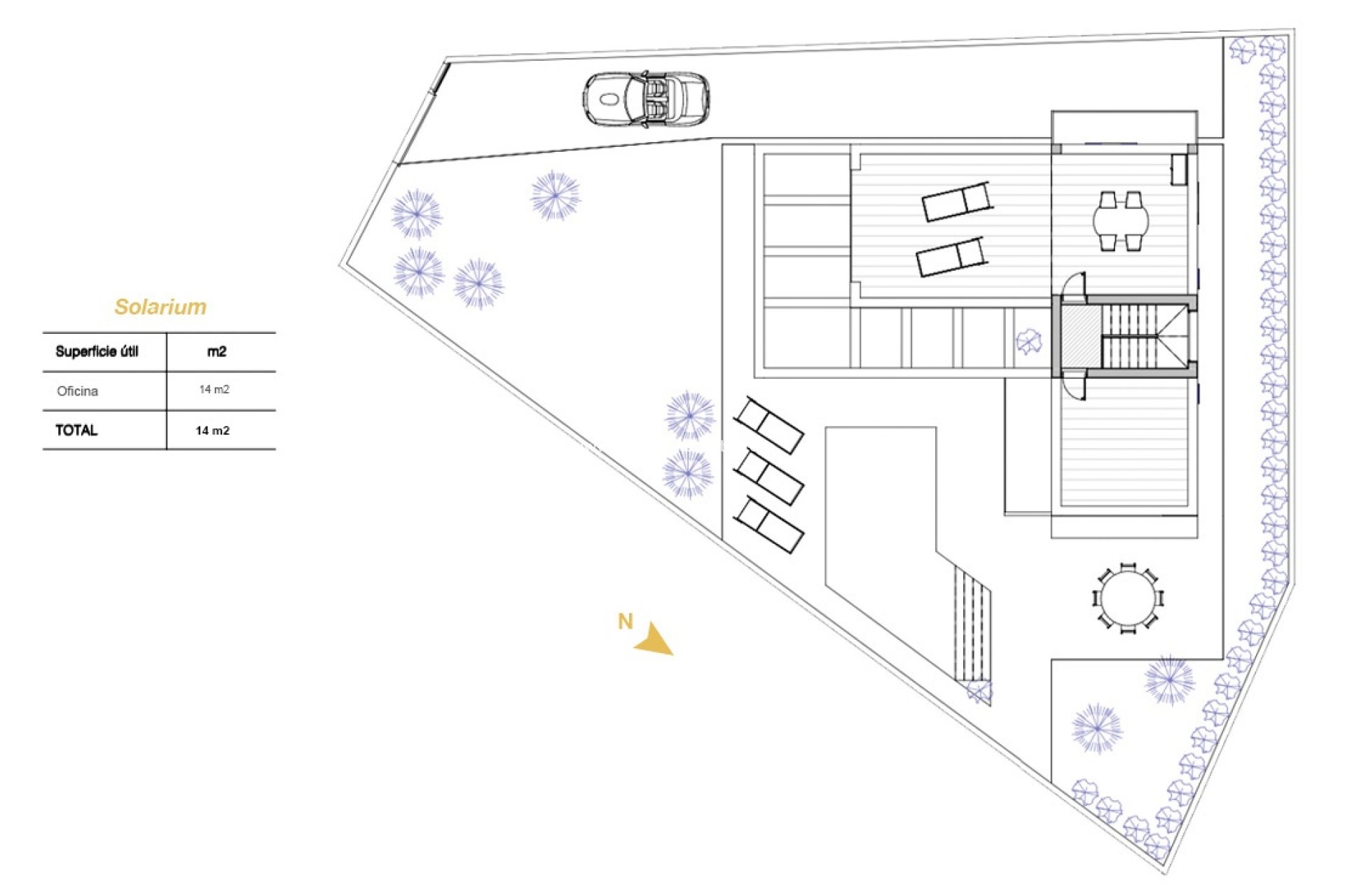
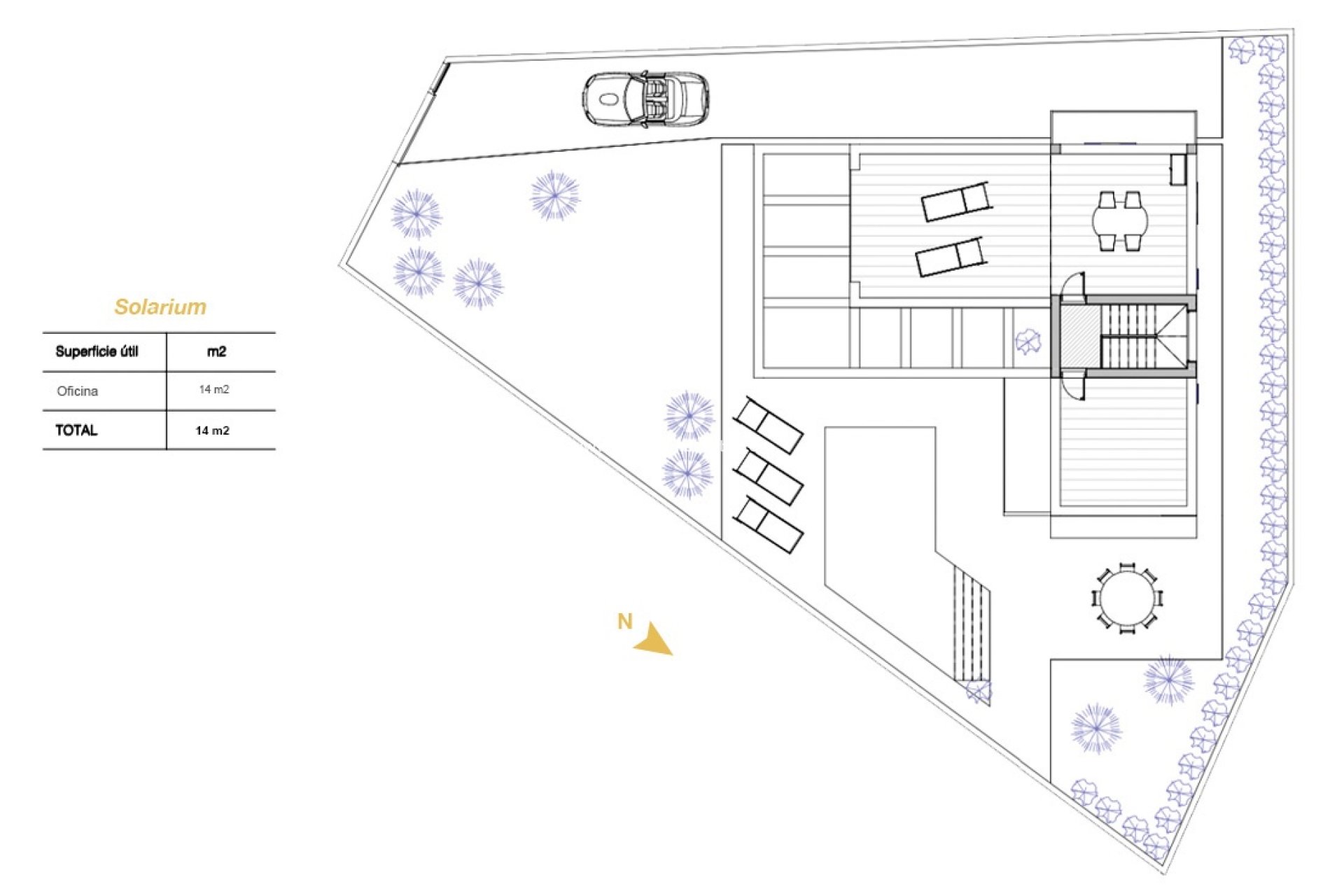
The top level offers a versatile fourth room—ideal as a home office, studio, or guest space—along with two impressive terraces. From here, you can enjoy far-reaching views over Ciudad Quesada, the surrounding landscape, the salt lakes, and even the distant Mediterranean.
The exterior spaces are thoughtfully designed for easy maintenance and year-round enjoyment, including multiple terraces, a sunbathing area, and a private saltwater pool. The plot also provides secure parking via a private garage and gated driveway.
Location & Lifestyle
Situated in a quiet cul-de-sac near the very centre of Ciudad Quesada, this villa offers one of the most convenient and desirable positions in the area. All essential amenities—supermarkets, cafés, shops, pharmacies, restaurants—are reachable within a short walk of just 300 metres.
The town offers a lively international community and a wealth of leisure activities, including golf at La Marquesa, mini golf, aqua park, bowling, cycling routes, and nature walks. Private Norwegian and British schools are also located nearby, adding to the area€s appeal for international families.
Beaches of Guardamar del Segura: 9 km (approx. 10 minutes by car)Alicante Airport: 38 km (approx. 35 minutes)La Marquesa Golf: 4 kmShops & amenities: 300 m
This central yet peaceful setting makes the property ideal for both permanent living and high-value rental investment.
Additional Details
Air conditioning throughout for year-round comfortHeating system installedDouble-glazed windows for energy efficiencyBuilt-in wardrobes in all four bedroomsSaltwater pool with easy-maintenance designMultiple terraces for dining, lounging, and entertainingSolarium with panoramic and partial sea viewsLaundry/utility room for added practicalityPrivate garage suitable for car and storageHigh-quality flooring and contemporary finishesSouth orientation maximising natural lightEnergy rating B for lower running costs
Next steps
Contact us today to book your private viewing of this stunning property in a perfect location to experience just what this villa has to offer.