NEW BUILD RESIDENTIAL COMPLEX IN ESTEPONA
A project that overlooks the sea and the mountains and whose architecture blends in with the surroundings to create a habitat of its own, where the sun and the Mediterranean mark the passage of time
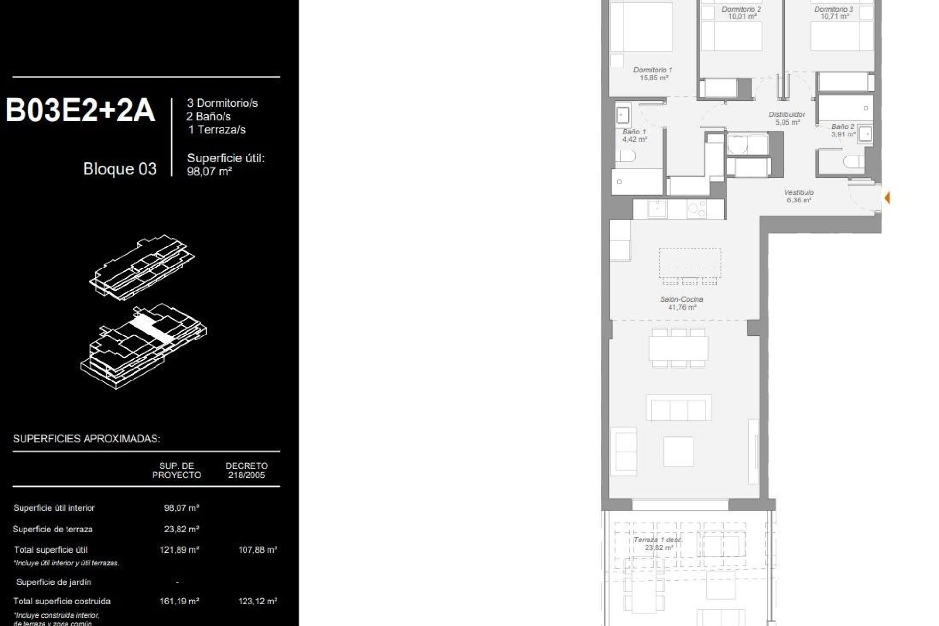
Complex consist of 2 and 3 bedrooms apartments with large terraces, penthouses and ground floor apartments with a garden.
Amongst the very complete communal facilities a special mention should be made of its two outdoor swimming pools, its coworking space, fully equipped gymnasium and sauna with shower area.
Residential located in Estepona, one of the most attractive corners of the Costa del Sol. The town has become one of the most sought-after spots on the Costa del Sol, thanks to its quality of life and its wide range of leisure and lifestyle activities. Yet, it remains true to its roots and is full of Andalucian charm. An abundance of high quality Golf Clubs in the area, justify why this is known as the “Costa del Golf.” The pectacular
natural landscape is the ideal setting for a variety of outdoor sports on both land sea. In addition, its unbeatable climate, famous for 325 days of sunshine on average per year, together with its sheltered position, make this city a model of quality of life in Spain and Europe.
Residential enjoys excellent accessibility to the main roads in the province, making it just 10 minutes from Puerto Banus and less than 45 minutes from Malaga airport.
The quality of the beaches, their services and fantastic accessibility have been acknowledged with a record number of blue flags.
410