New Build » Apartment » Estepona » La

Modern Living in Estepona: Spacious Apartments with Sunny Terraces Estepona, La Gaspara

€495.000
Ref. TLRS-83250

Features

Modern Living in Estepona: Spacious Apartments with Sunny Terraces Estepona, La Gaspara

Modern Living in Estepona: Spacious Apartments with Sunny Terraces

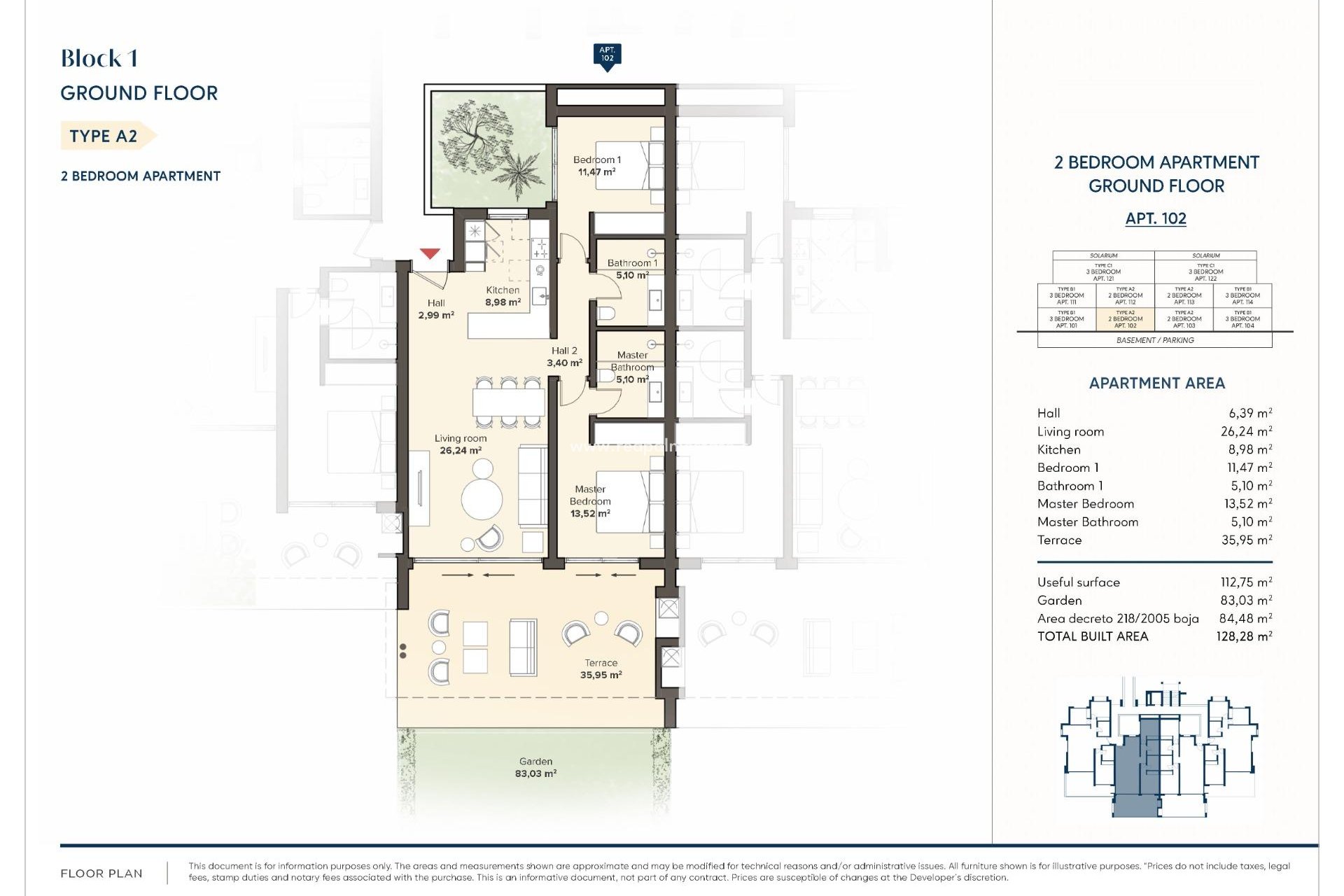
  • Meters 128m2
  • Bedrooms 2
  • Bathrooms 2
  • Pool Yes
Bedrooms:2
Bathrooms: 2
Built: 128m2
Usable: 112m2
Pool: Yes
Distance to beach: 800 Mts.
Energy Rating: B
Near Schools
Near Commercial Center
Elevator/Lift
Beach: 800 Meters
Location: Coastal, Urbanisation
Double Bedrooms: 2
Near Trees
Terrace: 35 Msq.
Useable Build Space: 112 Msq.
Parking - Space
Heating: Yes, Air Conditioning: Yes
Storage / Trastero
Communal pool
Gated
Number of Parking Spaces: 1

Description

Map

Start a new life

Make an enquiry

Responsable del tratamiento: Red Palm Estate SL, Finalidad del tratamiento: Gestión y control de los servicios ofrecidos a través de la página Web de Servicios inmobiliarios, Envío de información a traves de newsletter y otros, Legitimación: Por consentimiento, Destinatarios: No se cederan los datos, salvo para elaborar contabilidad, Derechos de las personas interesadas: Acceder, rectificar y suprimir los datos, solicitar la portabilidad de los mismos, oponerse altratamiento y solicitar la limitación de éste, Procedencia de los datos: El Propio interesado, Información Adicional: Puede consultarse la información adicional y detallada sobre protección de datos Aquí.
Red Palm Estate
WhatsApp