The price of the villa is to build in the area of Pinoso, do not hesitate to contact us if you wish to know the prices to build in other areas.
Build your dream house today with this new construction project in any area of the Costa Blanca or Costa Cálida. We are experts in villa construction in Alicante.
You can customize your dream home step by step, from the style of the house to the finishing materials, as you have a variety of options to choose from, included in the final price.
This fantastic modern-style villa is not yet built but will be ready to move into withing 10 months from obtaining the license.
This new build has 5 bedrooms, and 4 bathrooms, distributed on two floors:
Ground leve
Entrance hall, living room and dining area with fireplace, kitchen (excluding electrical appliances), a bedroom with an on-suite bathroom, and another bathroom for guests. Large porch with access from the main hall.
Tiled flooring can be selected, so it will be done to your liking, while the finishes of the walls and smooth ceilings provide luxury to the entire property.
All interior carpentry will consist of pine woodwork, as well as double-glazed windows to maximise efficiency.
The kitchen integrated in the living room allows us to enjoy wonderful views of the garden. The large kitchen can be constructed with granite bench, marble or similar. The wonderful staircase is an element that combines perfectly with the whole of the ground floor, consisting of ivory marble.
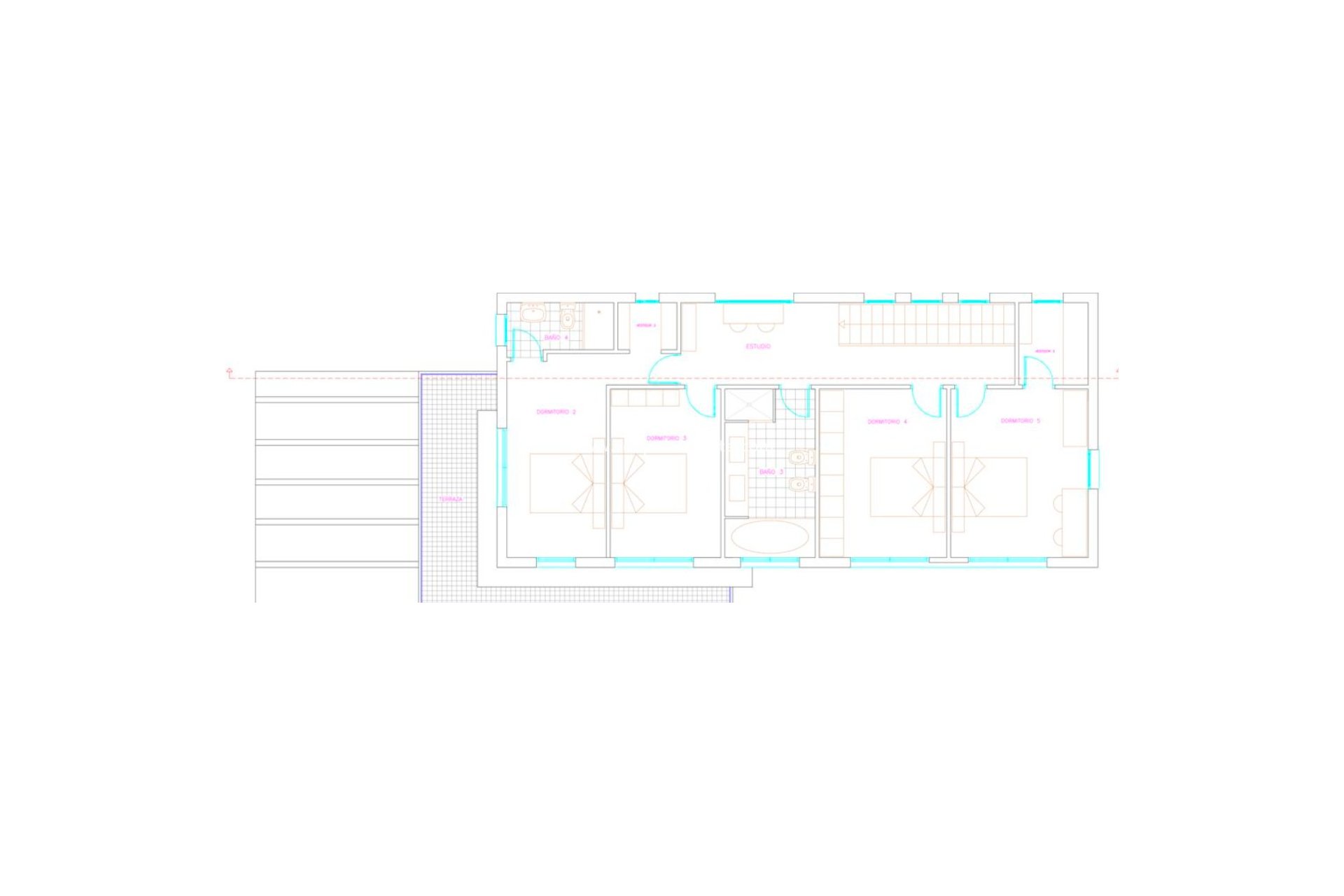
First floor.
On the upper floor you will find the master bedroom with on-suite bathroom and a large closet, and another three bedrooms that share a bathrooms and space for a study. The bathrooms will be designed to the clients liking, with the Roca make. You will also have a Hot water system of 100 litres and a laundry washboard sink. All rooms have a window to the exterior, as well as a balcony.
The façade of the property will be beautifully finished with a monolayer, with a smooth or rough finish and with the option of natural stone round the bottom of your home.
Our extensive plot list includes a variety of types, from country plots in traditional inland villages to coastal areas and seaside resorts throughout the Alicante province.
Our architect team will design your customized house, creating a 3D view, for your complete satisfaction with the project.
Some of the extras available:
- 8m x 4m swimming pool with 2m of terrace: 14.000 Euros.
- Garage from 25m2.
- BBQ area from 15m2.
- Underfloor heating, air conditioning throughout the house, alarm systems, auxiliary buildings, and a wide range of extras and specifications are available for customers to equip your house with all kinds of details.
Prices are updated according to the new "Código Técnico de la Edificación" of November 2019, in accordance with the new external control of the Energy Certificate of the property. This new law provides improvements in isolation, guardiansun glazing, and an overall improvement in the energy efficiency of the property.
The form of payment will be determined based on the construction period and what’s agreed upon between the builder and the purchaser.
THE PRICE IS ONLY FOR THE CONSTRUCTION OF THE VILLA, THE PLOT IS NOT INCLUDED.
Exterior features include:
- Fenced plot within an area of 3,500m2 and a 4m high sliding gate with electrical connection to automate the gate, and a garden area.
- Total plot size 10,000 m2. Each building has access to water, electricity, and the internet.
We can build in any area as defined by the customer within the regions of Alicante and Murcia, either inland or on the coast. If you're looking for a house and if any of our properties are of interest, register your details with us and we will send you all the information we have on each design.
Build your home exactly the way you desire, and let us do all the hard work for you. Your dream is our goal.
For more information do not hesitate to contact us!
"Prices subject to possible material price increases".