Turistleiligheter nær stranden i Lo Pagán-San Pedro del Pinatar: Investeringsmulighet på Costa Cálida
Førsteklasses beliggenhet ved kysten i Lo Pagán
Oppdag dette nye prosjektet med 44 fullt møblerte turistleiligheter i Lo Pagán, San Pedro del Pinatar, et av de mest populære reisemålene på Costa Cálida. Bare 800 meter fra stranden tilbyr dette boligkomplekset den perfekte balansen mellom avslapning, kystliv og investeringspotensial. Området er kjent for sin nærhet til både Mar Menor og Middelhavet, og byr på rolige farvann, marinaer og et bredt utvalg av vannsport. Lo Pagán har også en livlig strandpromenade med restauranter, kafeer og butikker, samt de berømte naturlige gjørmebadene som tiltrekker besøkende hele året.
Moderne leiligheter designet for komfort og fleksibilitet
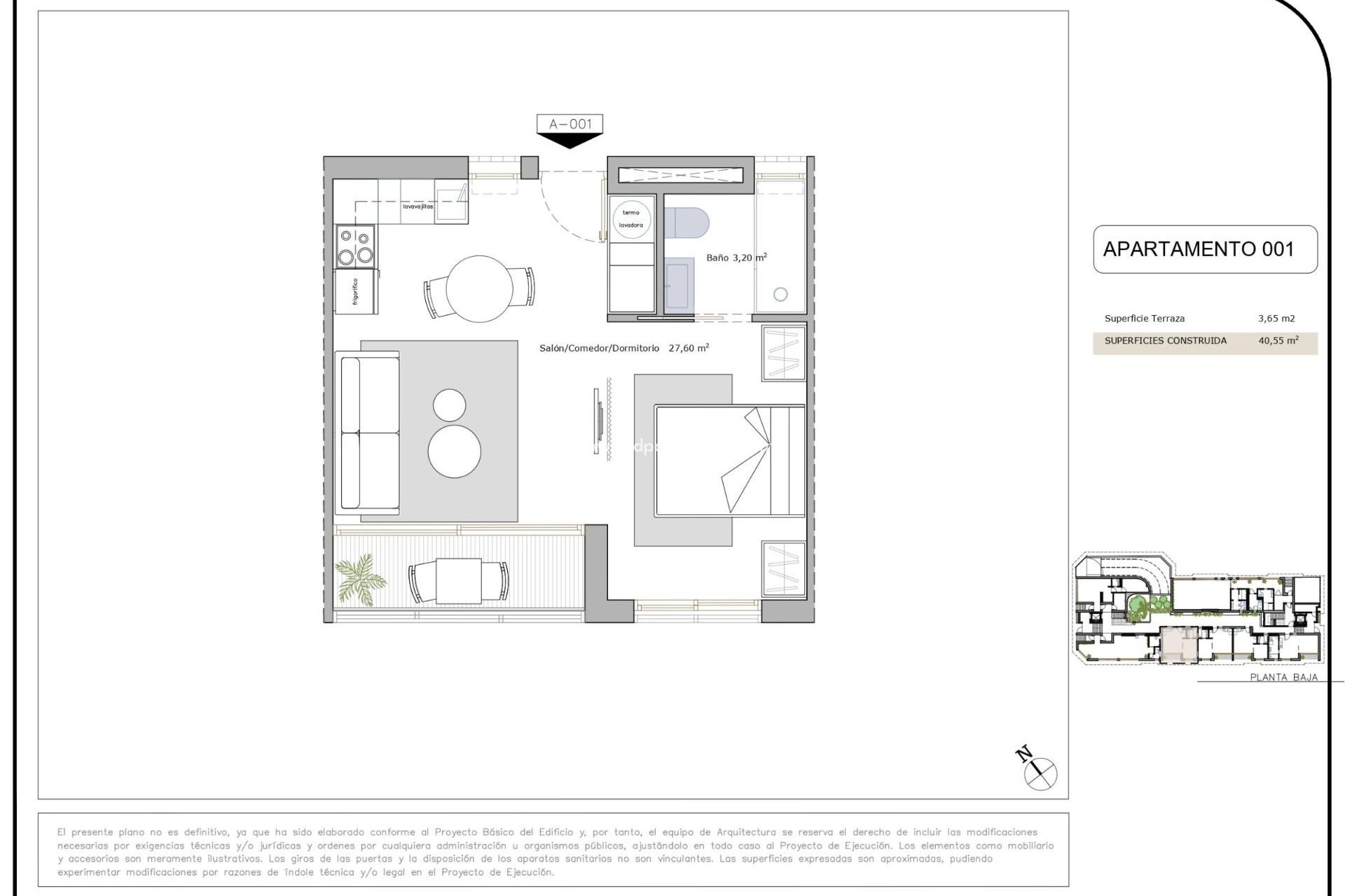
Prosjektet tilbyr en rekke planløsninger som passer til ulike behov. Kjøpere kan velge mellom romslige studioleiligheter med 1 bad og terrasse, eller større enheter med 2 soverom og 2 bad, inkludert et eget bad, alle med private utendørsterrasser. Hver leilighet er nøye designet for å maksimere komfort, funksjonalitet og naturlig lys.
Alle eiendommene leveres fullt møblerte og utstyrt med hvitevarer, slik at de er klare for umiddelbar bruk eller utleie. Interiøret gjenspeiler en moderne stil med kvalitetsfinish, noe som sikrer et komfortabelt og stilig bomiljø bare noen minutter fra sjøen.
Høykvalitetsfunksjoner og smart bo
Disse leilighetene har fullt installert sentral klimaanlegg, aerotermisk system for varmt vann og fullt utstyrte bad med møbler, speil og dusjvegger. I tillegg har bygningen og de enkelte boligene smarte låsesystemer, noe som øker sikkerheten og bekvemmeligheten. Noen enheter har også parkeringsplasser i kjelleren eller utendørs samt boder, avhengig av eiendommen.
Fasiliteter i resortstil for avslapning og velvære
Beboere og gjester kan nyte utmerkede fellesfasiliteter, inkludert et svømmebasseng på taket med solarium, perfekt for å slappe av under middelhavssolen. Komplekset har også et treningsstudio og en kafé på stedet, noe som skaper et komfortabelt og sosialt miljø som er ideelt for både ferier og lengre opphold.
Utmerket tilknytning og nærliggende severdigheter
Lo Pagán-stranden 0,8 km
Mar Menor 0,8 km
San Pedro del Pinatar sentrum 2 km
Dos Mares kjøpesenter 3 km
Lo Romero Golf 10 km
Murcia internasjonale lufthavn 35 km
Alicante lufthavn 75 km
San Pedro marina 2 km
Smart investering med utleieforvaltning
Disse turistleilighetene tilbyr en utmerket investeringsmulighet, med fradragsberettiget merverdiavgift og et profesjonelt forvaltningsselskap som håndterer utleie når eiendommen ikke er i bruk. Dette sikrer en problemfri eieropplevelse og attraktive leieinntekter.
Sikre deg din eiendom på Costa Cálida
Enten du er på utkikk etter et feriehus, en utleieinvestering eller begge deler, tilbyr disse leilighetene i Lo Pagán beliggenhet, kvalitet og lønnsomhet. Kontakt oss i dag for mer informasjon eller for å avtale en visning og sikre deg din nye eiendom ved sjøen.
410