Luksuriøse nybyggede villaer, leiligheter og rekkehus i San Pedro de Alcantara, Marbella
Eksklusivt boligprosjekt nær stranden
Oppdag dette enestående nybyggprosjektet som tilbyr et unikt utvalg av villaer, rekkehus og leiligheter i San Pedro de Alcantara, et av de mest ettertraktede områdene på Costa del Sol. Med en ideell beliggenhet bare 800 meter fra Middelhavet og ved siden av den livlige boulevarden, kombinerer dette prosjektet moderne livsstil med en uovertruffen beliggenhet.
Omgitt av grønne områder og innen gangavstand fra sentrum, har beboerne enkel tilgang til restauranter, butikker, kafeer og alle nødvendige tjenester. San Pedro de Alcantara er kjent for sin avslappede atmosfære, vakre promenade og nærhet til Marbella, noe som gjør det til et førsteklasses reisemål for både fastboende og fritidsboliger.
Stort utvalg av moderne boliger
Dette eksklusive prosjektet består av 38 eksklusive boliger og et begrenset antall næringslokaler. Kjøpere kan velge mellom 11 luksusvillaer, 10 moderne rekkehus og 17 stilfulle leiligheter, alle designet med elegant arkitektur og høykvalitets finish.
Leilighetene er tilgjengelige med ett, to eller tre soverom, og tilbyr alternativer som første etasje med private hager eller toppetasjeenheter med terrasser og solarium. Hver leilighet har underjordisk parkering og bod med heisadgang.
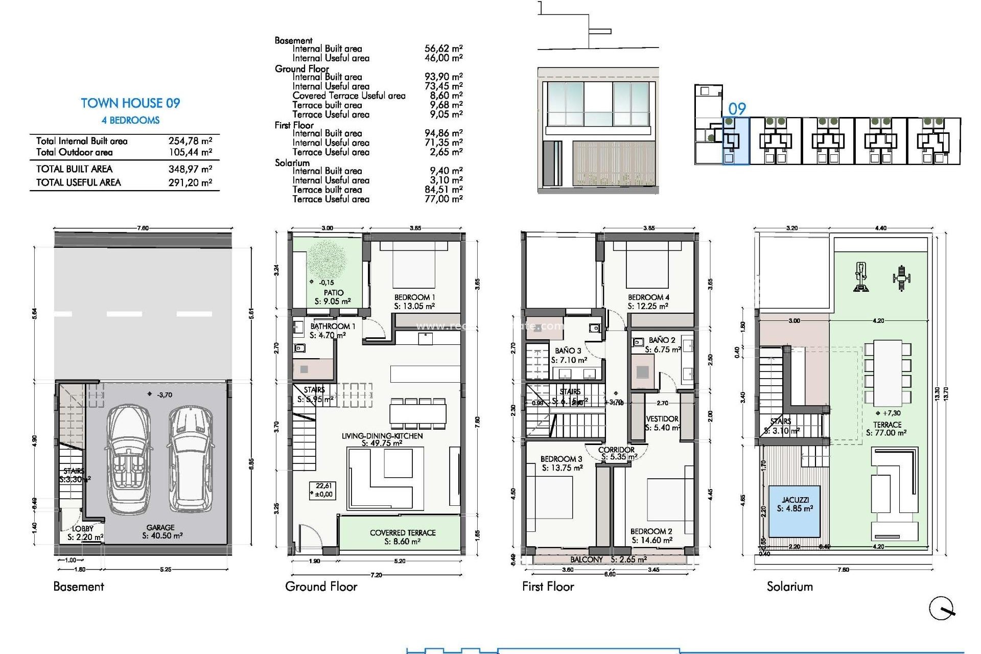
Romslige rekkehus med privat solarium
Rekkehusene har tre eller fire soverom og tre bad, med romslige planløsninger fordelt på flere etasjer. De fleste enhetene har en privat heis som forbinder alle etasjer, underjordisk parkering for to biler og ekstra allsidig plass som kan brukes som treningsrom, spillrom eller kontor.
Første etasje har en åpen stue med direkte tilgang til terrasser og uteplasser, mens de øvre etasjene har soverom med eget bad. Et privat solarium på taket fullfører eiendommen, ideelt for å nyte middelhavsklimaet.
Luksusvillaer med privat basseng og kjeller
Villaene ligger på tomter på over 300 m² og har fem eller seks soverom fordelt på kjeller, to hovedetasjer og takterrasse forbundet med en privat heis. Hver villa har privat basseng, hage og romslige interiører designet for et luksuriøst liv.
Kjellernivået har parkering, ekstra soverom og fleksibel plass til fritid eller arbeid. Første etasje går sømløst over i utendørsterrasser og privat basseng, mens øverste etasje har soverom med eget bad og åpen utsikt.
Høy kvalitet på finish og moderne komfort
Alle boligene er bygget etter de høyeste standarder, med fullt installert klimaanlegg, gulvvarme, designerkjøkken med Siemens-apparater og forsterkede sikkerhetsdører med alarmsystemer.
Førsteklasses beliggenhet nær golf og viktige destinasjoner
Dette prosjektet har en perfekt beliggenhet med Guadalmina Golf Club bare 1,2 km unna, stranden 0,8 km unna og San Pedro-boulevarden 0,6 km unna. Marbella ligger 10 km unna og Malaga lufthavn ligger ca. 65 km unna, noe som sikrer utmerkede transportforbindelser.
Ideell investering på Costa del Sol
Dette eksklusive prosjektet tilbyr en sjelden mulighet til å eie en luksuriøs eiendom i et av de mest ettertraktede områdene i Marbella.
Kontakt oss i dag for mer informasjon eller for å avtale en visning og sikre deg ditt nye hjem i San Pedro de Alcantara.
410