Videresalg » Bungalow » Orihuela Costa &raq

Bungalow · Videresalg Orihuela Costa, Villamartín

Kjennetegn

Bungalow · Videresalg Orihuela Costa, Villamartín

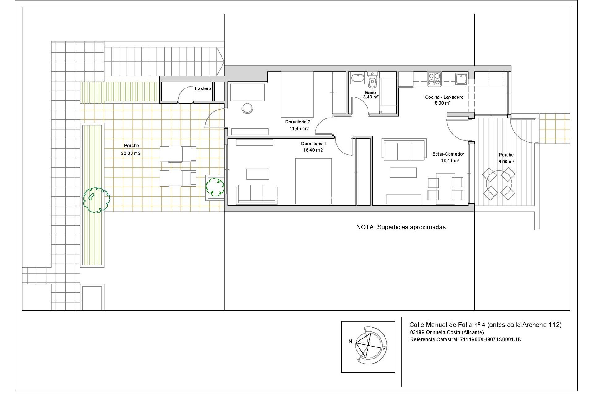
  • Meter 86m2
  • Soverom 2
  • Baderom 1
Soverom:2
Baderom: 1
Bygget: 86m2
Energi~~POS=TRUNC: Igang
Terrasse
Garderober skap
Lagerrom
Hvitevarer
TV
Bolig
Hage

Kart

Starte ett nytt liv

Foreta en forespørsel

Responsable del tratamiento: Red Palm Estate SL, Finalidad del tratamiento: Gestión y control de los servicios ofrecidos a través de la página Web de Servicios inmobiliarios, Envío de información a traves de newsletter y otros, Legitimación: Por consentimiento, Destinatarios: No se cederan los datos, salvo para elaborar contabilidad, Derechos de las personas interesadas: Acceder, rectificar y suprimir los datos, solicitar la portabilidad de los mismos, oponerse altratamiento y solicitar la limitación de éste, Procedencia de los datos: El Propio interesado, Información Adicional: Puede consultarse la información adicional y detallada sobre protección de datos Aquí.
Red Palm Estate
WhatsApp