NYBYGGEDE VILLAER I MONFORTE DEL CID
Nybyggede villaer i Monforte del Cid, med golfbanen bare 3 minutter hjemmefra og rett ved siden av byene Alicante og Elche, hvor du finner et bredt utvalg av kultur, gastronomi, underholdning og selvfølgelig kysten.
Middelhavets gylne sandstrender ligger bare et skritt fra ditt nye hjem, et sted hvor du når som helst kan nyte dager med sol og sjø.
Villaene ligger 3 minutter fra sportssenteret på golfbanen Alenda Golf, noe som gjør det til det perfekte stedet å nyte freden i en rolig urbanisering, men ha alle tjenestene ved siden av huset (bare 12 minutter fra Alicante-Elche flyplass). Urbaniseringen er et samfunn som forener det beste av det moderne livet og roen i det naturlige miljøet (ingen fellesavgifter).
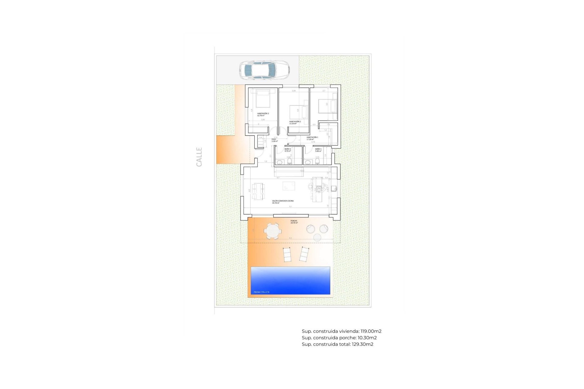
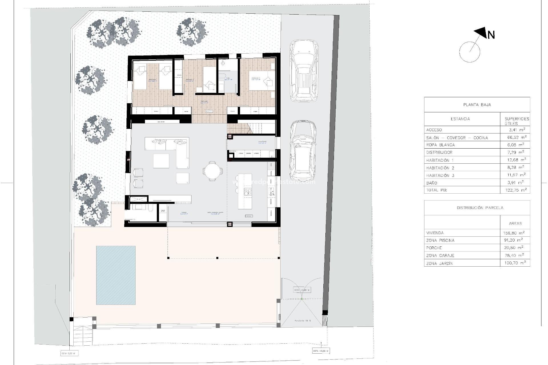
Oppdag elegansen og komforten i denne vakre uavhengige villaen på 108m2 eller 128m2 (mulighet for to boligstørrelser), designet for å tilby deg en eksepsjonell livsstil, alt i første etasje.
Denne eiendommen ligger i den prestisjetunge urbanisasjonen, og gir deg en unik boopplevelse av høy kvalitet. På tomter fra 618 m2 får du god plass til å nyte både innendørs og utendørs.
Nyt privatlivet i denne selvstendige villaen, hvor du kan slappe av i din egen hage, skape en oase av ro eller til og med legge til et svømmebasseng for å nyte de varme sommerdagene.
Huset er fordelt på to store områder:
Dagområdet: Her finner vi en romslig stue-spisestue med et åpent kjøkken i kontorstil (kjøkkenmøbler inkludert) som er forbundet med den store, moderne verandaen gjennom to store vinduer, som gir utgang til hagen og hvorfor ikke... til bassenget. Lyset flommer inn i alle hjørner takket være de store vinduene i stuen, som vender ut mot verandaen, et moderne og funksjonelt rom som innbyr til å nyte naturen i fulle drag. Tenk deg å tilbringe ettermiddagene sammen med familie og venner, omgitt av rolige og naturlige omgivelser. Som et ekstra rom er det et vaskerom
vaskerom som er strategisk plassert slik at det er lett tilgjengelig fra alle steder i huset.
Natt- eller hvileområde: I dette området finner vi 3 soverom. Hovedsoverommet har et stort omkledningsrom og eget bad. I tillegg er det et annet bad som betjener resten av soverommene og boligen.
Her finner du ikke bare et boligområde, men et sted der natur og eleganse går hånd i hånd for å gi deg en uovertruffen livsstil. Denne villaen er perfekt for deg, enten du ønsker å bosette deg her permanent, nyte et feriehus eller investere i fremtiden.
Privat urbanisering nær de største byene i Alicante-provinsen, 15 minutters kjøring fra Elche og Alicante, samt flyplassen og de beste strendene.
Utbyggingen ligger i fredelige omgivelser nær Alenda golfbane i Monforte del Cid.
410