Luksusleiligheter i Estepona med fantastisk havutsikt
Oppdag et eksklusivt prosjekt med 72 luksusleiligheter i det ettertraktede området La Resina i Estepona. Dette prestisjefylte komplekset tilbyr førsteklasses finish, fasiliteter i verdensklasse og fantastisk havutsikt, og er designet for å oppfylle kravene til de mest kresne kjøperne.
Førsteklasses beliggenhet i La Resina, Estepona
Denne urbanisasjonen ligger i det raskt voksende La Resina-området, bare en 10-minutters kjøretur fra Esteponas livlige sentrum, kjent for sin sjarmerende gamleby, strender og marina. De kosmopolitiske hotspotsene Marbella og Puerto Banús, kjent for sin livlige internasjonale atmosfære, ligger bare en kort avstand unna. Golfentusiaster vil glede seg over å finne flere anerkjente golfbaner bare 5 minutter fra prosjektet, og restauranter, strandklubber og kjøpesentre i toppklasse ligger også innen rekkevidde.
Ferieanlegg med eksepsjonelle fasiliteter
Dette prosjektet ligger på en bakketopp, med sør- og sørvestlig orientering, slik at beboerne kan nyte den fantastiske utsikten over havet og fjellene rundt. Anlegget er spredt over 100 hektar med fredelig, grønt landskap, og tilbyr et rolig miljø midt mellom landsbygda og fjellene.
Anlegget er designet for å forbedre livsstilen din med et imponerende utvalg av fasiliteter, inkludert to utendørsbassenger, et toppmoderne treningsstudio, et luksuriøst spa og vakkert anlagte hager. For golfelskere finnes det en puttinggreen med spektakulær panoramautsikt.
Utsøkt design og overlegen kvalitet
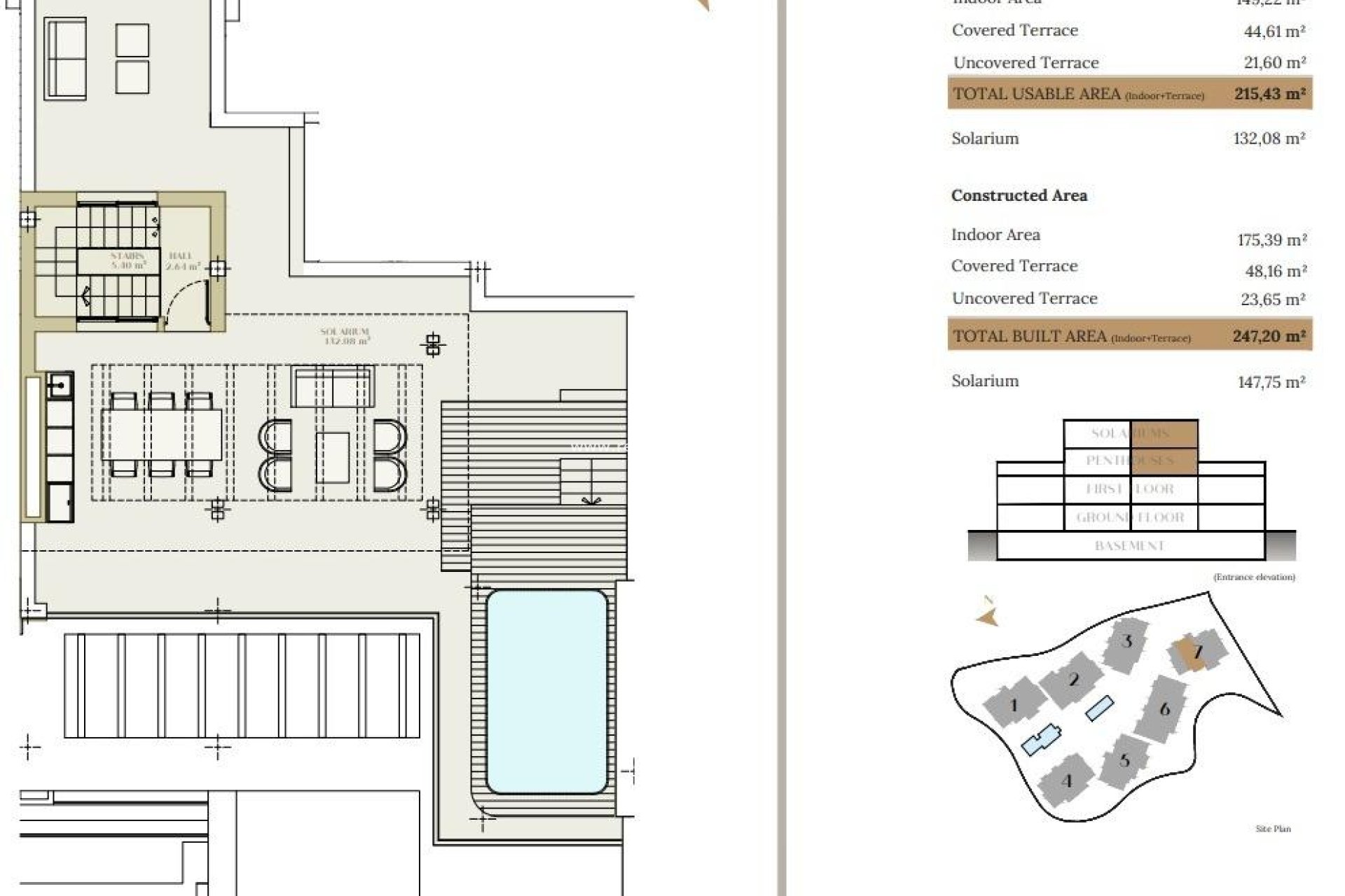
Prosjektet består av sju elegante bygninger, hver på tre etasjer, som er nøye plassert for å maksimere sjøutsikt og naturlig lys. Leilighetene har 2, 3 og 4 soverom, og interiøret er vakkert utformet og av høy kvalitet. Leilighetene i første etasje har romslige private hager, mens toppleilighetene har private solarier og bassenger. Alle leilighetene har moderne Modulnova-kjøkken som kombinerer stil og funksjonalitet.
Sikker og praktisk livsstil
Beboerne kan føle seg trygge med 24-timers vakthold ved hovedinngangen og fire strategisk plasserte innkjørsler til parkeringskjelleren, der hver leilighet har sin egen parkeringsplass.
Viktige avstander til severdigheter
Estepona: 10 km
Marbella: 20 km
Puerto Banús: 15 km
La Resina golfklubb: 2 km
Malaga flyplass: 75 km
Gibraltar lufthavn: 55 km
Estepona havn: 10 km
Kjøpesentre: 7 km
Dette prosjektet er en unik mulighet til å oppleve det beste av det beste på Costa del Sol, med alle detaljer designet for å tilby en luksuriøs og avslappet livsstil i et av de mest ettertraktede områdene i Estepona.
410