Moderne nybyggede rekkehus med privat basseng i El Alba Resort Torre Pacheco
Moderne boliger i et voksende middelhavsresort
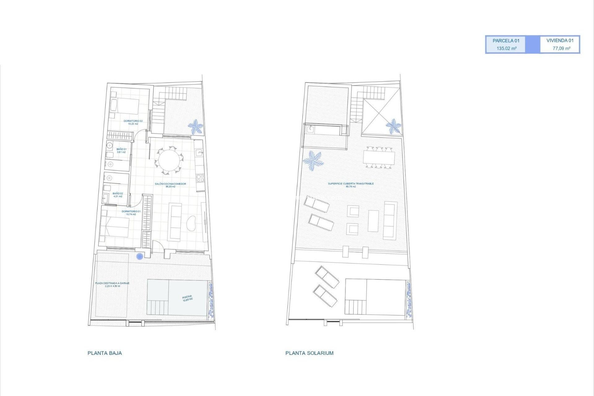
Dette nybyggprosjektet består av kun 4 eksklusive rekkehus i første fase, og ligger i El Alba Mediterranean Resort i Torre Pacheco. Disse moderne boligene er designet i ett plan og tilbyr en perfekt kombinasjon av komfort, funksjonalitet og middelhavsinspirert utendørsliv.
El Alba Resort er et voksende boligområde omgitt av åpne landskap og golfbaner, like ved byen Roldan, hvor du finner supermarkeder, restauranter, banker og daglige tjenester. Feriestedet har allerede en sosial klubb med svømmebasseng og restaurant, og et handelsområde er under utvikling, noe som gir området ytterligere bekvemmelighet og verdi.
Enetasjes bolig med privat hage og solarium
Hver bolig har 2 soverom og 2 bad, hvorav det ene er en-suite, med et åpent kjøkken som er koblet til en lys stue. Planløsningen er nøye utformet for å maksimere naturlig lys og skape en sømløs forbindelse mellom innendørs og utendørs områder.
Alle boliger inkluderer:
Fullt utstyrt kjøkken med hvitevarer
Bad med møbler, speil, belysning og dusjvegger
Innebygde garderober med skuffer i soverommene
Forhåndsinstallert sentral klimaanlegg
LED-belysning innvendig og utvendig
Tre solcellepaneler med 1,5 kW kapasitet per bolig
Uteområdene er designet for å kunne nytes hele året, med en privat hage med svømmebasseng, en terrasse og et stort privat solarium med sommerkjøkken, ideelt for utendørs servering og avslapning i solen.
Kvalitetsfunksjoner designet for komfort og effektivitet
Disse boligene er bygget med elegant og funksjonelt interiør, med fokus på energieffektivitet og moderne livsstil. En privat parkeringsplass ligger på tomten, noe som sikrer bekvemmelighet og sikkerhet.
Kombinasjonen av solcellepaneler, kvalitetsisolasjon og smart design gir et energieffektivt hjem som er ideelt for permanent boende, feriebruk eller utleieinvestering.
Utmerket beliggenhet nær golfbaner, strender og flyplasser
Roldan sentrum 2 km
Mar Menor-strendene 15 km
Middelhavsstrendene 20 km
La Torre Golf Resort 5 km
Terrazas de la Torre Golf 6 km
Murcia Corvera flyplass 18 km
Cartagena by 30 km
Denne strategiske beliggenheten gir enkel tilgang til golf, strender, tjenester og transportforbindelser, samtidig som du kan nyte et fredelig boligmiljø.
En smart investering i Costa Calida
Disse rekkehusene i El Alba Mediterranean Resort tilbyr en utmerket mulighet til å eie en moderne eiendom med privat basseng i et raskt voksende område i Torre Pacheco.
Kontakt oss i dag for å få mer informasjon eller for å avtale en visning av disse eksklusive nybyggene.
410