Nybyggede rekkehus med 4 soverom i Torre del Mar, bare 800 meter fra stranden
Moderne familieboliger på Costa del Sol
Dette eksklusive boligprosjektet består av 21 moderne rekkehus med 4 soverom i Torre del Mar, et av de mest ettertraktede kystområdene i Axarquia-regionen på Costa del Sol. Disse romslige boligene ligger bare 800 meter fra stranden og er ideelle for familier som ønsker komfort, friluftsliv og nærhet til havet.
Torre del Mar er kjent for sine lange sandstrender, livlige promenade, utmerkede gastronomi og tjenester året rundt. Byen tilbyr en perfekt balanse mellom avslappet kystliv og moderne infrastruktur, med skoler, helsesentre, shoppingområder og idrettsanlegg innen rekkevidde.
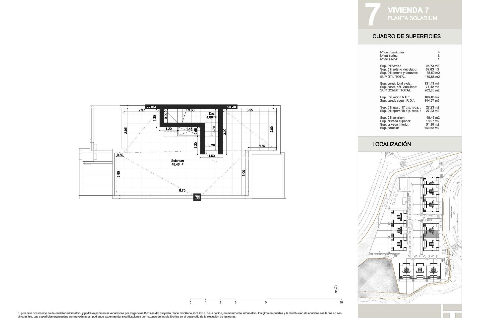
Romslig planløsning over fire etasjer med privat solarium
Hvert rekkehus er fordelt på tre hovedetasjer pluss et privat solarium på taket på ca. 48 m2, og tilbyr generøse innendørs og utendørs områder.
Kjelleren har privat parkering for to biler, et multifunksjonelt rom med naturlig lys som kan brukes som spillrom, kontor eller ekstra soverom, vaskerom og gjestetoalett.
I første etasje er det åpen stue og kjøkken som har direkte tilgang til terrassen og den private hagen. Denne etasjen har også ett soverom og et komplett bad, noe som gjør den ideell for gjester eller flergenerasjonsbolig. En ekstra terrasse på baksiden gir ekstra uteplass.
Andre etasje har tre ekstra soverom og to bad, hvorav ett er en suite, samt to terrasser på forsiden og baksiden av eiendommen.
Kvalitetsspesifikasjoner og energieffektivitet
Disse nybygde boligene leveres med høykvalitets finish og moderne installasjoner, inkludert:
Innredet kjøkken med keramisk kokeplate, vask og avtrekksvifte
Fullt installert kanalisert klimaanlegg
Aerotermisk system for varmt vann
Bad med møbler, speil og dusjvegger
Elektriske persienner i stue og soverom
Videointercom-system
Boligkomplekset har også anlagte hager og et felles svømmebasseng som beboerne kan benytte seg av.
Utmerket beliggenhet nær stranden, golfbanen og Malaga by
Bebyggelsen ligger bare 4 km fra Baviera Golf og 30 km fra Malaga sentrum, med direkte tilgang til motorveien A7.
Avstander til viktige severdigheter
Stranden 0,8 km
Baviera Golf 4 km
Malaga by 30 km
Malaga flyplass 45 km
Vélez Málaga 5 km
Ditt ideelle hjem ved sjøen i Torre del Mar
Disse moderne rekkehusene tilbyr plass, kvalitet og en uovertruffen beliggenhet nær stranden. Kontakt oss i dag for å få mer informasjon eller for å avtale en visning av dette enestående nybyggprosjektet i Torre del Mar.
410