Nybyggede villaer med privat basseng ved Serena Golf-Los Alcazares
Boutique-kolleksjon av moderne boliger nær sjøen
Oppdag et eksklusivt boutique-prosjekt med 37 moderne villaer i firkantet og tomannsboligstil, beliggende ved La Serena Golf i Los Alcazares på den vakre Costa Calida. Disse moderne boligene er designet for kjøpere som søker privatliv, sol og en utendørs livsstil, bare 300 meter fra det varme vannet i Mar Menor.
Los Alcazares er en sjarmerende kystby kjent for sin lange promenade, sandstrender og avslappede middelhavsatmosfære. Området har mer enn 300 soldager i året og tilbyr utmerkede restauranter, butikker, marinaer og idrettsanlegg. Beliggenheten mellom havet og golfbanen gjør det til et av de mest attraktive reisemålene i regionen, både for permanent opphold og ferieboliger.
Moderne villaer med privat basseng og utendørs oppholdsrom
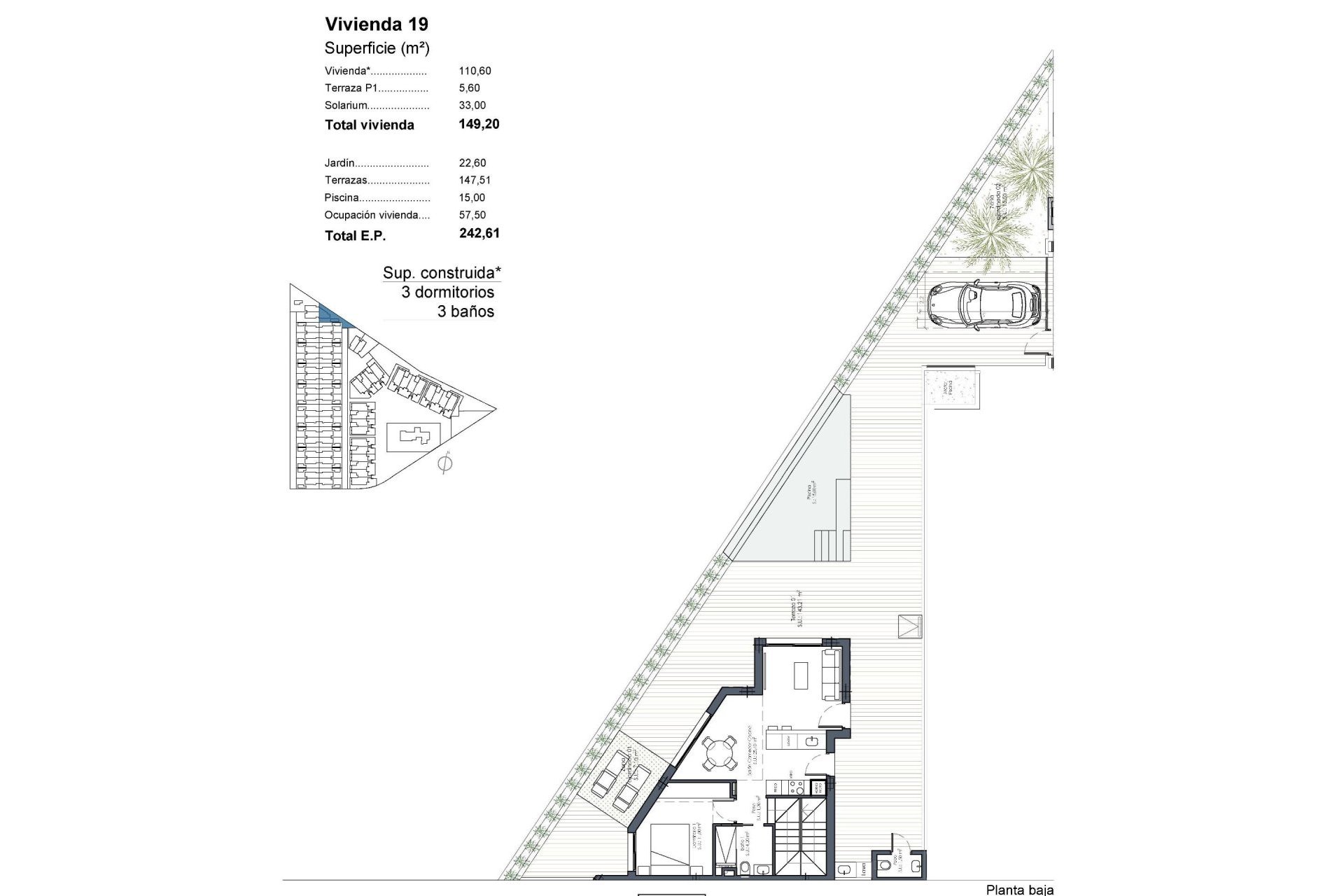
Hver eiendom har en privat tomt med eget svømmebasseng, noe som skaper det perfekte miljøet for å nyte middelhavsklimaet hele året. Boligene har 3 soverom og 2 eller 3 bad pluss gjestetoaletter, og tilbyr komfortable og funksjonelle oppholdsrom som er ideelle for familier eller gjester.
Villaene er designet for å fremheve utendørs oppholdsrom. Ved siden av bassenget er det en grillplass og et utvendig gjestetoalett, perfekt for å underholde venner og familie. Solterrassen på taket gir ekstra plass til å slappe av i solen og har en soldusj med forhåndsinstallert jacuzzi og sommerkjøkken.
Parkering er inkludert både på den private tomten og med en tildelt parkeringsplass i kjelleren.
Høy kvalitet og moderne funksjoner
Boligene er bygget med moderne materialer og kvalitetsspesifikasjoner designet for komfort og stil.
Fullt utstyrt kjøkken med hvite hvitevarer i glassfinish
Bad med bakbelyste speil, dusjvegger og servantskap
Motoriserte vinduslemmer
Grunnleggende belysningspakke
Fullt installert kanalisert klimaanlegg
Disse funksjonene sikrer en komfortabel boopplevelse, enten eiendommen brukes som hovedbolig eller feriebolig.
Fasiliteter i resortstil og utmerket beliggenhet
Eierne har også tilgang til felles fasiliteter i resortstil med et naboprosjekt. Disse fasilitetene inkluderer anlagte hager, et felles svømmebasseng i lagunestil, spa-område, treningsstudio og badstue.
Beliggenheten gir enkel tilgang til strender, golfbaner og nærliggende byer.
Mar Menor-stranden 0,3 km
La Serena Golf ved siden av boligkomplekset
Los Alcazares sentrum 2 km
Cartagena 22 km
Murcia 40 km
Region de Murcia internasjonale lufthavn 30 km
Alicante Elche lufthavn 90 km
Det grunne vannet i Mar Menor er perfekt for svømming, seiling, paddle surfing og andre vannsportaktiviteter hele året.
Sikre deg en middelhavsstil i Los Alcazares
Disse nybygde villaene tilbyr den perfekte kombinasjonen av strand, golf og moderne komfort på Costa Calida. Kontakt oss i dag for å få mer informasjon eller avtale et besøk, og sikre deg ditt nye hjem på Serena Golf i Los Alcazares.
410