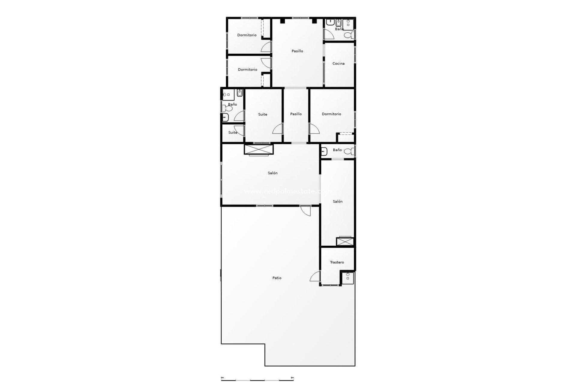
En eksklusiv eiendom med stort potensial presenteres, beliggende i utkanten av Torrevieja, i den prestisjetunge urbanisasjonen Los Altos, rett overfor Hotel Atlas, i et område med høy turist- og befolkningstetthet året rundt.. Huset er perfekt for helårsbruk, og de tilstøtende bygningene har potensial til å utvide boligarealet eller til og med generere inntekt ved å øke bruksarealet, for eksempel som langtidsleie.. . Eiendommen består av to uavhengige boliger på en tomt på ca. 440 m2, med en total bygget overflate på ca. 310 m2, og tilbyr mange muligheter for store familier eller de som ønsker ekstra plass for gjester, utleie eller privat bruk som nevnt tidligere.. . Hovedboligen i første etasje kjennetegnes av romslighet, karakter og komfort. Den har 4 store soverom og 2 komplette bad, hvorav ett tilpasset for funksjonshemmede eller eldre, en stor stue/spisestue med peis og et separat kjøkken. Alle rom er lyse og komfortable, designet for familieliv, med hjertet av huset som en stor sal i kastiljansk stil med tradisjonell peis, som gir varme og personlighet til eiendommen.. Eiendommen har ingen vannforsyning. Begge boliger leveres helt tomme, uten møbler eller hvitevarer.. . Fra hovedboligen er det direkte tilgang til felles gårdsplass, hvor det private svømmebassenget ligger, og skaper et perfekt miljø for avslapning, fritid og utendørs samlinger.. . Den andre boligen er et uavhengig område, tidligere internt koblet til hovedboligen via den sentrale tomten, men som nå er adskilt, noe som gir fullstendig privatliv mellom de to områdene eller enkel reintegrering om ønskelig.. . Dette andre området tilbyr mange bruksområder når nødvendige ombygginger er utført: det kan bygges om til en annen bolig, gjesteleilighet, ekstra familiområde eller uavhengig rom innen samme eiendom. Den har også en terrasse/solarium over denne andre boligen, ideell for sommerbruk, grill eller chill-out område for familie og venner.. . Beliggenhet. Ligger i et strategisk område av Los Altos, omgitt av boligområder og svært nær alle tjenester, kun noen minutter fra strender, kjøpesentre, restauranter, golfbaner og hovedforbindelser.. . En unik eiendom med karakter og allsidighet, ideell for de som søker plass, privatliv og en privilegert beliggenhet på Costa Blanca, med mange muligheter for utvidelse for å øke verdien av dagens eiendom.Pris: €449 000. Skatter og kjøpsomkostninger er ikke inkludert (i henhold til gjeldende regelverk). En oversikt over tilleggskostnader vil bli gitt før reservasjon.