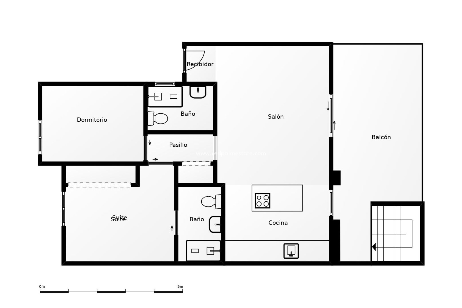
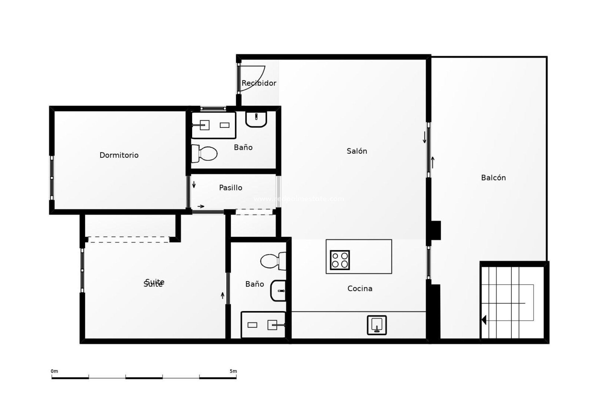
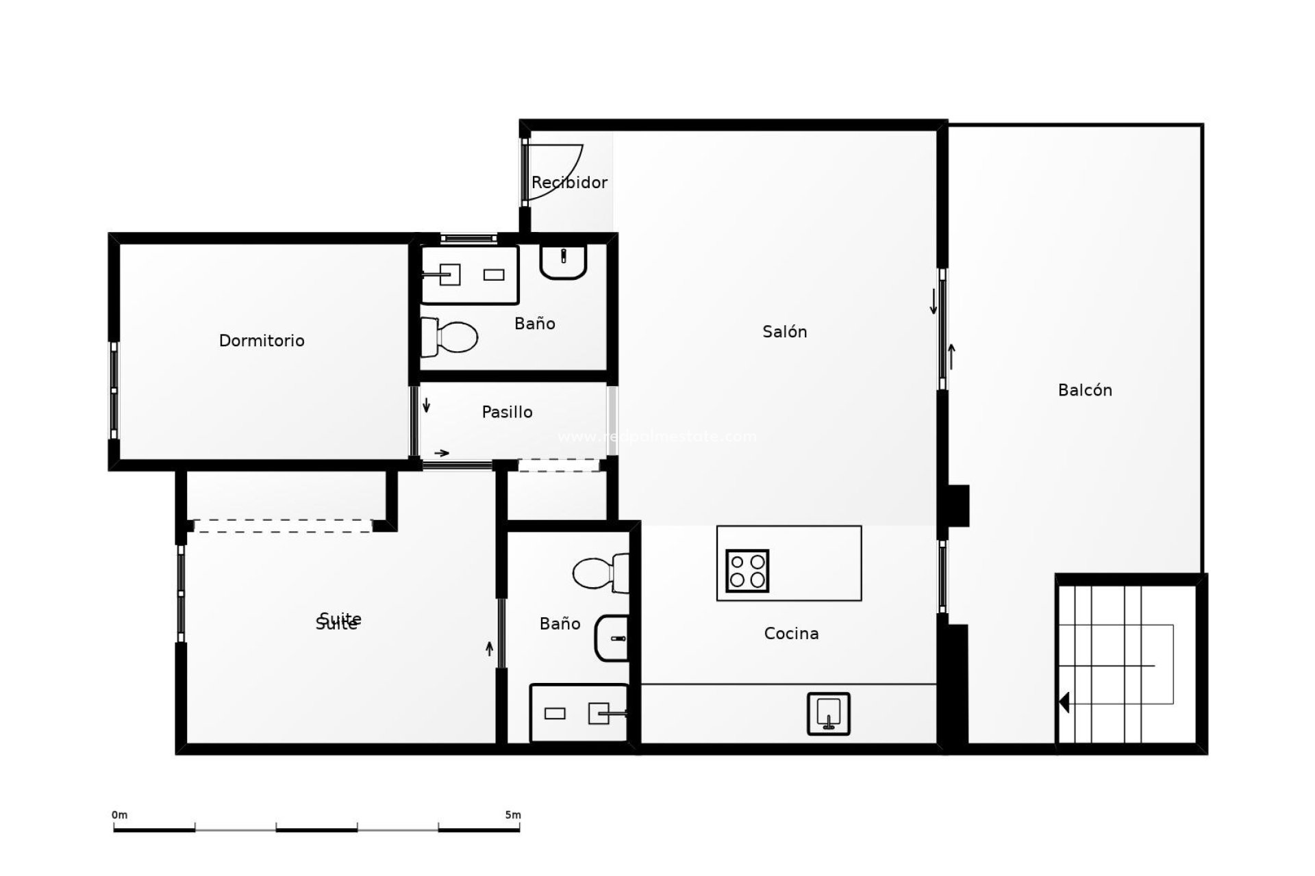
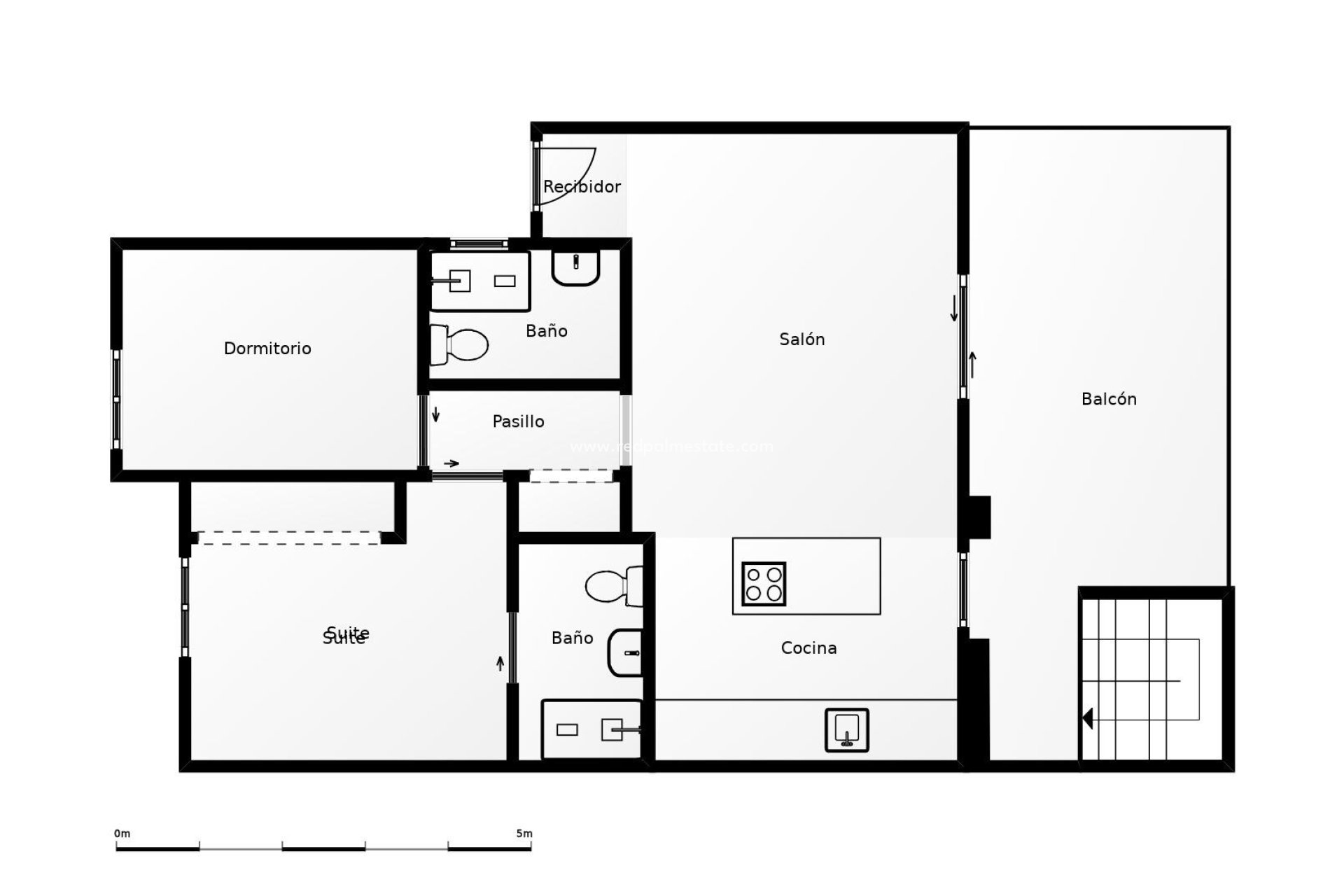
Oppdag denne flotte bungalowleiligheten i øverste etasje, beliggende i det prestisjefylte området PAU 26, Orihuela Costa, hvor moderne design, komfort og livskvalitet møtes.. . Denne nesten nye boligen, bygget i 2022, har 76 m2 bebygd areal, en funksjonell planløsning og en utmerket sydvendt beliggenhet, som gir rikelig med naturlig lys hele dagen.. . Boligen ligger i et privat og eksklusivt boligkompleks med kun 24 boenheter, noe som sikrer ro, privatliv og et attraktivt bomiljø. Ved inngang møtes du av en lys og romslig stue med spiseplass og moderne åpen kjøkkenløsning. Fra stuen er det utgang til en 12 m2 stor balkong, utstyrt med elektrisk markise og kunstgress, perfekt for å nyte utelivet året rundt.. Boligen har også vaskerom, to romslige doble soverom og to komplette bad, begge med gulvvarme for ekstra komfort.. . Fra balkongen fører en privat trapp til boligens høydepunkt: et imponerende privat solarium på ca. 71 m2, med kunstgress og markiser, ideelt for en eksklusiv chill-out-sone eller avslapning i solen.. . Blant fasilitetene finner du flislagte gulv i porselen, myggnett på alle vinduer, sikkerhetsdør, elektrisk markise på balkongen og manuell markise på pergolaen på solariumet.. . Boligen selges med privat parkeringsplass og lukket bod, som gir ekstra lagringsplass og bekvemmelighet.. . Sameiet tilbyr et vakkert felles svømmebasseng, meget velstelte grøntområder og fellesarealer av høy kvalitet – ren luksus.. . Boligen ligger kun 3,5 km fra sjøen, nær populære strender som La Zenia og Playa Flamenca, kjent for sine krystallklare vann og gode fasiliteter.. . Nærheten til anerkjente golfbaner gjør dette til en svært ettertraktet ferieinvestering med stort utleiepotensial.. . En bolig som kombinerer eksklusivitet, komfort og middelhavslivsstil.. En unik mulighet – ta kontakt i dag.. Pris: €349 000. Skatter og kjøpsomkostninger er ikke inkludert (i henhold til gjeldende regelverk). En oversikt over tilleggskostnader vil bli gitt før reservasjon.