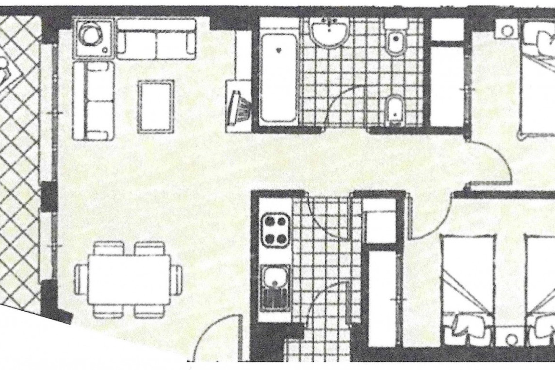
TO-SOVEROMS OG ETT BAD I FORRESTÅENDE GOLFLEILIGHETDenne leiligheten i første etasje ligger i fase 4 av dette 18-hulls golfanlegget designet av Jack Niklaus, og er omtrent ti minutters gange unna feriestedets sentrum med restaurant, bar, supermarked, kafé og de herlige hagene til Riquelme-familiens hacienda, som feriestedet har fått navnet sitt fra.Det er 19 svømmebassenger på feriestedet, og det nærmeste ligger bare et steinkast unna.Leiligheten går inn i stue/spisestue med store skyvedører som fører ut til terrassen, som er inngjerdet med skyvedører som muliggjør bruk året rundt, og flislagt for å matche innsiden av eiendommen.Det er nydelig utsikt over og nedover golfbanen til fjellene i det fjerne.Gangen fører til de to soverommene. Hvert soverom har innebygde doble garderober med skyvedører som gir god plass til oppbevaring og skuffer, samt uavhengige franske balkonger.Kjøkkenet består av en rekke underskap, benkeplater og overskap, og er utstyrt med stekeovn, koketopp, avtrekksvifte, vaskemaskin, oppvaskmaskin og kjøleskap med fryser.Badet består av toalett, bidet, servantskap med servant og speil over. Det er en hjørnedusjkabinett og god plass til å gjøre dette om til en dusjkabinett i full bredde. Det er et av de større baderomsdesignene i eiendommene på Hacienda Riquelme.Denne leiligheten egner seg perfekt for modernisering til en åpen planløsning i amerikansk stil, som vist på «Ombygd leilighet» på nettsiden vår.Den hyggelige og typiske spanske landsbyen Sucina med barer, restauranter og kirketorget ligger bare noen få minutter unna med bil.Murcia internasjonale lufthavn ligger omtrent 20 minutter unna med bil, og Alicante lufthavn ligger omtrent 1 time og 15 minutter unna med bil.De historiske byene Murcia og Cartagena ligger begge omtrent 40 minutter unna med bil.Strendene på Costa Calida langs Middelhavskysten ligger bare en 20-minutters kjøretur unna.Besøk GALLERIET på nettsiden vår for å se bilder av steder å besøke i og utenfor området.