NYBYGD BOLIGKOMPLEKS NÆR ESTEPONA
Nybygget boligkompleks som ligger i området Buenas Noches, den rolige og avslappede enklaven i Malaga, mellom Estepona og Casares. Denne lille landsbyen, som er ukjent for mange, har frem til nå holdt seg litt unna turiststrømmen.
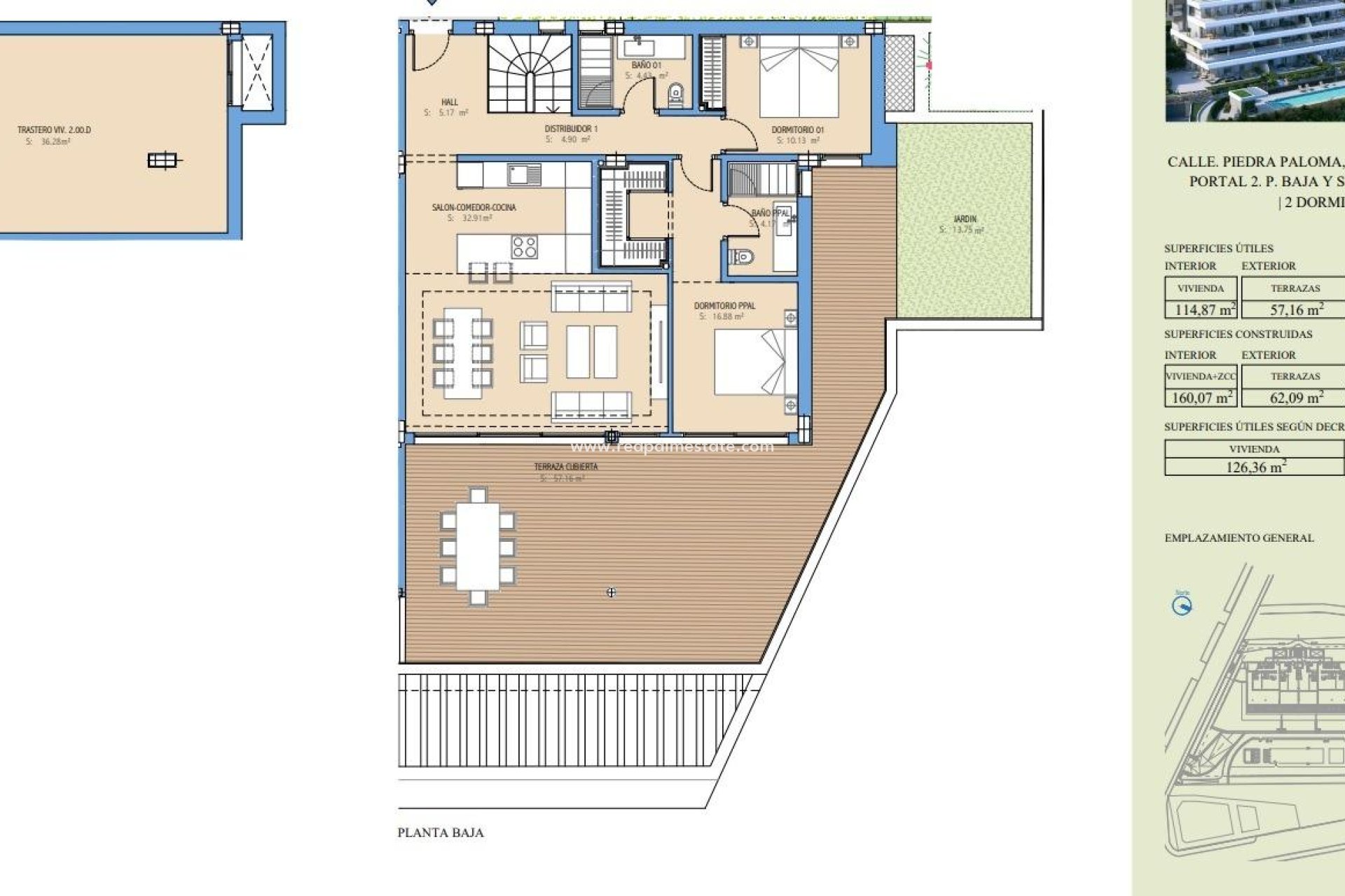
Alle boligene er designet for å tilby maksimal komfort og raffinement, fra toppleiligheter med store terrasser og solarium, til leiligheter i mellometasjen med romslige terrasser med utsikt over havet og romslige private hager i første etasje.
Prosjektet omfatter et stort hageområde, perfekt for soling eller avslapping med en bok mens du nyter den enestående utsikten over Middelhavet. Fordyp deg i en oase av avslapning ved bassenget, hvor du kan nyte den varme solen og klimaet som Costa del Sol har å by på.
Og som om ikke det var nok, vil fremtidige beboere kunne holde seg i form i det fullt utstyrte treningsstudioet.
I dette boligområdet er lyset hovedpersonen, og det flommer inn over terrasser og hager og bringer middelhavsbrisen inn i hjemmet ditt. Hvert rom er utformet med utførelser av høyeste kvalitet, der hver eneste detalj er nøye utvalgt for å gi maksimal komfort.
Store panoramavinduer med doble vinduer for bedre termisk og akustisk isolasjon, sammenhengende oppholdsrom med et åpent konsept, kjøkken utstyrt med moderne hvitevarer, porselensgulv i stort format og utvendig overflatebehandling av høy kvalitet for å fremme energieffektivitet.
Dette komplekset med 24 boliger ligger bare 550 meter fra Esteponas strand, med utsikt over Middelhavet og et fantastisk skue av lys og ro. Lev den livsstilen du fortjener på dette drømmestedet, og gjør deg klar til å nyte en absolutt opplevelse!
Området skiller seg ut for Playa de la Galera-stranden. Dette sandområdet ligger like ved Bahía Dorada-stranden, og har fått sitt navn etter Torre de la Galera, også kjent som Torre de la Sal eller Torre del Salto de la Mora, som ligger noen få meter unna.
Buenas Noches er det ideelle stedet å tilbringe noen avslappende dager, samtidig som man har muligheten til å utøve vannaktiviteter eller spille golf på en av banene som ligger spredt langs hele kysten.
Estepona, en destinasjon som bader i Middelhavets varme vann, ligger i en privilegert enklave på Costa del Sol i Andalucia. Det er et sted som fengsler sine besøkende med sin unike sjarm og en perfekt kombinasjon av det tradisjonelle og det moderne.
Den renoverte gamlebyen, som regnes som en av de vakreste i Andalucia, gir turister muligheten til å fordype seg i en ekte urban hage, kjent som "Costa del Sols hage".
De smale, hvite gatene, dekorert med fargerike blomsterpotter som bugner over av blomster, gir byen en følelse av å være en pittoresk andalusisk kystby. Estepona har klart å bevare sine tradisjoner og skikker, og har integrert dem i perfekt harmoni med sitt mer moderne og turistifiserte utseende.
410