Nybygget villa i Ibiza-stil med luksuriøse detaljer i Javea
Eksklusiv middelhavsdesign nær El Arenal-stranden
Denne fantastiske nybyggede villaen i Ibiza-stil i Javea ligger bare 3 km fra den berømte El Arenal-stranden, et av de mest livlige og attraktive områdene på Costa Blanca Nord. Eiendommen ligger i et rolig og godt tilknyttet boligområde og tilbyr en eksepsjonell kombinasjon av eleganse, komfort og moderne middelhavsarkitektur. Javea er kjent for sitt krystallklare vann, pittoreske bukter, naturparker, marinaer og utmerkede spisesteder, noe som gjør det til et svært attraktivt reisemål både for å bo og investere.
Elegant interiør på to etasjer
Villaen er nøye designet for å maksimere komfort og stil. I første etasje er en romslig stue og spisestue sømløst forbundet med et fullt utstyrt kjøkken, noe som skaper et lyst og innbydende åpent rom. Dette nivået inkluderer også en heis for ekstra bekvemmelighet, et gjestetoalett og en sentral gang som forbinder alle områder.
Det er to doble soverom med eget bad, pluss et imponerende hovedsoverom med stor planløsning, eget bad og integrert walk-in-garderobe.
Uteplass designet for middelhavsstilen
Uteområdene er skapt for å nyte det varme klimaet i Javea hele året. Eiendommen har to elegante pergolaer, en ved inngangen og en som strekker seg fra stuen og kjøkkenet mot den åpne terrassen som omgir det 38 m2 store private bassenget.
Ved siden av kjøkkenet ligger en ekstra terrasse med grillplass, som er perfekt for uteservering og sosiale sammenkomster.
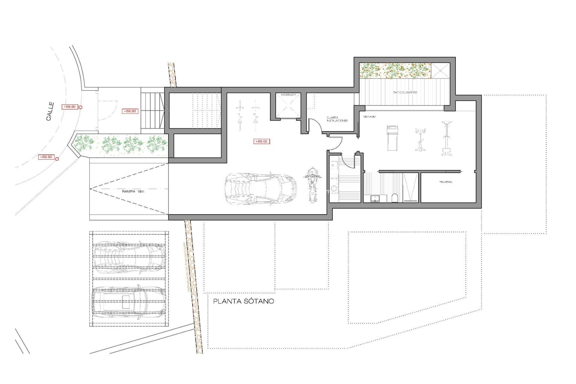
Førsteklasses kjeller med eksepsjonelle fasiliteter
Kjelleren kombinerer funksjonalitet og luksus, med åpen garasje, heis, vaskerom, tørkerom, treningsrom, overbygd uteplass, bad og et romslig oppbevaringsrom. Denne etasjen er designet for å tilpasse seg moderne livsstil og samtidig tilby maksimal bekvemmelighet.
Førsteklasses beliggenhet i Javea
Javea tilbyr en unik blanding av naturlig skjønnhet, fritidsaktiviteter og tjenester av høy kvalitet.
Viktige avstander fra villaen:
El Arenal-stranden 3 km
Javea havn og marina 7 km
Javea golfklubb 3 km
Alicante flyplass 100 km
Valencia flyplass 125 km
Ditt middelhavshjem venter
Enten du er på utkikk etter en permanent bolig, et luksuriøst feriehus eller en førsteklasses investeringsmulighet, tilbyr denne villaen enestående kvalitet og en uovertruffen beliggenhet. Kontakt oss i dag for å avtale en visning og oppdag ditt nye hjem i Javea.
410