Moderne nye leiligheter med takterrasse i Las Mesas Estepona
Førsteklasses beliggenhet i et av Esteponas mest lovende områder
Dette eksklusive nye boligprosjektet ligger i Las Mesas, et av de raskest voksende og mest attraktive områdene i Estepona på Costa del Sol. Bare 1 km fra stranden og kun få minutter fra sentrum, har prosjektet en strategisk beliggenhet omgitt av tjenester, natur, golfbaner og et enestående gastronomisk og kulturelt tilbud. Estepona, kjent som Costa del Sols hage, kombinerer sjarmen til en tradisjonell andalusisk by med energien til en moderne kosmopolitisk by.
Moderne boliger designet for middelhavsliv
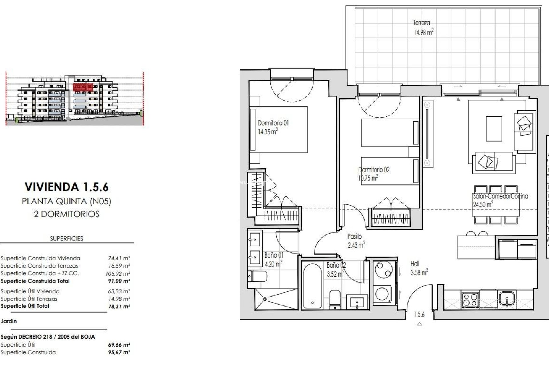
Utbyggingen består av 43 elegante leiligheter med to og tre soverom, designet for å tilby komfort, stil og naturlig lys hele året. Store vinduer lar middelhavssolen fylle hvert rom, mens den sømløse forbindelsen mellom oppholdsrom og terrasser forsterker følelsen av rom og utendørs liv. Fra hjemmet ditt kan du nyte utsikten over fjellene eller de anlagte hagene i komplekset, som skaper en fredelig og privat atmosfære.
Eksepsjonelle takterrasser og fellesfasiliteter
Et av høydepunktene i dette prosjektet er den imponerende takterrassen med oppvarmet boblebad og grillområde, ideelt for avslapning og sosialt samvær mens du nyter den åpne utsikten. Beboerne kan også benytte seg av et anlagt svømmebasseng, innendørs treningsstudio, coworking-rom, badstue og tyrkisk bad. Disse gjennomtenkte rommene fremmer velvære, fritid og et livlig fellesskap.
Høykvalitets spesifikasjoner og valgfrie funksjoner
Alle boligene har italiensk designkjøkken fullt utstyrt med hvitevarer, bad med servantskap, speil og dusjvegger, samt parkeringsplass og bod. Leiligheter i første etasje og penthouse-leiligheter tilbyr muligheten til å installere private minibassenger mot en ekstra kostnad, noe som gir ekstra komfort og eksklusivitet.
Utmerkede forbindelser og nærliggende severdigheter
Las Mesas tilbyr utmerket tilgang til motorveien A7, noe som gjør det enkelt å reise langs kysten. Viktige avstander inkluderer La Rada-stranden 1 km, Estepona marina 2 km, Estepona gamleby 1,5 km, flere golfbaner innen 5 km, Puerto Banus 20 km, Marbella 30 km, Malaga flyplass 80 km og Gibraltar flyplass 45 km.
Sikre deg ditt nye hjem i Estepona i dag
Dette prosjektet er et ideelt valg for deg som ønsker et moderne hjem nær sjøen med førsteklasses fasiliteter i en av de beste beliggenhetene på Costa del Sol. Kontakt oss nå for å få mer informasjon eller for å avtale en visning.
410