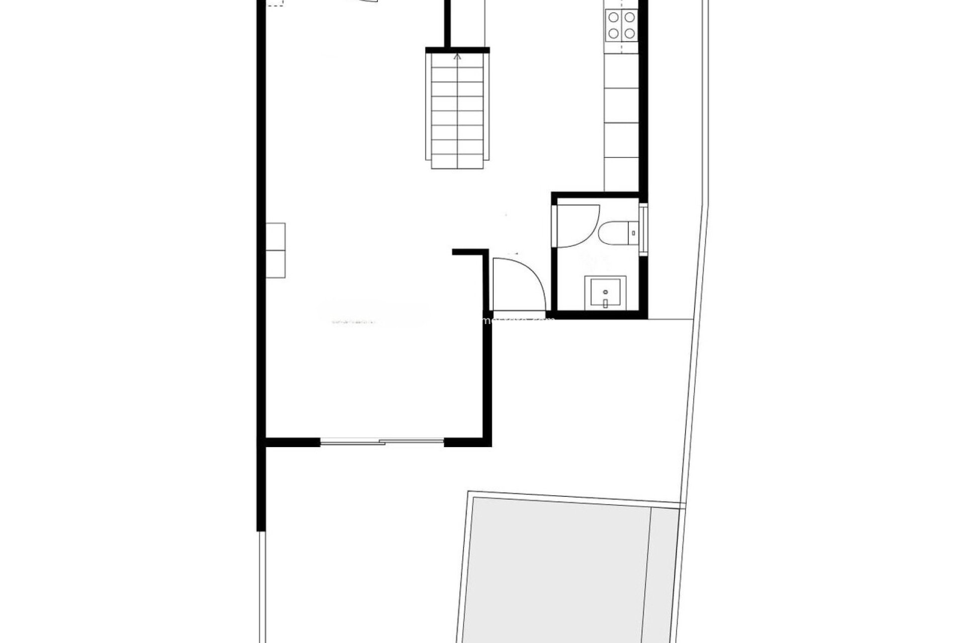
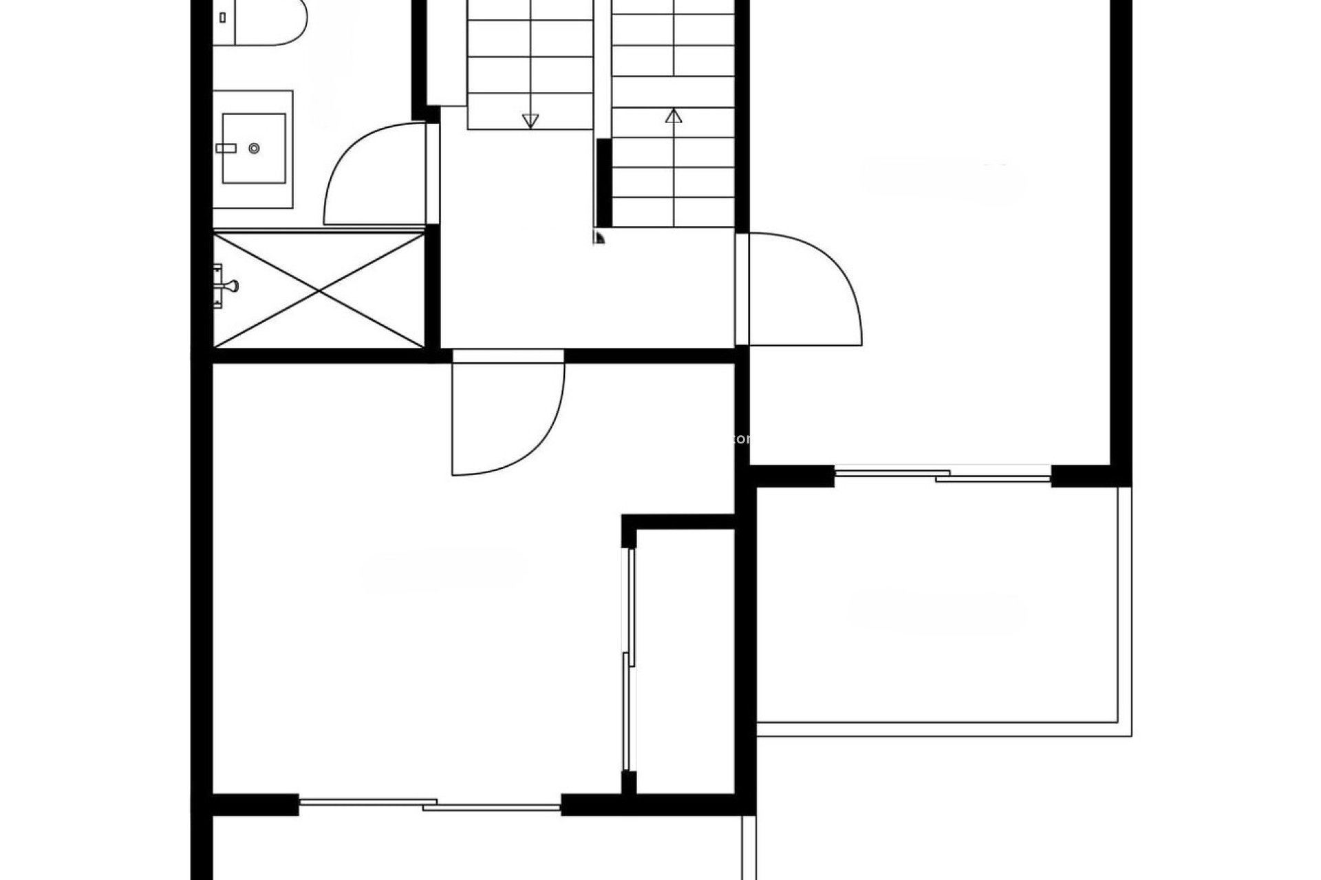
Velholdt og stilig tomannsbolig i det sjarmerende Entre Golf, et av de mest verdsatte og rolige boligområdene i Villamartín. Ligger i den rolige og lukkede Bidasoa-gaten, i gangavstand fra restauranter, kafeer, supermarkeder og en kort kjøretur fra den populære Villamartin Plaza og La Fuente. Også en kort kjøretur fra flere golfbaner, blant annet Villamartin golf. Lys og romslig Den lyse og store stuen går sømløst over i den åpne kjøkkenet og den solrike terrassen mot sør. Det er også et separat toalett, ideelt for gjester. Du har din egen private svømmebasseng med varmepumpe, en vedlikeholdsvennlig hage og mulighet for parkering på tomten. Flere naboer har valgt å ombygge spisestuen til et ekstra soverom – mulighetene er mange. Ovenpå finner du to romslige dobbeltrom, begge med innebygde garderober og egen balkong – ideelt for å starte morgenen med en kopp kaffe. Det lyse, helflislagte badet er utstyrt med en romslig dusj. På solariet venter et nydelig takterrasse med fantastisk utsikt over omgivelsene. Innflyttingsklar og møblert Boligen selges med stilige møbler, tilbehør og praktiske husholdningsartikler – du trenger bare å ta med kofferten din, så kan du flytte inn med en gang.Topp beliggenhet i Villamartin - Los Altos Los Altos er kjent for sin rolige atmosfære, utmerkede fasiliteter og nærhet til strender, butikker og restauranter. En perfekt kombinasjon av plass, komfort og middelhavsjarm. I tillegg til ditt eget private svømmebasseng har du også tilgang til det felles svømmebassenget i boligområdet, som ligger bare noen få meter unna, i enden av gaten. Det er svært godt vedlikeholdt, med ekte gress, parasoller og en petanquebane. Dette er en bolig som appellerer til både fastboende og ferierende, og selges eksklusivt gjennom oss. Kontakt oss i dag for å avtale en visning av denne perlen i en topp beliggenhet!