Videresalg » Leilighet » Orihuela Costa &ra

Leilighet · Videresalg Orihuela Costa, Villamartín

Kjennetegn

Leilighet · Videresalg Orihuela Costa, Villamartín

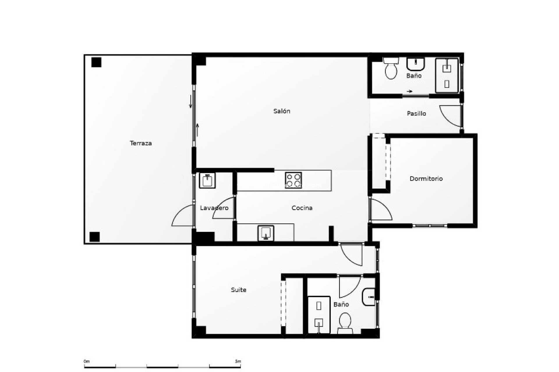
  • Meter 71m2
  • Soverom 2
  • Baderom 2
Soverom:2
Baderom: 2
Bygget: 71m2
Energi~~POS=TRUNC: X
Med utsikt over bassenget
Moderne eiendom
Sjarmerende eiendom
A/C
Persianas
Fibre optic internet conection
Aircondition, Split system
Utleiepotensial
Felles svømmebasseng
Inngjerdet basseng
Underjordisk parkering
Hage og bassengutsikt
Nær butikker
Air condition
Møblert
Parkering
Hvitevarer
Felles svømmebasseng
Gymnastikksal
Oppbevaring
Åpent kjøkken
Lekeplass for barn
Gym
Panoramautsikt
Nær fasiliteter
Amerikansk kjøkken
Nær ammenaties
Sørvendt
Parkering, Underground
Terrasse/balkong
Fullt møblert

Kart

Starte ett nytt liv

Foreta en forespørsel

Responsable del tratamiento: Red Palm Estate SL, Finalidad del tratamiento: Gestión y control de los servicios ofrecidos a través de la página Web de Servicios inmobiliarios, Envío de información a traves de newsletter y otros, Legitimación: Por consentimiento, Destinatarios: No se cederan los datos, salvo para elaborar contabilidad, Derechos de las personas interesadas: Acceder, rectificar y suprimir los datos, solicitar la portabilidad de los mismos, oponerse altratamiento y solicitar la limitación de éste, Procedencia de los datos: El Propio interesado, Información Adicional: Puede consultarse la información adicional y detallada sobre protección de datos Aquí.
Red Palm Estate
WhatsApp