Nybygg » Leiligheter » Orihuela Costa &raqu

NYBYGG BOLIG PÅ PLAYA FLAMENCA!!! Orihuela Costa, Playa Flamenca

€339.000
Ref. TLRS-99784

Kjennetegn

NYBYGG BOLIG PÅ PLAYA FLAMENCA!!! Orihuela Costa, Playa Flamenca

NYBYGG BOLIG PÅ PLAYA FLAMENCA!!!

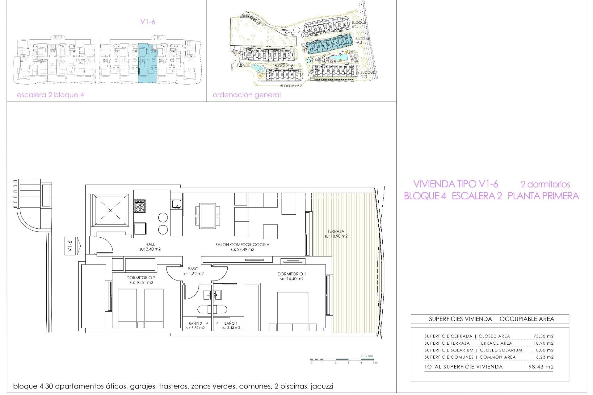
  • Meter 73m2
  • Soverom 2
  • Baderom 2
  • Basseng Ja
Soverom:2
Baderom: 2
Bygget: 73m2
Nyttig: 65m2
Basseng: Ja
Avstand til strand: 500 Mts.
Energi~~POS=TRUNC: B
Nær bussrute
Felles basseng
Gated
Antall parkeringsplasser: 1
Nær skoler
Nær kommersielle senter
Heis/heis
Sted: Kyst, Urbanisering
Klimaanlegg: Forhåndsinstallert
Dobbeltrom: 2
Terrasse: 18 Msq.
I nærheten av trær
Brukbar byggeplass: 65 Msq.
Strand: 500 meter
Parkeringsplass
Oppbevaring / Trastero

Beskrivelse

Kart

Starte ett nytt liv

Foreta en forespørsel

Responsable del tratamiento: Red Palm Estate SL, Finalidad del tratamiento: Gestión y control de los servicios ofrecidos a través de la página Web de Servicios inmobiliarios, Envío de información a traves de newsletter y otros, Legitimación: Por consentimiento, Destinatarios: No se cederan los datos, salvo para elaborar contabilidad, Derechos de las personas interesadas: Acceder, rectificar y suprimir los datos, solicitar la portabilidad de los mismos, oponerse altratamiento y solicitar la limitación de éste, Procedencia de los datos: El Propio interesado, Información Adicional: Puede consultarse la información adicional y detallada sobre protección de datos Aquí.
Red Palm Estate
WhatsApp