NYBYGGDE VILLAER I ROLDAN
Luksus 2 ett-plans nybyggede villaer i Roldan, Murcia.
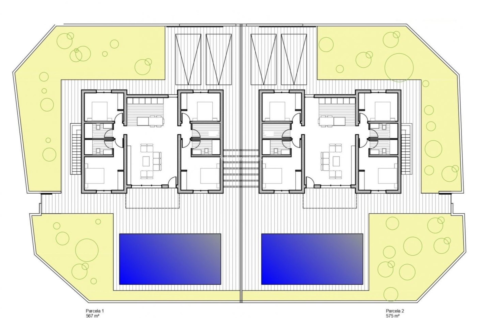
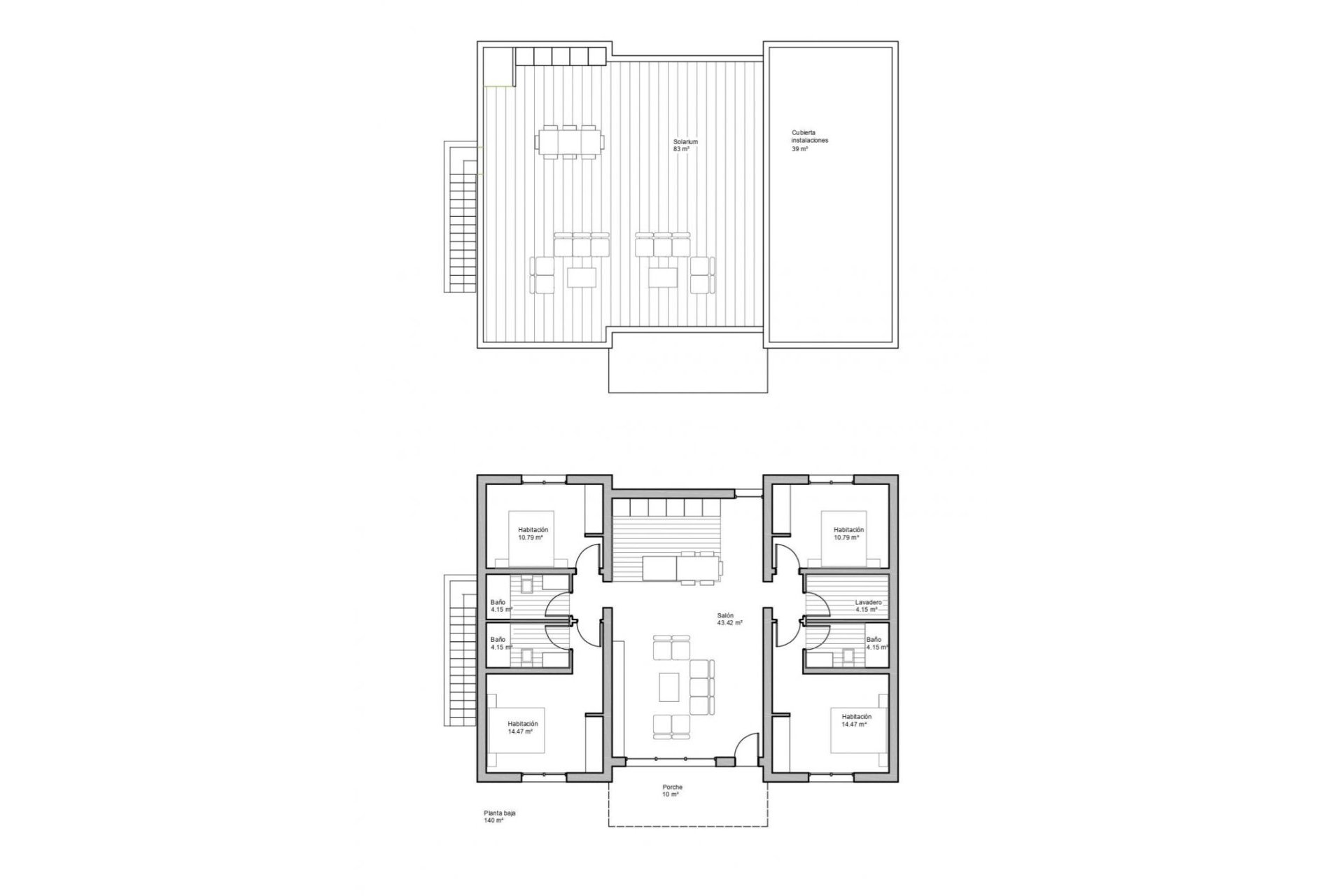
Villaer bygger på tomter på nesten 600 M2 hver, med privat basseng på 30 M2, hageområde og stort solarium på taket.
Hver eiendom har 4 soverom og 3 utstyrte bad og har blitt designet med en moderne stil og et åpent planløsningskonsept, bestående av et fullt utstyrt kjøkken og stue/spisestue.
Utbyggingen ligger i Roldán (Murcia), i et inngjerdet og sikkerhetskontrollanlegg, inkludert i en delplan på 300 000 M2, omgitt av alle tjenester, sportsfasiliteter og i nærheten av flere golfbaner.
Eiendommen vil oppfylle de høyeste standarder og vil være utstyrt med:
Privat svømmebasseng på 30 M2 med soldusj.
Forinstallasjon for oppvarmet pumpe.
Kjøkken fullt møblert og utstyrt med hevet stekeovn, innebygget mikrobølgeovn, integrert oppvaskmaskin, kjøleskap og avtrekksvifte.
Øyområde på kjøkkenet.
LED-belysning: inne i eiendommen (spisestue, kjøkken, korridorer og bad), samt i uteområder.
Fôrede garderober med skuffer.
Fullt utstyrt bad med nedhengt servantskap og nedhengt toalett, speil med lys, dusj med "regneffekt" og dusjskjermer.
Pre-installasjon for kanalklimaanlegg.
Sommerkjøkken med skyvedører i solarium. Formontering for vaskemaskin og kjøleskapsuttak.
Solcellepanel.
Parkering på tomten.
Roldan i seg selv er en tradisjonell by med alle de lokale fasilitetene du trenger, inkludert supermarkeder, restauranter, barer, helseklinikk, apotek, politistasjon, bensinstasjon, mekanikere, tannleger, leger og mer.
De nærliggende golfferiestedene La Torre og Terrazas er lett tilgjengelige, Corvera flyplass ligger 15 minutter unna og strendene ved Mar Menor kun 20 minutters kjøring.
410