EKSKLUSIVT KOMPLEKS MED DEN BESTE GOLF- OG HAVUTSIKTEN I MIJAS
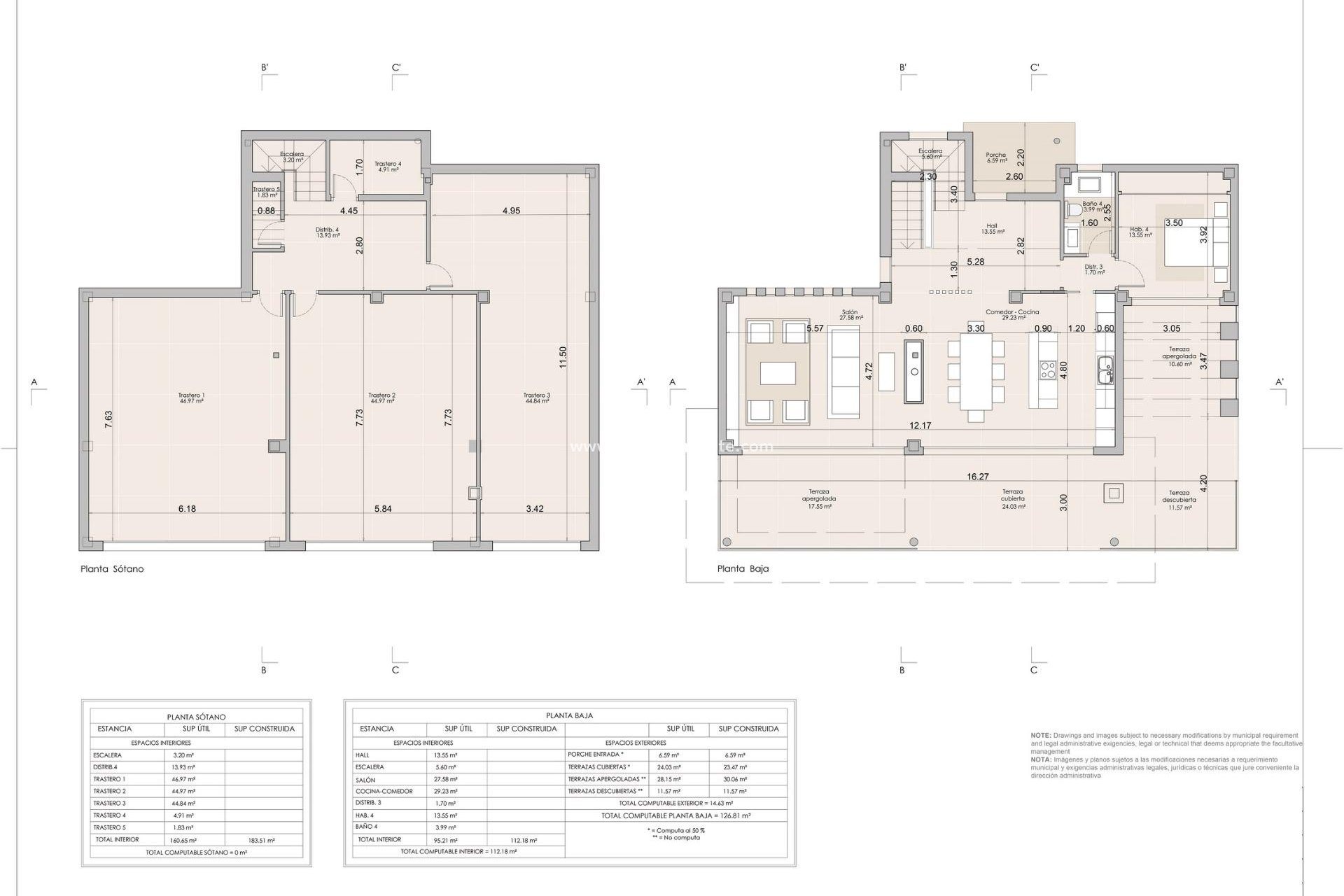
Nytt luksusprosjekt med bare 13 praktfulle villaer, hver med 4 soverom med eget bad. Tre av soverommene ligger i øverste etasje, mens det fjerde ligger ved siden av stuen. En stor kjeller gir deg muligheten til å endre den på en måte som passer dine behov: et annet soverom, kinorom, vinkjeller, treningsstudio, ..., du bestemmer!
Den luksuriøse stuen med åpen planløsning er designet for å gjøre hverdagen og underholdningen enklere. Stuen er koblet sammen med kjøkkenet og spisestuen på ett plan, slik at det er enkelt å komme til og fra et åpent område hvor du kan nyte utsikten.
Kjøkken og bad er utstyrt med produkter av høy kvalitet. Eiendommen har hjemmeautomatisering, slik at du kan styre lys, persienner, sikkerhet, oppvarming og klimaanlegg hjemmefra eller komfortabelt fra mobiltelefonen.
Villaene ligger i en bue rundt en av greenene på golfbanen Cerrado del Águila, med spektakulær panoramautsikt over Costa del Sol, og de som er så heldige å bo her, har enkel og praktisk tilgang til et bredt utvalg av kvalitetsfasiliteter og tjenester innen gangavstand.
Mijas kombinerer på en perfekt måte tradisjonen med brosteinsbelagte gater med hvitkalkede hus og uteplasser med fargerike blomsterpotter med modernitet og de beste fritidsfasilitetene på Costa del Sol. Den privilegerte beliggenheten mellom havet og fjellene gjør byen til et av de mest attraktive turistmålene i provinsen.
Utmerkede kommunikasjoner, med motorvei og bare 20 minutter fra Malagas internasjonale flyplass. Alt dette, i tillegg til mikroklimaet med 320 soldager i året og en årlig gjennomsnittstemperatur på 20 ºC, gjør Costa del Sol til et av de mest ettertraktede reisemålene i Spania.
410