Nybygg » Villa » Algorfa » La Finca G

NYBYGDE VILLAER I ALGORFA Algorfa, La Finca Golf

€535.000
Ref. TLRS-16695

Kjennetegn

NYBYGDE VILLAER I ALGORFA Algorfa, La Finca Golf

NYBYGDE VILLAER I ALGORFA

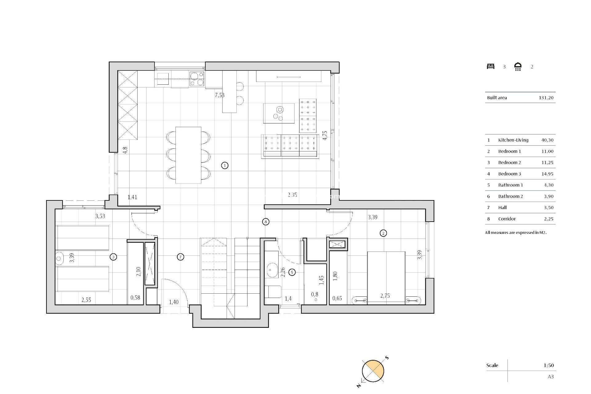
  • Meter 131m2
  • Tomt 308m2
  • Soverom 3
  • Baderom 2
  • Basseng Ja
Soverom:3
Baderom: 2
Bygget: 131m2
Nyttig: 105m2
Plott: 308m2
Basseng: Ja
Avstand til strand: 14000 Mts.
Energi~~POS=TRUNC: A
Sted: Landlig
Parkeringsplass
Hage
Privat basseng
Solarium: Ja
Gated
Terrasse: 66 Msq.
Antall parkeringsplasser: 1
Nær Golf / Golf Resort Property
Nær skoler
Nær kommersielle senter
Dobbeltrom: 3
Strand: 14000 meter
Klimaanlegg: Ja
Brukbar byggeplass: 105 Msq.

Beskrivelse

Kart

Starte ett nytt liv

Foreta en forespørsel

Responsable del tratamiento: Red Palm Estate SL, Finalidad del tratamiento: Gestión y control de los servicios ofrecidos a través de la página Web de Servicios inmobiliarios, Envío de información a traves de newsletter y otros, Legitimación: Por consentimiento, Destinatarios: No se cederan los datos, salvo para elaborar contabilidad, Derechos de las personas interesadas: Acceder, rectificar y suprimir los datos, solicitar la portabilidad de los mismos, oponerse altratamiento y solicitar la limitación de éste, Procedencia de los datos: El Propio interesado, Información Adicional: Puede consultarse la información adicional y detallada sobre protección de datos Aquí.
Red Palm Estate
WhatsApp