NYBYGDE BUNGALOWER I RODA GOLF
Nybygget boligkompleks som ligger på en sørvendt tomt i det prestisjetunge Roda Golf & Beach Resort, som grenser til banen med sine velstelte fairwayer og innsjøer.
Dette vakre komplekset består av 37 romslige boliger som omgir et fantastisk basseng og felles hager.
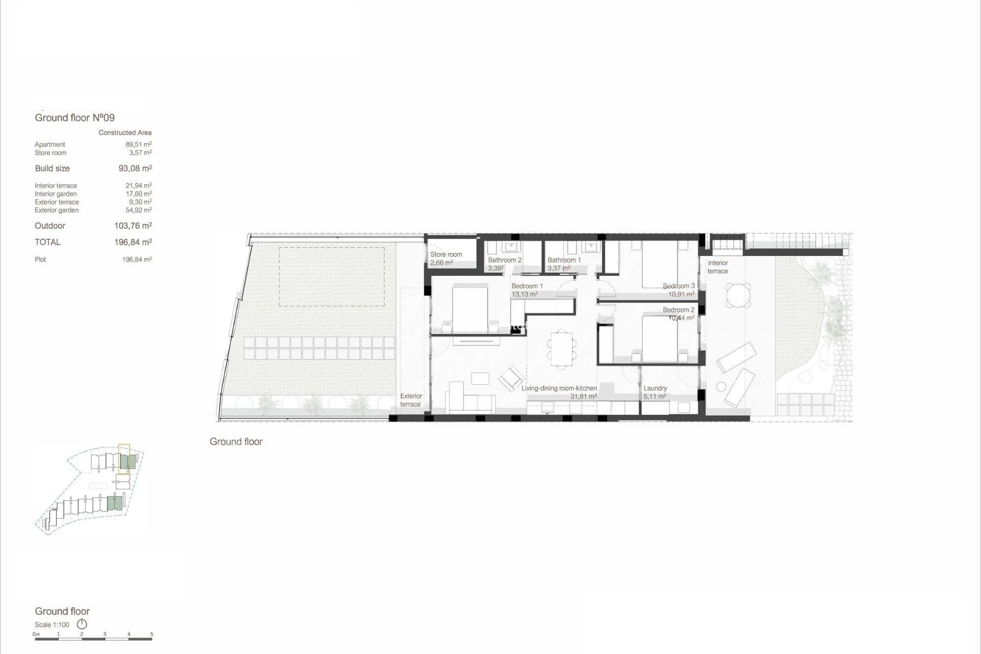
Dette moderne boligkomplekset tilbyr en rekke ulike typer boliger, utsikter og orienteringer, alt etter dine behov. Alle bungalowleilighetene har 3 doble soverom, 2 bad, en lys og romslig stue/spisestue med åpen planløsning og amerikansk kjøkken og en fantastisk uteplass. Alle har parkeringsplass utenfor veien og et privat oppbevaringsrom.
De 18 bungalowene i første etasje har en innvendig terrasse og hage som fører ut til felleshagen og bassengområdet, samt en stor, inngjerdet terrasse og hage på baksiden.
De 18 toppleilighetene har en balkong på forsiden av stuen, samt et fantastisk, 90 m2 stort privat takterasse med sommerkjøkken.
Boligkomplekset er designet for å maksimere bruken av plass og lys. Dette eksklusive tilbudet er en ekte oase på Costa Calida i Spania, og det er flott bygget og inkluderer et bredt utvalg av ekstrautstyr.
I hjertet av prosjektet ligger et fantastisk felles bassengområde, omgitt av middelhavsvegetasjon. Takket være den sørvendte beliggenheten er det et perfekt sted å bade, slappe av og nyte solen hele dagen.
I tillegg til den fantastiske innvendige plassen, har boligene i første etasje en vakker terrasse foran og en ekstra, privat hage som fører ut til det indre av boligkomplekset med sine fantastiske felleshager og bassengområde.
I tillegg har de en bakre terrasse og en lukket hage for maksimalt privatliv, med en port som fører ut til utsiden av urbanisasjonen. Den doble orienteringen sikrer at boligene har både sol og skygge hele dagen.
En vakkert vedlikeholdt, Dave Thomas-designet 18-hullsbane med innsjøer, strategisk plasserte bunkere, bølgende greener og frodig middelhavsvegetasjon. Et privat feriested med 24 timers vakthold, egen taxistasjon, et fantastisk klubbhus med a la carte-restaurant, treningsstudio med utsikt over innsjøen og idrettsområde. Og alt dette bare en spasertur eller sykkeltur unna strendene og det rolige vannet i Mar Menor-innlandslagunen.
Dette boligområdet har et fantastisk utvalg av gylne sandstrender rett utenfor døren, i tillegg til et bredt utvalg av vannsport. Nyt både Mar Menor og Middelhavet fra dette paradiset på Murcias kystlinje.
410