Nybygg » Leilighet » Estepona » La Ga

Moderne livsstil i Estepona: Romslige leiligheter med solrike terrasser Estepona, La Gaspara

€850.000
Ref. TLRS-49526

Kjennetegn

Moderne livsstil i Estepona: Romslige leiligheter med solrike terrasser Estepona, La Gaspara

Moderne livsstil i Estepona: Romslige leiligheter med solrike terrasser

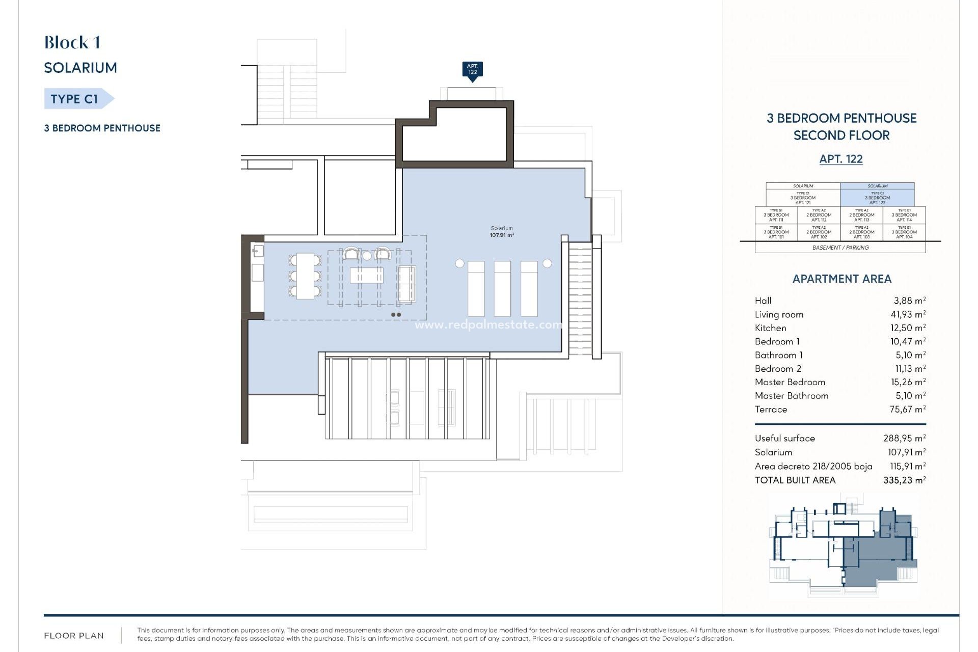
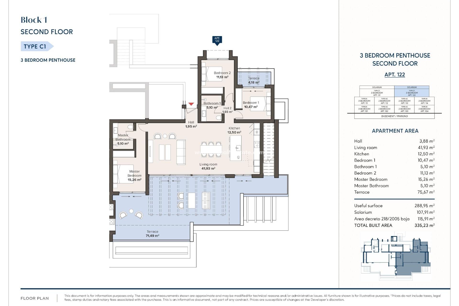
  • Meter 335m2
  • Soverom 3
  • Baderom 2
  • Basseng Ja
Soverom:3
Baderom: 2
Bygget: 335m2
Nyttig: 288m2
Basseng: Ja
Avstand til strand: 800 Mts.
Energi~~POS=TRUNC: B
Solarium: Ja
Felles basseng
Gated
Nær skoler
Nær kommersielle senter
Dobbeltrom: 3
Heis/heis
Strand: 800 meter
Sted: Kyst, Urbanisering
Antall parkeringsplasser: 2
I nærheten av trær
Parkeringsplass
Oppvarming: Ja, Aircondition: Ja
Terrasse: 182 Msq.
Oppbevaring / Trastero
Useable Build Space: 288 Msq.

Beskrivelse

Kart

Starte ett nytt liv

Foreta en forespørsel

Responsable del tratamiento: Red Palm Estate SL, Finalidad del tratamiento: Gestión y control de los servicios ofrecidos a través de la página Web de Servicios inmobiliarios, Envío de información a traves de newsletter y otros, Legitimación: Por consentimiento, Destinatarios: No se cederan los datos, salvo para elaborar contabilidad, Derechos de las personas interesadas: Acceder, rectificar y suprimir los datos, solicitar la portabilidad de los mismos, oponerse altratamiento y solicitar la limitación de éste, Procedencia de los datos: El Propio interesado, Información Adicional: Puede consultarse la información adicional y detallada sobre protección de datos Aquí.
Red Palm Estate
WhatsApp