Nye villaer til salgs i Torrevieja - 2 km fra sjøen
Oppdag disse fantastiske nye villaene som ligger i det ettertraktede området Torrevieja, bare 2 km fra Middelhavskysten. Disse boligene med 3 soverom og 2 bad tilbyr den perfekte blandingen av luksus, komfort og praktiske løsninger, og er designet for de som søker en sofistikert livsstil med alle fordelene ved å bo ved kysten.
Romslig design og høy kvalitet på finishen
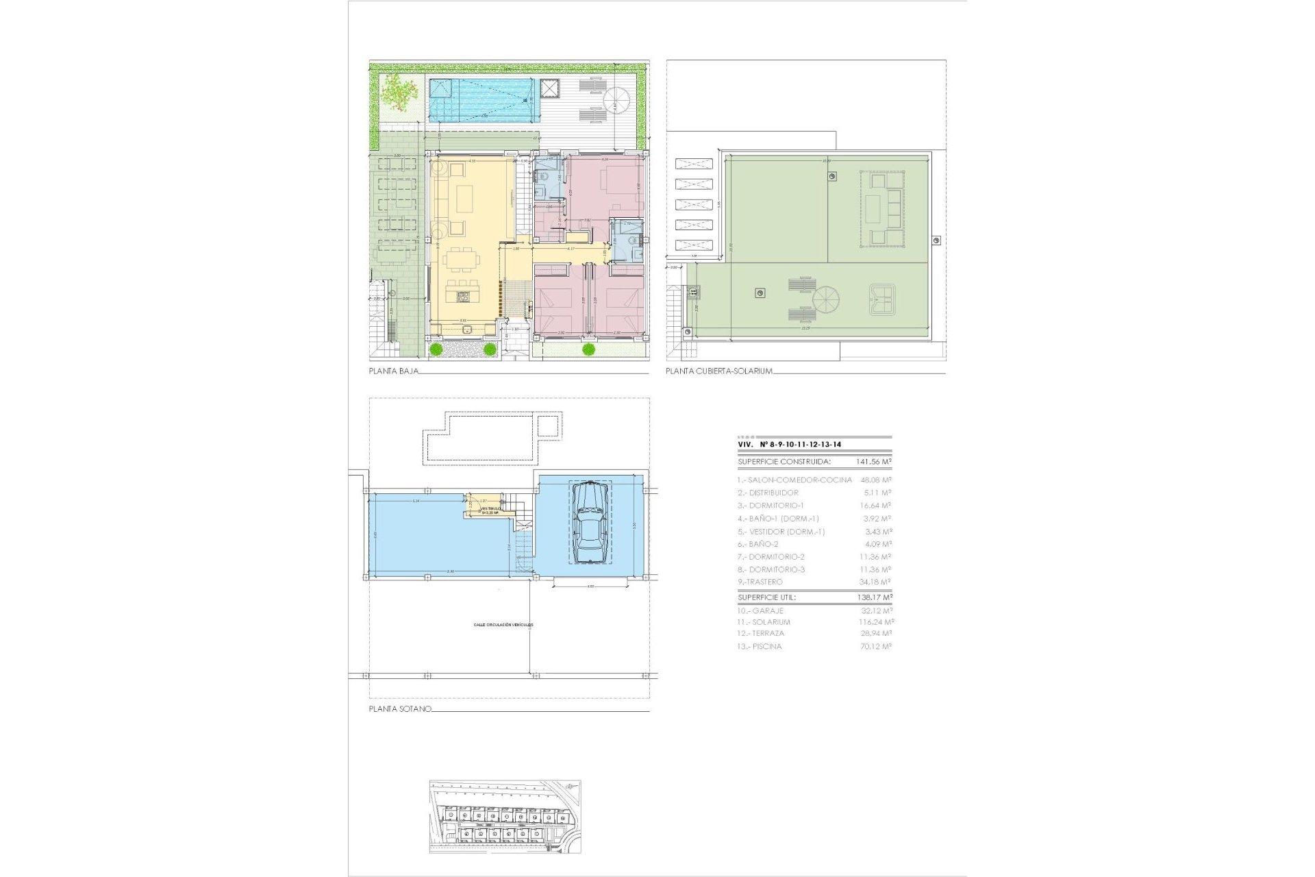
Disse enetasjes villaene er gjennomtenkt utformet for maksimal komfort og brukervennlighet. Med en åpen planløsning gir de god plass til avslapning og underholdning. Villaene har høy kvalitet, inkludert termorutete aluminiumsvinduer, Climalit doble vinduer og forhåndsinstallasjon for kanalisert klimaanlegg. For ekstra bekvemmelighet inkluderer boligene elektriske skodder, moderne bad med dusjkar i harpiks og innebygde svarte kraner, og privat parkering i underjordisk garasje med ekstra lagringsplass.
Privat basseng og solarium med fantastisk utsikt
Gå ut til din private oase, hvor du kan nyte luksusen av et privat basseng i din egen hage. Fra takterrassen kan du nyte den fantastiske utsikten over saltlagunen La Mata og området rundt, og nyte spektakulære solnedganger hver kveld. Eiendommen ligger i den høyeste delen av Torrevieja, noe som sikrer både privatliv og imponerende utsikt.
Eksklusive fellesfasiliteter
Anlegget har flere fellesfasiliteter, blant annet hageområder, en treningsbane og en petanquebane, perfekt for både avslapning og rekreasjon. Enten du vil nyte tiden alene eller sosialisere med naboene, gir denne villaen det perfekte miljøet for både et fredelig liv og et levende fellesskap.
Førsteklasses beliggenhet i Torrevieja
Disse villaene er omgitt av viktige tjenester og rekreasjonsmuligheter. Alicante-Elche lufthavn ligger bare 45 minutter med bil (43 km), noe som gjør det enkelt å reise internasjonalt. For shopping og servering ligger Habaneras kjøpesenter bare 3 km unna, og tilbyr en rekke butikker, restauranter og underholdningsalternativer.
Opplev middelhavsstilen
Torrevieja, som ligger på sørkysten av Alicante, kan skilte med over 300 soldager i året og en behagelig gjennomsnittstemperatur på 20 °C. Byen er kjent for sine vakre strender, livlige promenader og deilige middelhavsmatretter, noe som gjør den til det perfekte stedet for både avslapning og eventyr. Med sine familievennlige aktiviteter og rike kulturarv lover Torrevieja en tilfredsstillende livsstil året rundt.
Drømmeboligen din venter
Ikke gå glipp av sjansen til å eie en luksusvilla i en av Spanias mest ettertraktede kystbyer. Enten du er på utkikk etter en permanent bolig eller et feriested, tilbyr dette eksklusive området de ideelle omgivelsene for å oppleve det beste av middelhavslivet. Planlegg en visning i dag, og ta det første skrittet mot å gjøre ditt drømmehus til virkelighet!
410