Moderne leiligheter med fantastisk utsikt over vingården i Hondón de las Nieves
Stilfulle, nybygde leiligheter i fredelige omgivelser i en dal
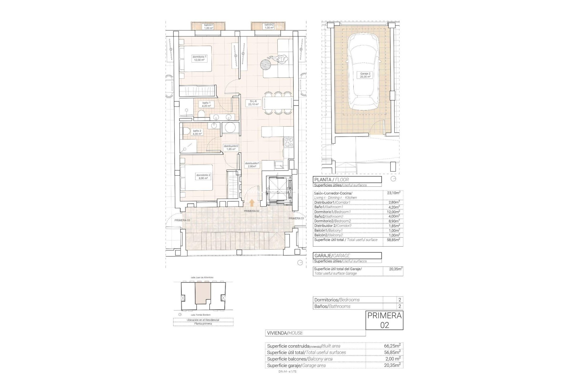
Oppdag disse moderne leilighetene i Hondón de las Nieves, en sjarmerende by som ligger i en pittoresk dal omgitt av olivenlunder og mandeltrær. Dette eksklusive boligkomplekset tilbyr leiligheter med 1, 2 og 3 soverom, som alle er designet for å gi komfort, energieffektivitet og en fantastisk utsikt over Vinalopó-vinmarkene.
Dette rolige området ligger i Vinalopó Medio-regionen, og er perfekt for dem som ønsker en avslappet middelhavsstil med lett tilgang til naturen og viktige tjenester.
Funksjoner av høy kvalitet for et moderne liv
Alle leilighetene er bygget med førsteklasses materialer og finish, noe som sikrer både stil og funksjonalitet:
Romslig interiør med åpen planløsning.
Fullt møblerte kjøkken med benkeplater i granitt.
Avanserte bad med innebygde sisterner og sanitærutstyr av topp kvalitet.
Energieffektiv design med aerotermisk vannoppvarming.
Forhåndsinstallert luftkondisjonering med kanaler for komfort året rundt.
Doble aluminiumsvinduer med varmeisolasjon.
Forsterket sikkerhetsinngangsdør for ekstra trygghet.
Privat garasje i første etasje inkludert.
Heis for enkel tilgang.
I tillegg er det installert solcellepaneler på taket for å forbedre energieffektiviteten og redusere strømutgiftene.
Førsteklasses beliggenhet i Hondón de las Nieves
Hondón de las Nieves er en sjarmerende spansk landsby som er kjent for sin vinproduksjon, tradisjonelle kultur og naturskjønne landskap. Byen har historiske bygninger, lokale markeder og naturlige turstier, noe som gjør den til et fantastisk sted for både permanent opphold og ferieopphold.
Dette nye prosjektet ligger i et fredelig område med gode forbindelser, og gir enkel tilgang til viktige tjenester og sentrale steder:
Alicante lufthavn - 30 km (30 minutters kjøretur)
Strendene i Alicante - 35 km (35 minutters kjøretur)
Elche - 20 km (20 minutters kjøretur)
Crevillente naturpark - 10 km (15 minutters kjøretur)
Golfbaner - 25 km (30 minutters kjøretur)
Ditt perfekte hjem i hjertet av Alicantes landsbygd
Nyt roen i Hondón-dalen samtidig som du bor i nærheten av de pulserende byene Alicante og Elche. Enten du er på utkikk etter et feriehus, en investeringseiendom eller et fredelig sted å bo året rundt, er disse moderne leilighetene det perfekte valget.
Kontakt oss i dag for mer informasjon eller for å avtale en visning!
410