Nybygg » Leiligheter » Estepona » Arr

Eksklusive boutique-boliger i Estepona - luksus, komfort og middelhavssjarm Estepona, Arroyo Enmedio

€899.000
Ref. TLRS-42209

Kjennetegn

Eksklusive boutique-boliger i Estepona - luksus, komfort og middelhavssjarm Estepona, Arroyo Enmedio

Eksklusive boutique-boliger i Estepona - luksus, komfort og middelhavssjarm

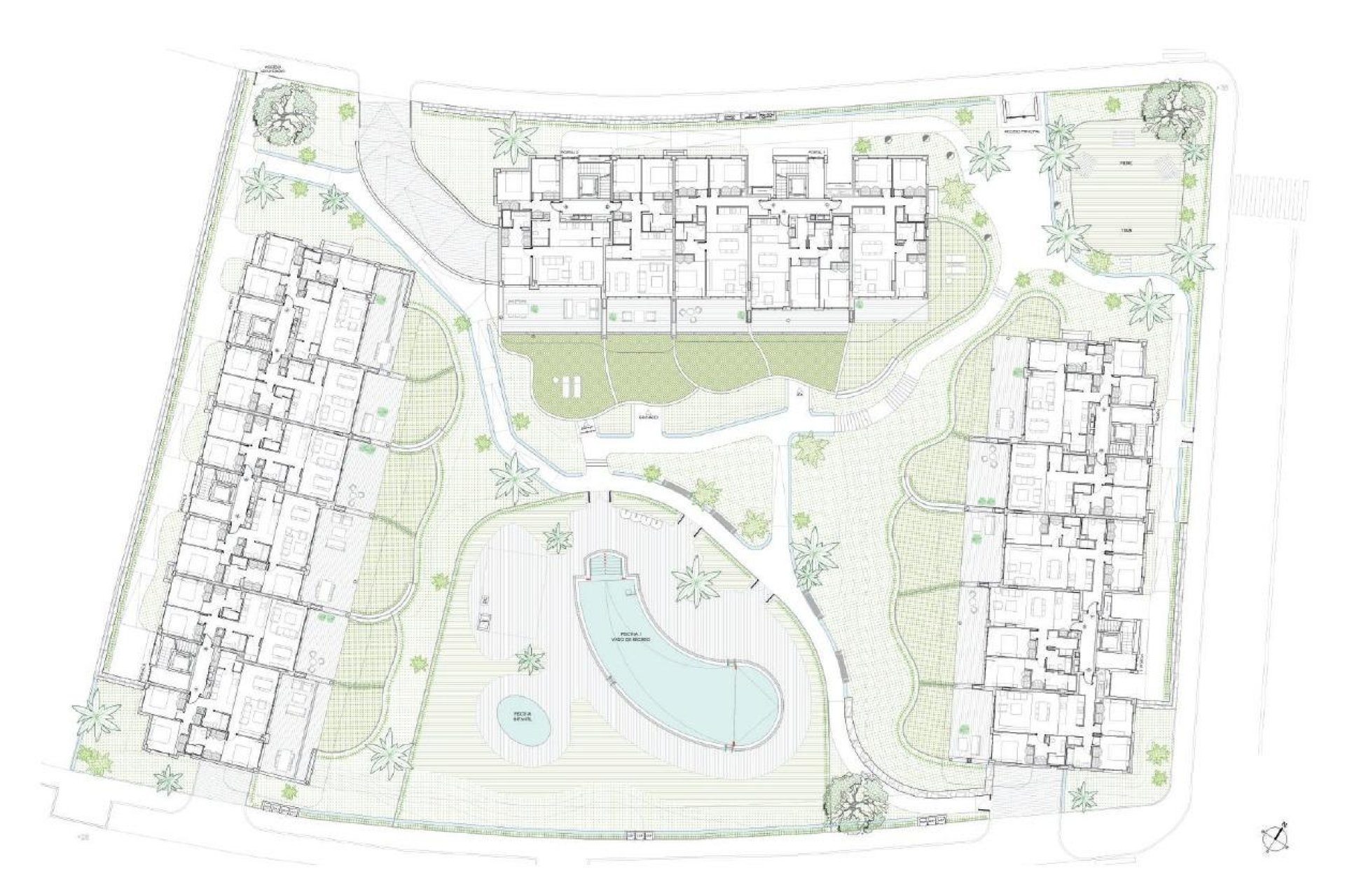
  • Meter 189m2
  • Soverom 4
  • Baderom 3
  • Basseng Ja
Soverom:4
Baderom: 3
Bygget: 189m2
Nyttig: 117m2
Basseng: Ja
Avstand til strand: 800 Mts.
Energi~~POS=TRUNC: B
Heis/heis
Strand: 800 meter
Sted: Kyst, Urbanisering
Antall parkeringsplasser: 2
Dobbeltrom: 4
Brukbar byggeplass: 117 Msq.
Parkeringsplass
Oppbevaring / Trastero
Terrasse: 217 Msq.
Nær bussrute
Solarium: Ja
Felles basseng
Jacuzzi
Gym
Gated
Nær skoler
Nær kommersielle senter
Klimaanlegg: Ja, forhåndsinstallert

Beskrivelse

Kart

Starte ett nytt liv

Foreta en forespørsel

Responsable del tratamiento: Red Palm Estate SL, Finalidad del tratamiento: Gestión y control de los servicios ofrecidos a través de la página Web de Servicios inmobiliarios, Envío de información a traves de newsletter y otros, Legitimación: Por consentimiento, Destinatarios: No se cederan los datos, salvo para elaborar contabilidad, Derechos de las personas interesadas: Acceder, rectificar y suprimir los datos, solicitar la portabilidad de los mismos, oponerse altratamiento y solicitar la limitación de éste, Procedencia de los datos: El Propio interesado, Información Adicional: Puede consultarse la información adicional y detallada sobre protección de datos Aquí.
Red Palm Estate
WhatsApp