Moderne nybyggede leiligheter i Estepona Golf, Málaga
Elegant boende omgitt av natur og golf
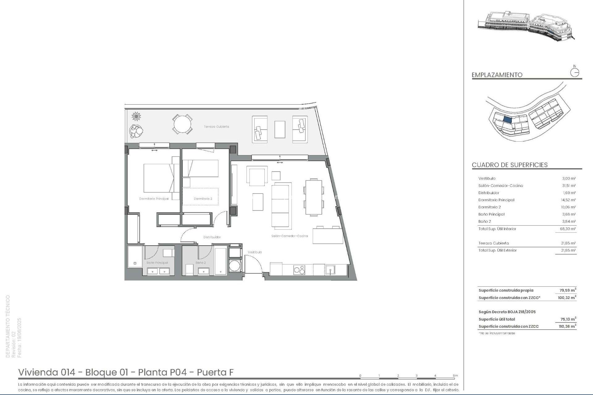
Velkommen til et eksklusivt nytt boligprosjekt med 68 moderne leiligheter i hjertet av Estepona Golf, Málaga. Prosjektet er designet for å kombinere moderne arkitektur med naturens ro, og tilbyr en unik livsstil i et av de mest attraktive områdene på Costa del Sol. Boligene har 1 til 3 soverom og romslige private terrasser med fantastisk utsikt over golfbanen og det grønne landskapet.
Lyse interiører og høykvalitets finish
Hver bolig er nøye planlagt for å maksimere naturlig lys og komfort. Interiøret har en elegant og moderne atmosfære med høykvalitets finish, åpen planløsning og store vinduer. Alle leilighetene har:
Store private terrasser med panoramautsikt over golfbanen
Fullt utstyrt kjøkken med overskap og underskap, benkeplater i Silestone-stil og innebygde hvitevarer
Klimaanlegg med varme og kjøling i stuen, soverommene og kjøkkenet
Forsterket inngangsdør for ekstra sikkerhet
Eksklusive fellesfasiliteter
Dette inngjerdede boligområdet er skapt for å forbedre beboernes livskvalitet, og tilbyr en rekke førsteklasses fellesfasiliteter:
Utendørs svømmebasseng med anlagte solterrasser
Solterrasse på taket med panoramautsikt
Fullt utstyrt treningsstudio
Sosial klubb og coworking-område
Parkering for golfbiler i direkte tilknytning til golfbanen
Nyt en avslappet og aktiv livsstil bare noen skritt fra døren, enten du vil spille golf, jobbe på fjernkontor eller slappe av ved bassenget.
Førsteklasses beliggenhet i Estepona
Bebyggelsen ligger i Estepona Golf Resort, omgitt av grønne landskap og fredelige omgivelser. Her har du enkel tilgang til både natur og byliv.
Avstander til viktige severdigheter:
Estepona sentrum: 4 km
Strendene på Costa del Sol: 2 km
Estepona havn: 6 km
La Resina Golf og Valle Romano Golf: innen 5 km
Laguna Village og shoppingområde: 8 km
Puerto Banús: 25 km
Málaga lufthavn: 85 km (ca. 55 minutter)
Gibraltar lufthavn: 50 km (ca. 40 minutter)
Sikre deg ditt drømmehus i Estepona i dag
Dette nye prosjektet er perfekt for helårsbeboelse, feriebolig eller en smart investering. Ikke gå glipp av sjansen til å nyte moderne komfort, havbris og ro ved golfbanen på et av Costa del Sols mest attraktive steder. Kontakt oss nå for mer informasjon eller for å avtale en visning.
410