Frontline Lake Villas i Santa Rosalía Lake Resort, Murcia
Nybyggede luksusvillaer i et unikt middelhavsresort
Oppdag en eksklusiv samling av nybyggede villaer i Santa Rosalía Lake and Life Resort, et førsteklasses privat inngjerdet boligområde i regionen Murcia. Disse luksuriøse boligene ligger i første linje ved resortets fantastiske kunstige innsjø, bare 4 km fra strendene i Mar Menor og nær den livlige kystbyen Los Alcázares.
Moderne design og førsteklasses komfort
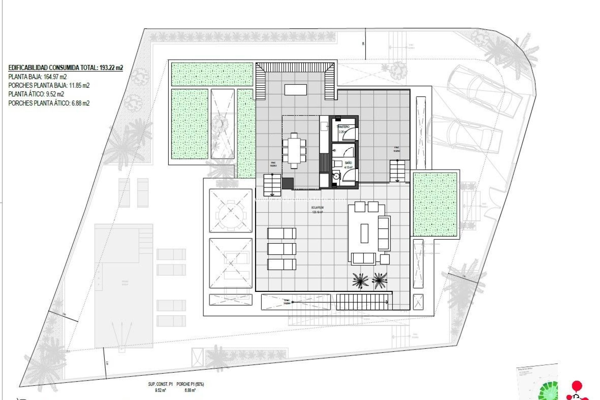
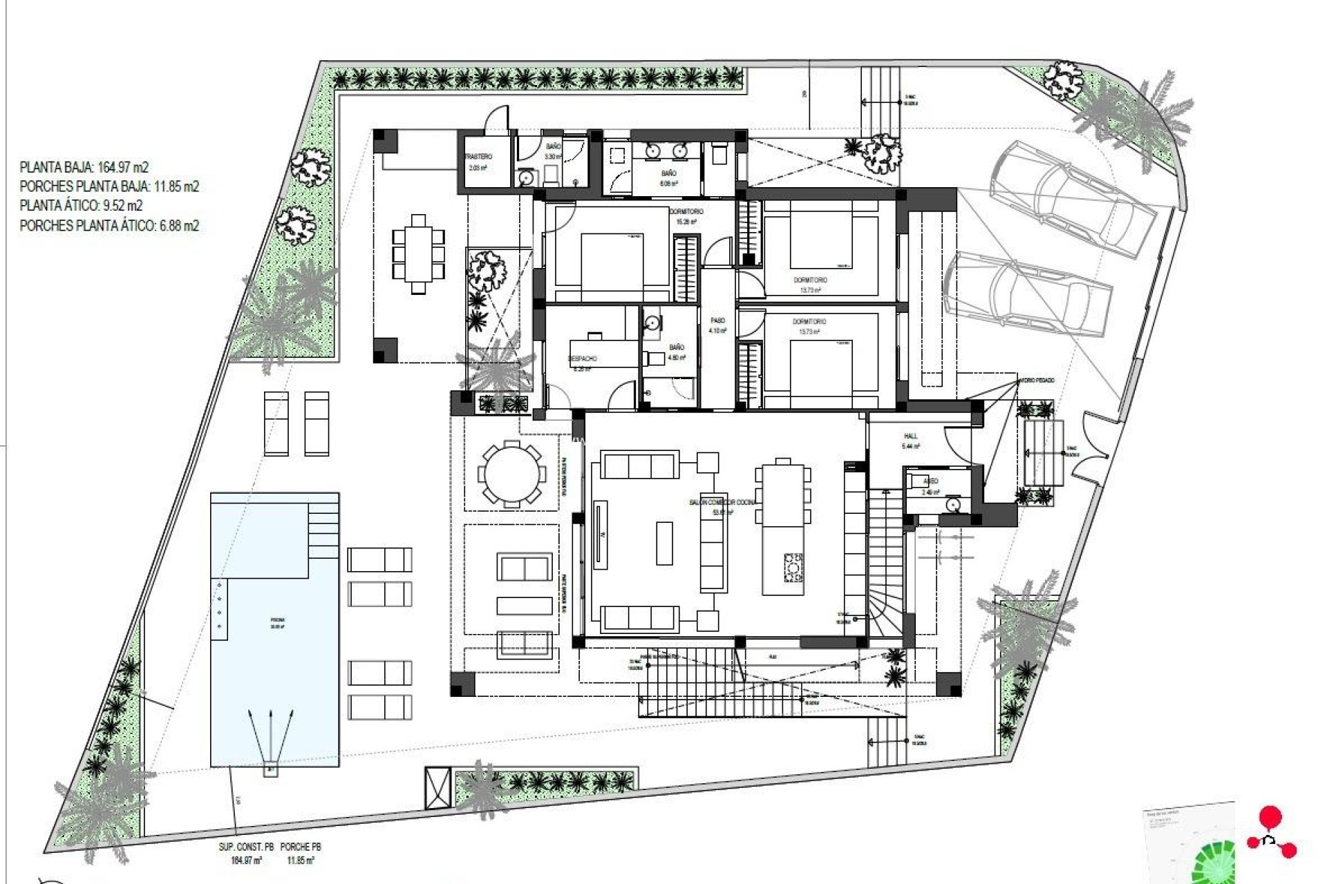
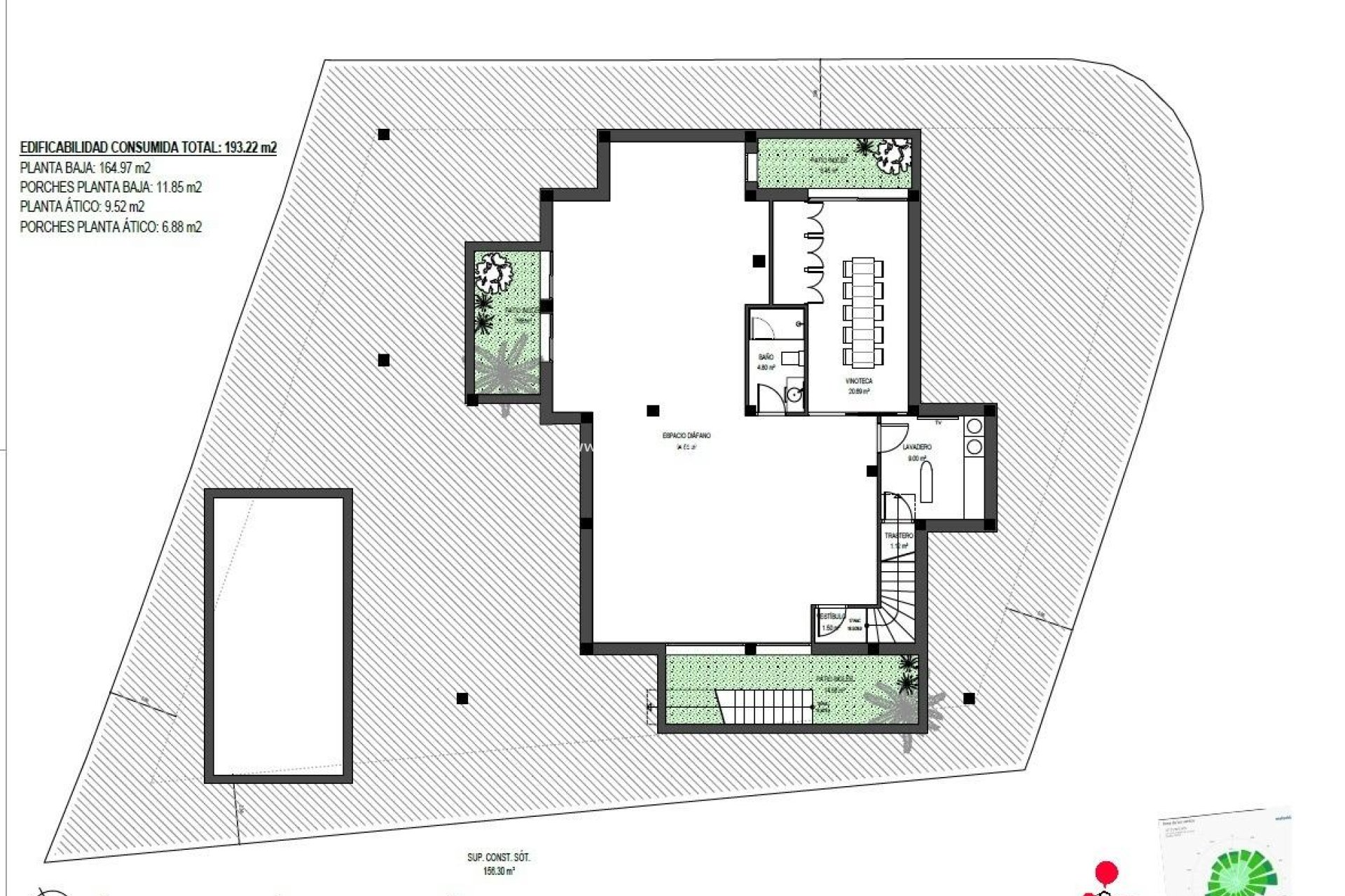
Hver villa er designet i ett plan med en romslig kjeller og solterrasse på taket. Med 4 soverom, 5 bad og 1 gjestetoalett har disse boligene en ideell planløsning for familieliv eller selskapelighet. Den åpne kjøkken- og stue-spisestuen fører ut til store uteområder, inkludert en privat hage med basseng, to engelske uteplasser for kryssventilasjon i kjelleren og en stor solterrasse med spektakulær utsikt over innsjøen.
Noen av de viktigste egenskapene er:
Fullt utstyrt kjøkken med moderne hvitevarer
Ferdig hage med kunstgress, palmer, busker og dryppvanningssystem
Klimaanlegg via kanalsystem
6 solcellepaneler inkludert for energieffektivitet
Bad med skap, speil og dusjvegger
Kjeller med vaskerom, bad og teknisk rom
Privat parkeringsplass for to biler
Eksklusive fasiliteter i Santa Rosalía Lake and Life Resort
Dette eksepsjonelle feriestedet strekker seg over 126 000 m² med anlagte grønne områder med tur- og sykkelstier, paddle- og tennisbaner, minigolf, hundeparker, idrettsanlegg, fritidsområder og et klubbhus. Den sentrale attraksjonen er en krystallklar kunstig innsjø på nesten 17 000 m², komplett med hvite sandstrender, palmer og to øyer – den ene med en bar ved innsjøen. Flere strandbarer ligger også spredt rundt innsjøen og tilbyr en ekte middelhavs-karibisk fusjonsopplevelse.
Førsteklasses beliggenhet med utmerket tilknytning
Santa Rosalía Lake Resort har en strategisk beliggenhet på Costa Cálida, med rask tilgang til regionens beste attraksjoner:
Strendene i Mar Menor: 4 km
Los Alcázares (sentrum og marina): 4 km
Roda Golf og La Serena Golf: 3–5 km
Cartagena sentrum: 15 km
Murcia internasjonale lufthavn (RMU): 22 km
Zenia Boulevard kjøpesenter: 25 km
Din drømmevilla venter i hjertet av Costa Cálida
Lev det ultimate livet i et av Spanias mest innovative feriesteder. Kontakt oss i dag for å få mer informasjon om disse villaene ved sjøen og planlegg ditt besøk.
410