Nybygg » Leilighet » Mijas » Playa Ma

Nybyggede leiligheter med havutsikt i La Cala de Mijas Mijas, Playa Marina

€481.600
Ref. TLRS-51985

Kjennetegn

Nybyggede leiligheter med havutsikt i La Cala de Mijas Mijas, Playa Marina

Nybyggede leiligheter med havutsikt i La Cala de Mijas

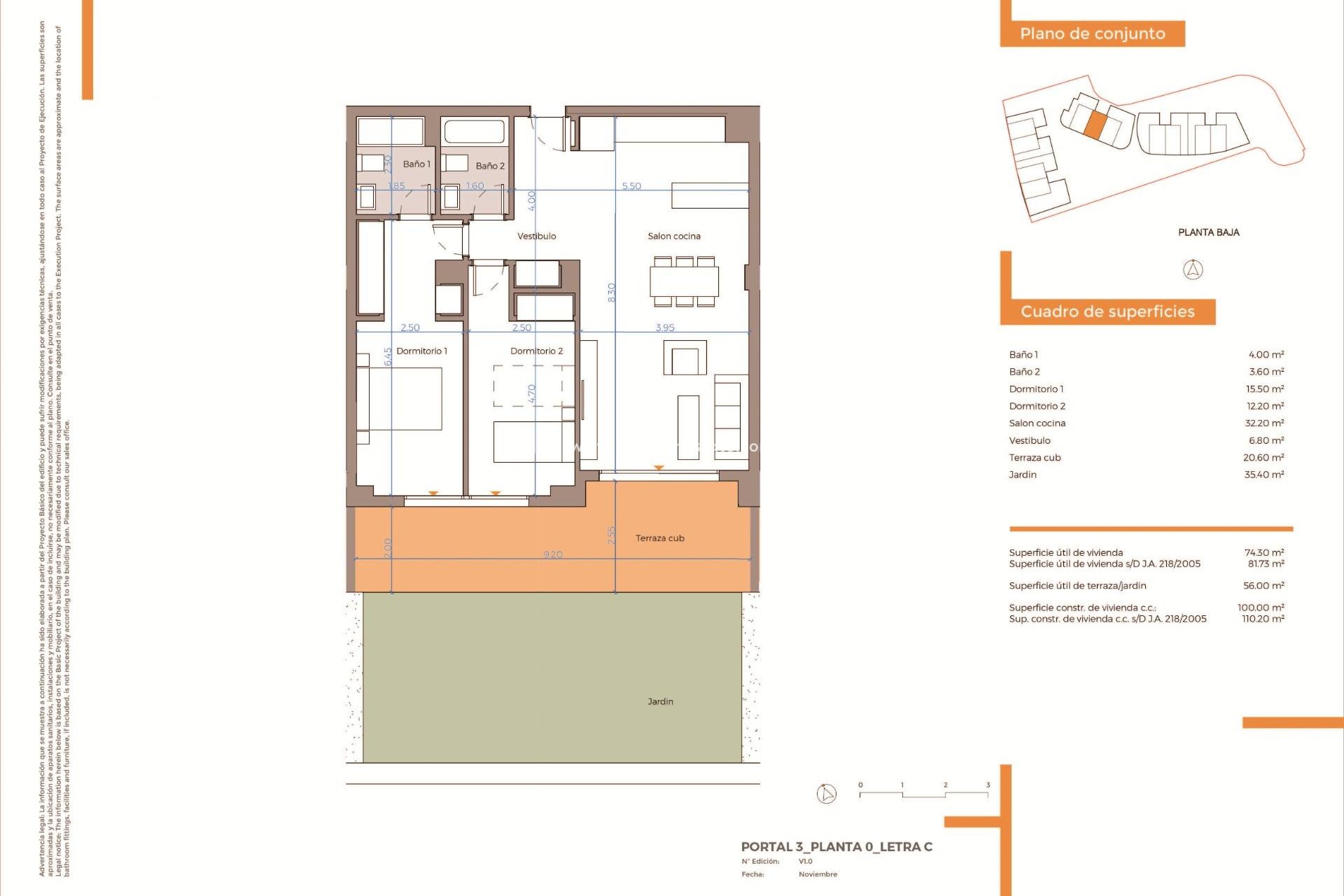
  • Meter 110m2
  • Tomt 55m2
  • Soverom 2
  • Baderom 2
  • Basseng Ja
Soverom:2
Baderom: 2
Bygget: 110m2
Nyttig: 81m2
Plott: 55m2
Basseng: Ja
Avstand til strand: 150 Mts.
Energi~~POS=TRUNC: B
Hage
Felles basseng
Gym
Gated
Antall parkeringsplasser: 1
Nær skoler
Nær kommersielle senter
Heis/heis
Sted: Kyst, Urbanisering
Dobbeltrom: 2
Strand: 150 meter
Terrasse: 20 Msq.
Parkeringsplass
Brukbar byggeplass: 81 Msq.
Oppbevaring / Trastero

Beskrivelse

Kart

Starte ett nytt liv

Foreta en forespørsel

Responsable del tratamiento: Red Palm Estate SL, Finalidad del tratamiento: Gestión y control de los servicios ofrecidos a través de la página Web de Servicios inmobiliarios, Envío de información a traves de newsletter y otros, Legitimación: Por consentimiento, Destinatarios: No se cederan los datos, salvo para elaborar contabilidad, Derechos de las personas interesadas: Acceder, rectificar y suprimir los datos, solicitar la portabilidad de los mismos, oponerse altratamiento y solicitar la limitación de éste, Procedencia de los datos: El Propio interesado, Información Adicional: Puede consultarse la información adicional y detallada sobre protección de datos Aquí.
Red Palm Estate
WhatsApp