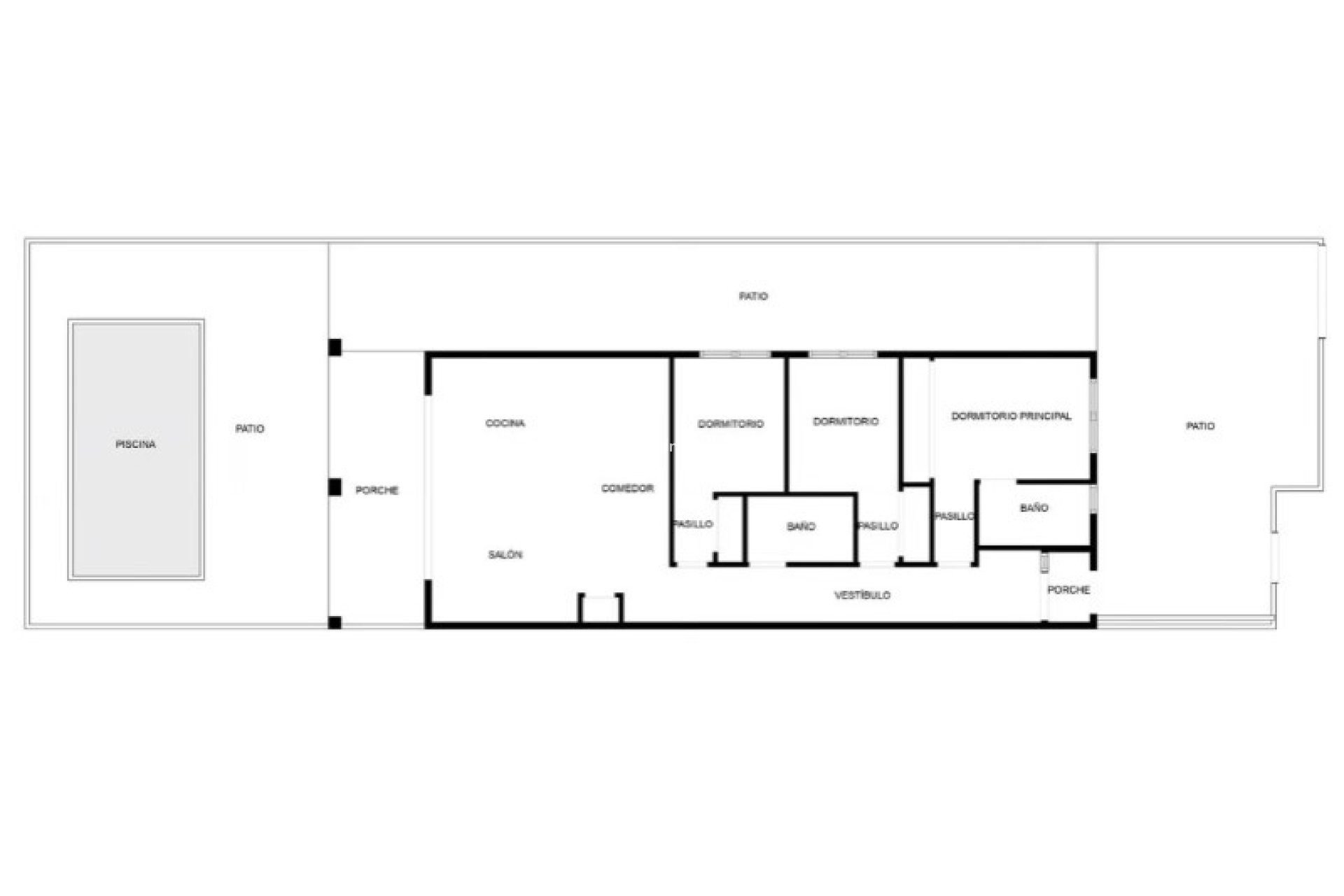
Denne nyoppussede frittliggende villaen i det fredelige boligområdet El Chaparral, Torrevieja, tilbyr en perfekt blanding av eleganse, komfort og effektivitet. Den er laget med førsteklasses materialer, og har tre romslige soverom med innebygde garderober og to elegante bad, inkludert et luksuriøst bad. Begge badene har stilig dusjkabinett og gulvvarme. Hjertet av villaen er en lys stue med åpen planløsning som er sømløst koblet til et fullt utstyrt moderne kjøkken. Denne innbydende plassen åpner ut mot en overbygd terrasse med utsikt over et privat basseng med utendørs dusj, perfekt for å nyte den solfylte sørvestorienteringen. Villaen er designet for helårskomfort, og inkluderer elektriske persienner i stuen, luftkondisjonering med kanal og energisparing. funksjoner som solcellepaneler og en solvarmer. Eiendommen tilbyr også en elektrisk inngangsport, privat parkering, en separat bod og et avansert sikkerhetssystem. El Chaparral er et rolig boligområde i utkanten av Torrevieja, omgitt av natur og nær de ikoniske saltvannssjøene La Mata og Torrevieja . Denne beliggenheten er kjent for sin familievennlige atmosfære, og tilbyr et bredt utvalg av fasiliteter og utmerkede transportforbindelser. De vakre strendene i Torrevieja og Guardamar er bare en kort kjøretur unna. Denne villaen er ideell for både helårsliv og uforglemmelige ferier, og tilbyr privatliv, bekvemmelighet og en avslappet livsstil av høy kvalitet i pittoreske omgivelser.