Nouvelle construction » Appartements » San

Appartements touristiques près de la plage à Lo Pagán-San Pedro del Pinatar : une opportunité d'investissement sur la Costa Cálida San Pedro del Pinatar, Lo pagan

Les caractéristiques

Appartements touristiques près de la plage à Lo Pagán-San Pedro del Pinatar : une opportunité d'investissement sur la Costa Cálida San Pedro del Pinatar, Lo pagan

Appartements touristiques près de la plage à Lo Pagán-San Pedro del Pinatar : une opportunité d'investissement sur la Costa Cálida

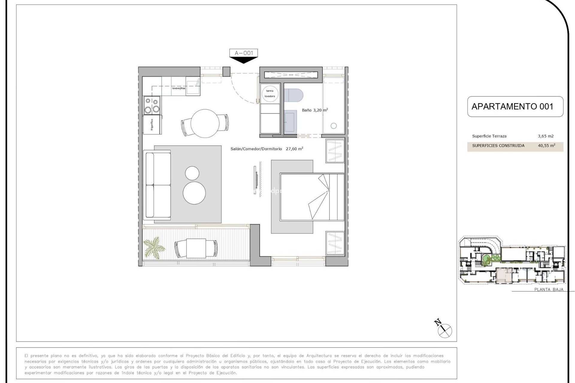
  • Mètres 40m2
  • Salles de bain 1
  • Piscine Oui
Salles de bain: 1
Construit: 40m2
Utile: 36m2
Piscine: Oui
Distance à la plage: 800 Mts.
Énergie: B
À proximité de la ligne de bus
Meublé
Piscine commune
Salle de sport
Fermé
Près des écoles
Près du centre commercial
Ascenseur/Ascenseur
Plage : 800 mètres
Emplacement : Côtier, Urbanisation
Sous-construction / Sous-sol
Espace de construction utilisable : 36 M².
Espace
Terrasse : 3 m².
Licensed Tourist Property

La description

Carte

Commencez une nouvelle vie

Faire une enquête

Responsable del tratamiento: Red Palm Estate SL, Finalidad del tratamiento: Gestión y control de los servicios ofrecidos a través de la página Web de Servicios inmobiliarios, Envío de información a traves de newsletter y otros, Legitimación: Por consentimiento, Destinatarios: No se cederan los datos, salvo para elaborar contabilidad, Derechos de las personas interesadas: Acceder, rectificar y suprimir los datos, solicitar la portabilidad de los mismos, oponerse altratamiento y solicitar la limitación de éste, Procedencia de los datos: El Propio interesado, Información Adicional: Puede consultarse la información adicional y detallada sobre protección de datos Aquí.
Red Palm Estate
WhatsApp