Maisons de ville modernes à proximité des terrains de golf à Santa Rosalia, dans la région de Murcie
Maisons neuves dans un village paisible
Découvrez ce nouveau programme immobilier attrayant composé de maisons de ville contemporaines, situé dans le charmant village de Santa Rosalia, dans la région de Murcie. Entouré de certains des terrains de golf les plus prestigieux de la région et à quelques minutes en voiture des plages du Mar Menor, cet emplacement offre la combinaison parfaite entre tranquillité, commodité et vie en plein air.
Santa Rosalia est un village espagnol traditionnel à l’atmosphère accueillante, où les résidents peuvent profiter de commerces de proximité, d’un supermarché, de bars et de restaurants, dont le très prisé La Almazara. Sa position stratégique entre Roda Golf, Mar Menor Golf et Los Alcazares en fait un lieu très recherché tant pour une résidence principale que pour une résidence secondaire.
Maisons de ville élégantes avec solarium et espaces de vie extérieurs
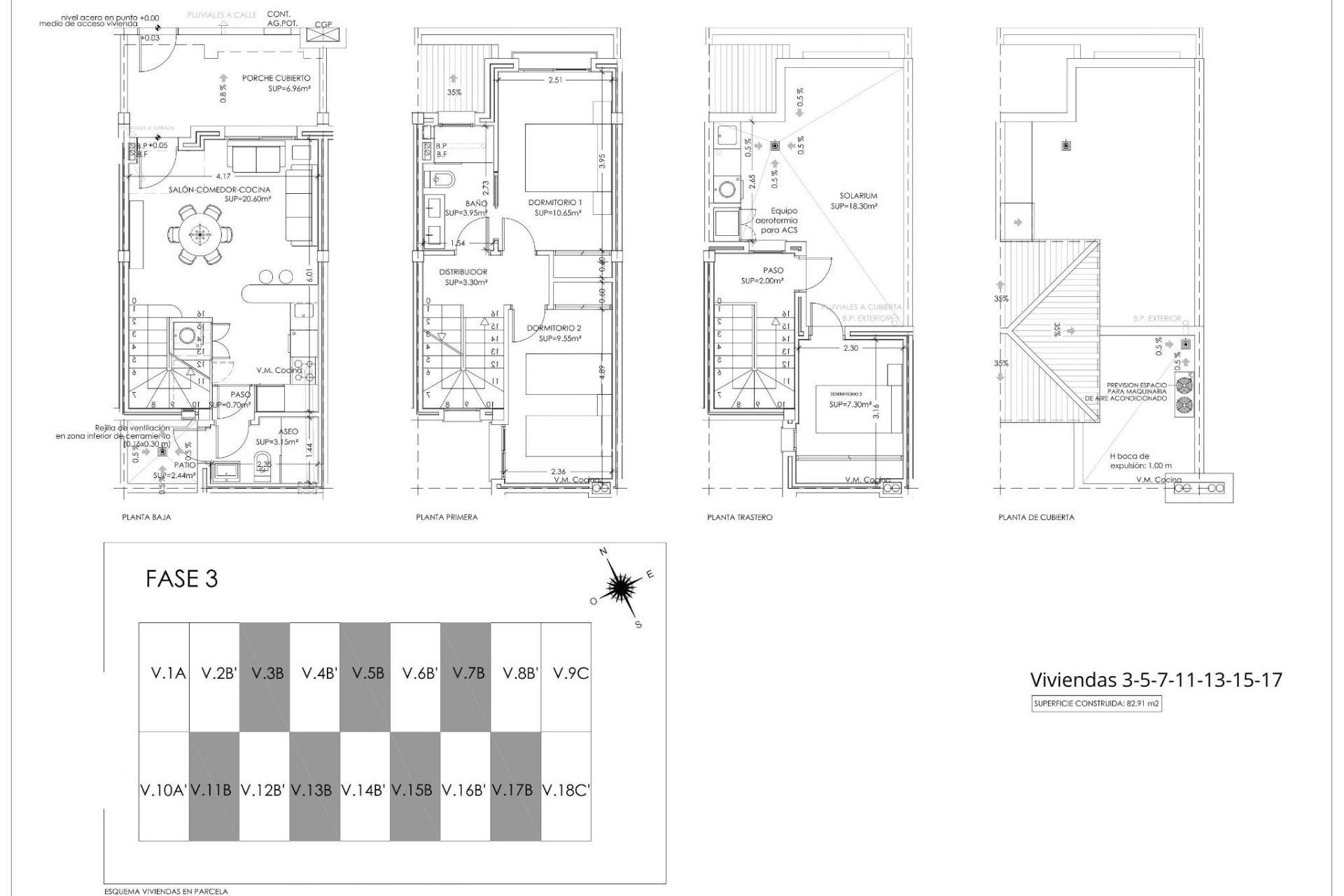
Le programme immobilier se compose de 18 maisons de ville modernes de 2 ou 3 chambres et 2 salles de bains, conçues selon un agencement contemporain en open space. Chaque logement dispose d’un salon et d’une salle à manger lumineux reliés à une cuisine entièrement équipée avec appareils électroménagers, créant ainsi un espace de vie fonctionnel et confortable.
Toutes les propriétés comprennent un solarium privé sur le toit avec une cuisine d’été, idéal pour profiter du climat méditerranéen, recevoir des invités ou se détendre en plein air tout au long de l’année. De plus, chaque logement bénéficie d'une place de parking privée et d'un débarras situé dans un garage commun.
Finitions de qualité et équipements modernes
Ces logements sont construits avec des matériaux de haute qualité et conçus pour offrir confort et efficacité énergétique. Ils comprennent notamment un système aérothermique pour l'eau chaude, une pré-installation pour la climatisation par conduits, ainsi que des salles de bains entièrement équipées avec mobilier, miroirs et parois de douche.
Le complexe comprend également une piscine commune, offrant un espace idéal pour se détendre et profiter des journées ensoleillées dans un environnement paisible.
Emplacement de choix à proximité du golf et de la mer
Santa Rosalia est idéalement située à seulement 4,5 km des plages de Los Alcazares, réputées pour leurs eaux calmes et leur longue promenade le long du Mar Menor. Les environs sont un paradis pour les amateurs de golf, avec plusieurs parcours de haut niveau à quelques minutes seulement.
La ville voisine de Los Alcazares offre un large éventail de services, de restaurants, de commerces et d’activités de loisirs, rendant la vie quotidienne facile et agréable.
Distances vers les principaux points d’intérêt
Plages de Los Alcazares 4,5 km
Roda Golf 3 km
Mar Menor Golf 4 km
Carthagène 25 km
Aéroport international de Murcie 30 km
Votre maison idéale sur la Costa Cálida
Ce programme immobilier offre une excellente opportunité d'acquérir une maison de ville moderne dans un emplacement paisible et bien desservi, à proximité des terrains de golf et de la mer. Contactez-nous dès aujourd'hui pour recevoir plus d'informations ou organiser une visite et réserver votre nouvelle maison à Santa Rosalia.
410