Appartements et villas neufs en bordure du parcours de golf La Serena Golf à Los Alcázares
Complexe résidentiel exclusif en bordure du parcours de golf La Serena Golf
Découvrez ce complexe résidentiel neuf exceptionnel situé en bordure du parcours de golf La Serena Golf à Los Alcázares, l'une des villes côtières les plus prisées de la Costa Cálida. Cette communauté exclusive offre un cadre de vie haut de gamme, au cœur de la nature, avec des vues dégagées et un accès direct à un parcours de golf 18 trous réputé pour son terrain plat, ses lacs pittoresques et ses défis techniques.
Idéalement situé à seulement 1,7 km des plages du Mar Menor et du centre-ville, les résidents peuvent profiter à la fois de la tranquillité et d'un accès facile aux restaurants, aux commerces et à tous les services essentiels. Los Alcázares est réputée pour son atmosphère détendue, ses longues promenades et ses eaux chaudes et peu profondes, ce qui en fait un lieu idéal pour y vivre toute l'année ou y passer des vacances.
Appartements modernes avec terrasses et solariums privés
Le complexe comprend 36 appartements contemporains répartis sur quatre immeubles. Les acheteurs peuvent choisir entre des agencements de deux ou trois chambres avec deux salles de bains, dont une attenante.
Les appartements du rez-de-chaussée disposent de terrasses spacieuses avec la possibilité d’ajouter une piscine privée. Les logements des étages intermédiaires offrent de généreuses terrasses extérieures, tandis que les penthouses comprennent des solariums privés, parfaits pour les bains de soleil et les repas en plein air.
Tous les appartements comprennent un parking souterrain et un débarras accessible par ascenseur. La résidence propose également de magnifiques jardins méditerranéens paysagers et une grande piscine commune à la disposition des résidents.
Villas de plain-pied élégantes avec piscine privée
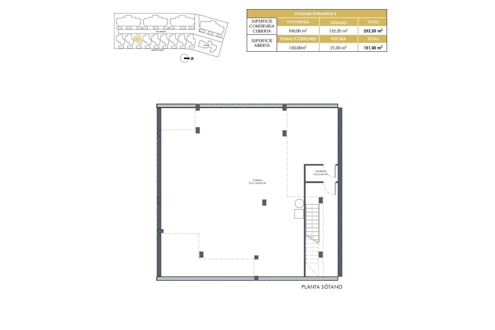
En plus des appartements, le programme propose neuf villas exclusives de plain-pied. Ces maisons disposent de trois chambres, de deux salles de bains et de toilettes supplémentaires pour les invités, le tout conçu pour offrir une transition harmonieuse entre l'intérieur et l'extérieur.
Chaque villa comprend une piscine privée, un jardin, un débarras et un parking privé. Un sous-sol spacieux et ouvert offre un espace supplémentaire modulable pouvant être adapté aux besoins individuels, par exemple pour créer une salle de sport, un espace de divertissement ou un espace de rangement supplémentaire.
Finitions de haute qualité et conception écoénergétique
Toutes les propriétés sont construites avec des matériaux de haute qualité et des spécifications modernes. Les caractéristiques comprennent des menuiseries extérieures en aluminium avec rupture thermique, des salles de bains entièrement équipées avec meubles-lavabos et parois de douche en verre, ainsi que la pré-installation pour la climatisation centralisée et des cuisines équipées dans les appartements.
Les villas sont équipées de systèmes de climatisation entièrement installés et de cuisines entièrement équipées avec appareils électroménagers. Des ascenseurs sont disponibles dans les immeubles d'appartements, garantissant confort et accessibilité.
Emplacement de choix à proximité du golf, des plages et des commodités
Ce programme immobilier offre une excellente desserte vers les principaux points d'intérêt. L'aéroport international de Murcie se trouve à 35 km et celui d'Alicante à 95 km. La marina de Los Alcázares est à seulement 2 km, le centre commercial Dos Mares à 15 km et le Roda Golf à seulement 4 km du programme. Le centre-ville de Carthagène est situé à 25 km.
Un investissement idéal et une opportunité de profiter du style de vie méditerranéen
Ce complexe en bordure de golf offre une opportunité unique de profiter d'un mode de vie moderne dans un cadre privilégié, à proximité de la mer et du golf.
Contactez-nous dès aujourd'hui pour recevoir plus d'informations ou pour organiser une visite et trou
410