Villas modernes neuves près d'Estepona, à proximité de la plage et du golf Valle Romano
Un style de vie méditerranéen contemporain sur la Costa del Sol
Découvrez cet élégant projet de villas neuves situé près d'Estepona, sur la Costa del Sol. Conçues dans un style architectural minimaliste, avec des lignes épurées et des espaces ouverts et lumineux, ces maisons allient simplicité, efficacité et style méditerranéen intemporel. Orientées vers l'ouest, les villas bénéficient d'une belle lumière l'après-midi et sont idéalement situées à proximité des terrains de golf, des commodités et de la plage.
Estepona est l'une des villes les plus attrayantes de la Costa del Sol, connue pour sa charmante vieille ville, son port de plaisance, ses plages de sable et ses plus de 320 jours d'ensoleillement par an. La région offre une qualité de vie exceptionnelle, alliant gastronomie internationale, traditions locales et atmosphère côtière détendue.
Les acheteurs peuvent choisir entre deux tailles de villas en fonction de leurs besoins :
160 m2 de surface construite sur un terrain de 434 m2
210 m² de surface construite sur un terrain de 629 m²
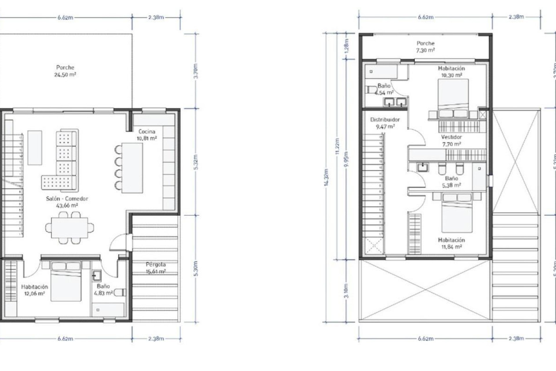
Chaque villa est répartie sur un demi sous-sol et deux niveaux principaux, offrant un agencement équilibré et pratique.
Le sous-sol comprend un sauna, une buanderie et un espace de rangement, créant ainsi un espace privé dédié au bien-être et aux tâches ménagères.
Au rez-de-chaussée, le salon et la cuisine ouverts communiquent directement avec la terrasse avant et la piscine écologique privée. Ce niveau comprend également une chambre et une salle de bain complète.
Le premier étage offre deux chambres supplémentaires et deux salles de bains, dont une en suite, ainsi que deux terrasses non couvertes à l'avant et à l'arrière de la propriété.
De grandes terrasses et un double système de balcons prolongent les espaces de vie à l'extérieur, renforçant le lien entre les espaces intérieurs et l'environnement méditerranéen.
Conception économe en énergie et spécifications de haute qualité
Ces villas sont conçues pour la vie moderne, en privilégiant le confort, la durabilité et la faible consommation d'énergie. Les principales caractéristiques sont les suivantes :
Cuisines et salles de bains entièrement équipées
Pré-installation pour la climatisation canalisée avec système aérothermique ou pompe à chaleur
Système d'énergie renouvelable pour l'eau chaude
Éclairage encastré LED dans toute la maison
Pré-câblage pour la domotique
Panneaux photovoltaïques pour l'autoconsommation 4 kW
Classe énergétique A
La durée de construction est d'environ 14 mois à compter de l'achat.
Emplacement et distances exceptionnels
Plage à 1,8 km
Golf Valle Romano à 1 km
Marbella à 15 km
Puerto Banus à 20 km
Aéroport de Malaga à 75 km
Assurez-vous votre villa contemporaine à Estepona
Ce projet offre une occasion rare d'acquérir une villa moderne et économe en énergie dans un emplacement privilégié, à proximité d'un golf et de la mer. Contactez-nous dès aujourd'hui pour obtenir plus d'informations et réserver votre nouvelle maison sur la Costa del Sol.
410