Appartements neufs de luxe à Fuengirola, Costa del Sol
Un style de vie contemporain dans un emplacement privilégié à Fuengirola
Ce nouveau complexe résidentiel exclusif est situé au cœur de la Costa del Sol, à Fuengirola, l'une des villes côtières les plus dynamiques et les mieux desservies du sud de l'Espagne. Conçu pour allier architecture contemporaine, confort et style de vie méditerranéen, cet immeuble emblématique offre une expérience de vie unique avec une vue sur la mer depuis la plupart des logements et d'excellentes installations communes. Fuengirola est connue pour sa longue promenade, sa vie sociale animée, son atmosphère internationale et ses services disponibles toute l'année, ce qui en fait un lieu idéal pour y vivre à l'année ou pour investir.
Appartements modernes avec terrasses spacieuses
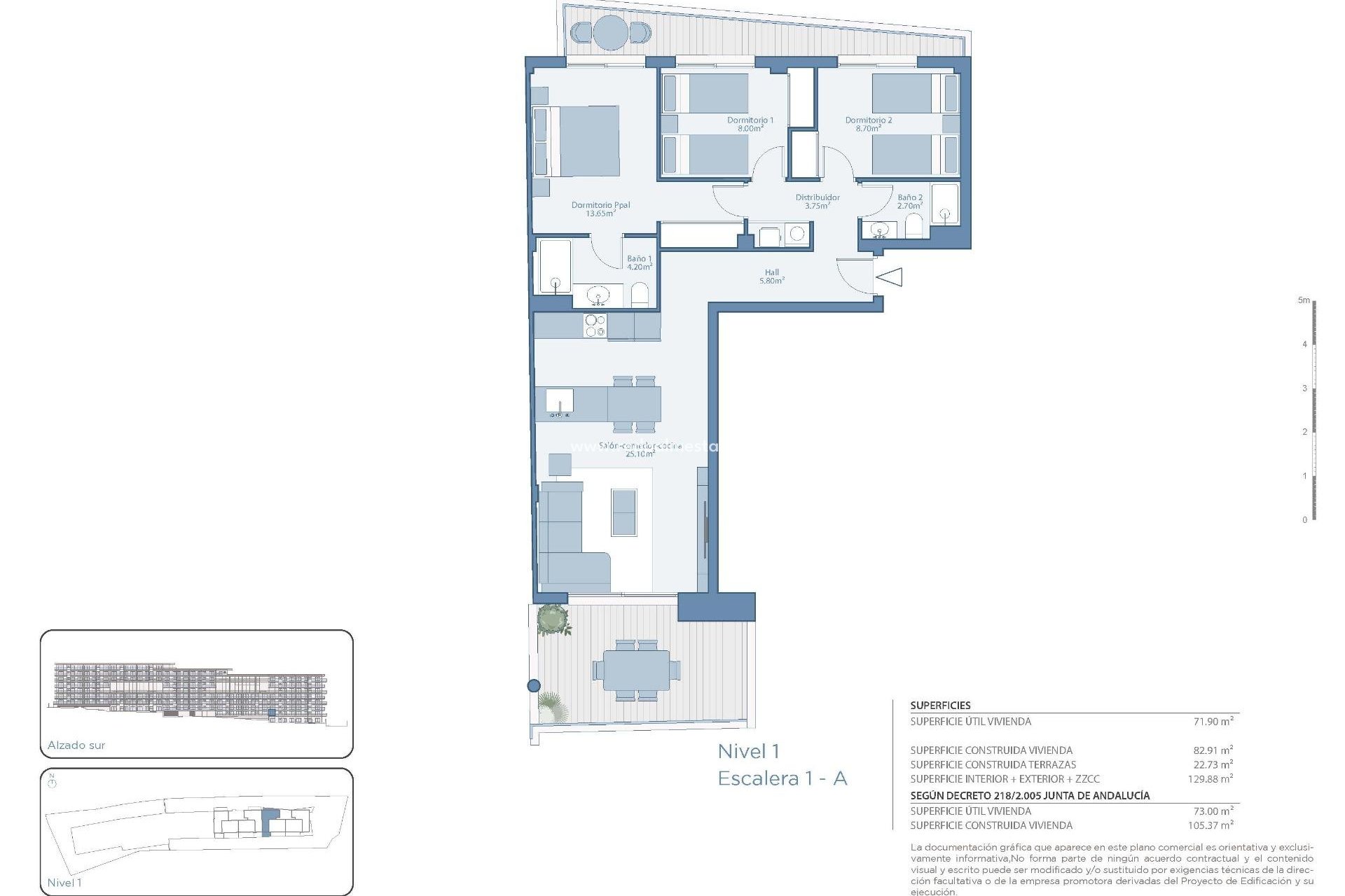
Le projet consiste en un élégant bâtiment de 7 étages comprenant 126 appartements de 1, 2 et 3 chambres. Tous les logements sont conçus avec un salon, une salle à manger et une cuisine ouverts qui maximisent l'espace et la lumière naturelle. De grandes terrasses orientées au sud prolongent les espaces de vie à l'extérieur, créant un cadre idéal pour profiter de la vue panoramique et du climat doux de la côte. Chaque appartement comprend la climatisation, une cuisine moderne entièrement équipée, deux places de parking privées et un débarras.
Des espaces communs exceptionnels conçus pour le bien-être
Ce complexe résidentiel va au-delà du logement traditionnel en offrant des espaces communs qui fonctionnent comme un club privé. Au rez-de-chaussée, les résidents profitent de jardins méditerranéens paysagers, d'espaces de détente, d'une grande piscine extérieure et d'un service de conciergerie. Le cinquième étage est dédié au bien-être et à la productivité, avec un espace de coworking, une salle de sport, un spa, un sauna et un cinéma privé. Au septième étage, une impressionnante piscine à débordement et un salon de détente offrent une vue inoubliable sur le coucher de soleil sur la mer Méditerranée.
Emplacement stratégique avec d'excellentes connexions
Le complexe est situé à seulement 1,3 km de la plage et à 2 km du centre de Fuengirola, offrant un accès facile aux commerces, restaurants, écoles et installations de loisirs tout en conservant la tranquillité résidentielle. L'accès direct à l'autoroute assure des connexions rapides vers les principales destinations le long de la côte.
Distances par rapport aux principaux points d'intérêt
Plage de Fuengirola : 1,3 km
Centre-ville de Fuengirola : 2 km
Aéroport international de Malaga : 25 km
Centre-ville de Malaga et gare TGV : 30 km
Marbella et Puerto Banus : 35 km
Terrains de golf les plus proches : 10 km
Une maison idéale et un investissement intelligent sur la Costa del Sol
Avec plus de 300 jours de soleil par an, une gastronomie exceptionnelle, des terrains de golf, des plages et une vie culturelle riche, la Costa del Sol offre une qualité de vie exceptionnelle. Ces appartements neufs à Fuengirola représentent une opportunité parfaite pour une résidence permanente, une maison de vacances ou un investissement de grande valeur.
Contactez-nous dès aujourd'hui pour recevoir plus d'informations ou pour organiser une visite privée et acquérir votre nouvelle maison de luxe sur la Costa del Sol.
410