Opportunité fantastique
Grande résidence avec annexe-maison d'hôtes
Trois chalets situés sur le terrain
LICENCE TOURISTIQUE EN VIGUEUR
Une magnifique ferme espagnole du XVIIIe siècle, entièrement rénovée, avec une annexe faisant office de maison d'hôtes et trois gîtes, offrant un potentiel de revenus locatifs saisonniers/à long terme et disposant d'une licence touristique.
Cette propriété comprend au total 10 chambres, 8 salles de bains et une annexe indépendante avec la ferme.
Le domaine est divisé en quatre unités indépendantes distinctes, permettant à l'acheteur d'utiliser la propriété de différentes manières, notamment comme résidence de luxe, en tant qu'entreprise de location de vacances ou une combinaison des deux.
La propriété comprend un vaste terrain de 7850 mètres carrés planté d'oliviers et aménagé en terrasses, avec un portail électrique à l'avant et un portail manuel à l'arrière.
Un permis de construire a également été accordé (détails disponibles) pour un bâtiment supplémentaire sur les terrasses, offrant ainsi un potentiel d'agrandissement. Des chalets en bois ou des yourtes sont également envisageables.
Ferme :
La ferme principale offre environ 230 mètres carrés d'espace intérieur rénové dans un style rustique traditionnel, conservant de nombreux éléments d'origine, notamment des poutres en bois et une cheminée traditionnelle.
Rez-de-chaussée:
Salon (7,16 x 3,67 m) avec cheminée équipée d'un poêle à bois et alcôves de chaque côté
Cuisine (5,4 x 3,71 m) équipée d'éléments bas et hauts, plomberie pour lave-linge et lave-vaisselle, four et plaque de cuisson à gaz.
Bureau-Chambre 5 (3,65 x 3,63 m) actuellement utilisé comme bureau mais pourrait être une chambre double à deux lits jumeaux.
Salle de bains familiale-débarras avec WC et lavabo sur pied.
Premier étage :
Chambre principale (4,14 x 3,74 m)
Chambre double à deux lits avec salle de bains privative comprenant une cabine de douche, un lavabo et des toilettes.
Chambre 2 (3,8 x 3,8 m)
Chambre double avec deux lits simples, douche, lavabo sur pied et WC séparés.
Chambre 3 (3,69 x 3,64 m)
Chambre à deux lits jumeaux
Chambre 4 (2,89 x 3,71 m)
Chambre double à deux lits simples. Salle de douche familiale comprenant une douche à l'italienne, des toilettes et un lavabo sur pied.
Annexe de la ferme - Gîte :
Gîte indépendant d'une chambre, situé dans la cour privée de la ferme.
Cuisine-salon (6,25 x 3,62 m) au rez-de-chaussée avec escalier menant à :
Mezzanine ouverte (4,83 x 3,65 m)
Chambre double avec douche et WC. (Cette partie du logement nécessite des travaux supplémentaires.)
Dehors:
La cour privée de la ferme et de l'annexe (90 mètres carrés) carrelée a la porte arrière de la ferme et l'entrée du porche de l'annexe attenante, avec un bar-cuisine extérieur qui mène à une zone de gazon Astra, avec une pièce de stockage de bûches où se trouve le chauffe-eau à gaz.
3 chalets indépendants
Cottage 1 (RC) : Ce cottage est un cottage d'une chambre (WIFI activé) entièrement meublé et prêt à louer avec sa propre cour-jardin privée.
Coin cuisine-petit-déjeuner (5,39 x 1,73 m) avec four et plaque de cuisson électriques, lave-linge, micro-ondes, réfrigérateur, congélateur, machine à café Nespresso, meubles de rangement et meubles muraux.
Salon (2,64 x 2,71 m) un coin salon confortable avec télévision et prises internet.
Chambre (5 X 3,5 m) double avec douche à l'italienne, lavabo et WC indépendants.
Le gîte comprend une cour-jardin privée et indépendante avec barbecue, coin salon et véranda ombragée.
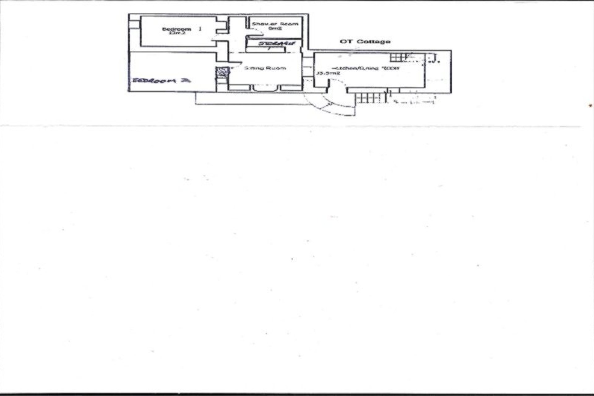
Chalet 2 (OTC) :
Maisonnette de plain-pied de deux chambres (avec Wi-Fi) entièrement meublée et prête à être louée, avec sa propre cour-jardin privée équipée d'un barbecue et d'un coin salon ombragé.
Cuisine-salle à manger-salon (9,65 x 3,78 m) espace ouvert.
La cuisine comprend divers éléments de rangement, un four, une plaque de cuisson au gaz, un lave-linge, un réfrigérateur-congélateur, un micro-ondes et une machine à café Nespresso.
Le coin salon est équipé d'une cheminée, d'une télévision et de prises internet.
Chambre 1 (3,65 x 3,10 m)
Chambre double avec armoires.
Chambre deux (3,65 x 3,65)
Chambre double avec deux lits simples et armoires.
Salle de douche (3 x 3 m) comprenant une douche à l'italienne, un lavabo et des toilettes.
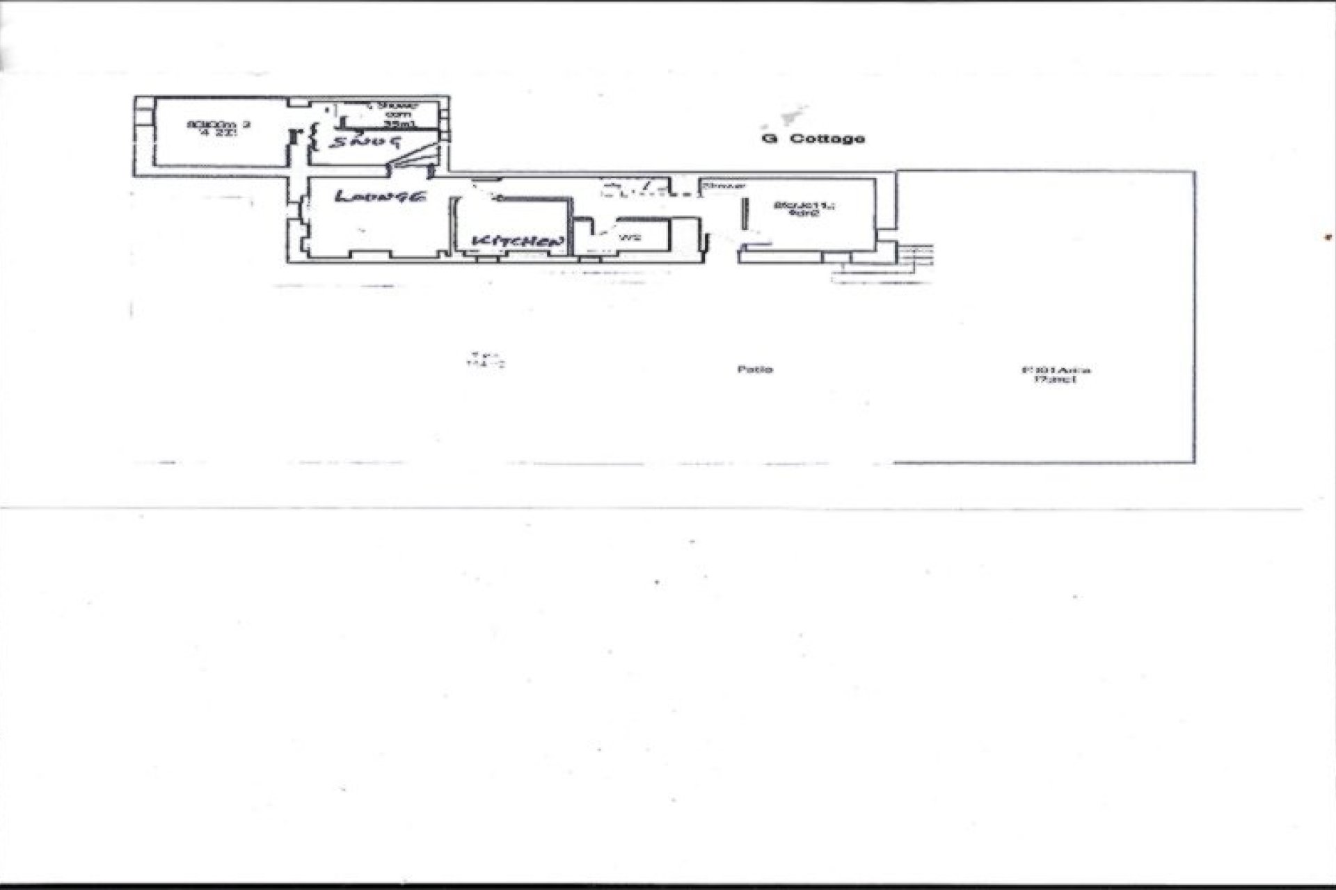
Chalet 3 (GVC) :
Cottage de deux chambres au premier étage (avec Wi-Fi), entièrement meublé et prêt à être loué, avec sa propre cour-jardin privée équipée d'un barbecue et d'un coin salon ombragé.
Cuisine-salle à manger/salon (7,69 x 3,84 m) espace ouvert.
La cuisine comprend divers éléments de rangement, une hotte aspirante, un four, une plaque de cuisson au gaz, un lave-linge, un réfrigérateur-congélateur, un micro-ondes et une machine à café Nespresso.
Espace détente séparé par un bar avec télévision et prises internet.
Chambre 1 (3,89 x 3,75 m)
Chambre double avec salle de douche attenante, lavabo et armoires.
Chambre deux (3,78 x 3,24 m)
Chambre double avec deux lits simples et armoires.
Salle de douche (3 x 3 m) comprenant une douche à l'italienne, un lavabo et des toilettes.
OTC et GVC sont actuellement deux cottages avec leur propre accès privé, séparés par une porte verrouillée donnant sur un escalier qui pourrait facilement être transformé en un cottage de quatre chambres.
Dehors:
Piscine et terrasse ensoleillée
L'espace piscine commun comprend une piscine hors sol ronde de 4 mètres de diamètre remplie d'eau salée.
Une piscine creusée pourrait être installée si souhaité (autorisation d'urbanisme obtenue, mais nécessitant un renouvellement).
Le permis de construire pour le bâtiment supplémentaire est inclus dans la vente.