NOUVELLE CONSTRUCTION DE VILLAS MODERNES À BENIJOFAR
Villas de nouvelle construction situées à Benijófar, une zone privilégiée de la Costa Blanca, équipées de tous les services, à 20 minutes de l'aéroport d'Alicante, à proximité des belles plages de Guardamar et de plusieurs terrains de golf.
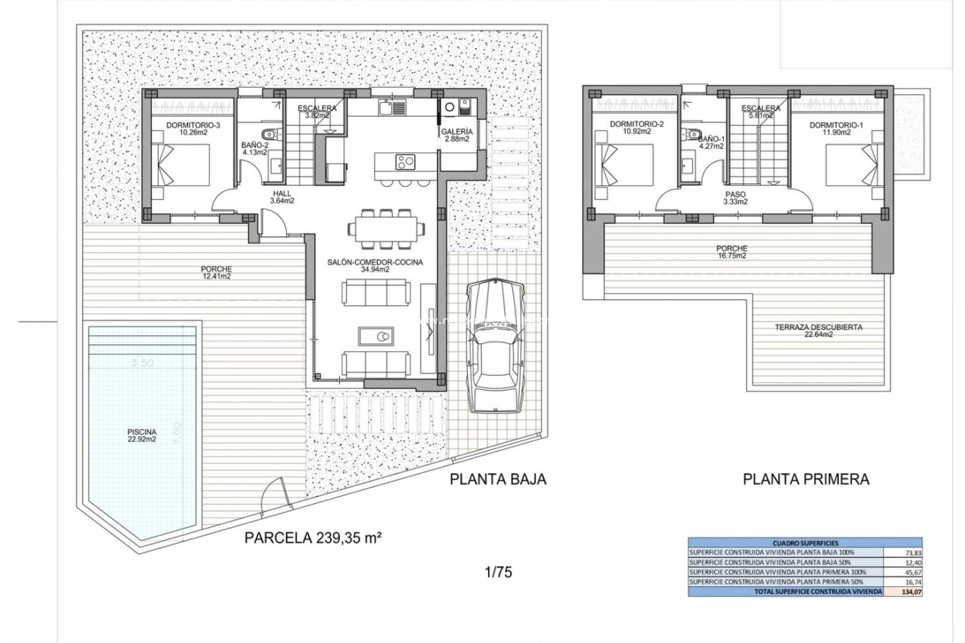
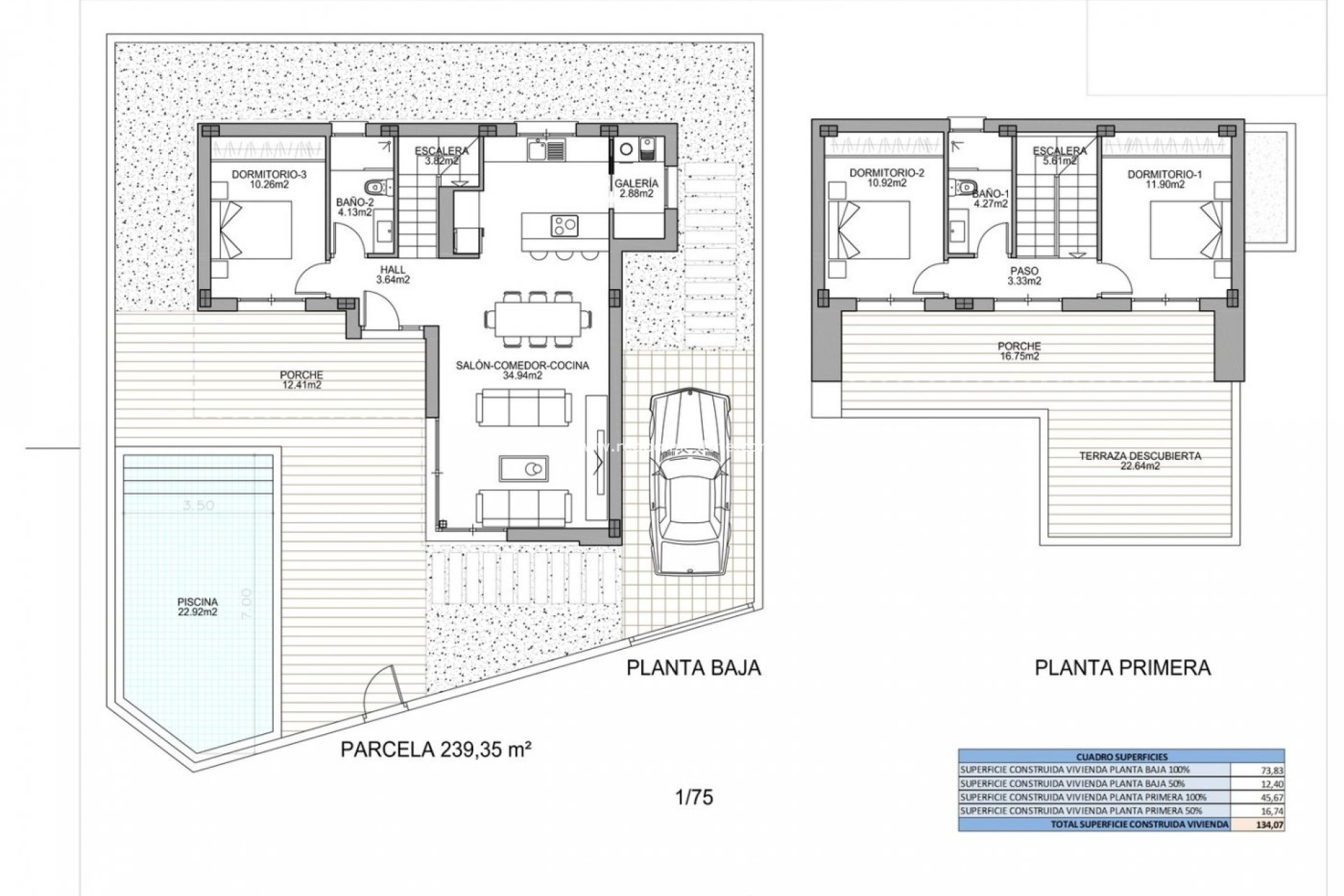
Il s'agit d'une villa de style moderne composée d'un spacieux salon-salle à manger avec une cuisine américaine, 3 chambres (dont une en suite) et 2 salles de bains.
Il dispose également d'un terrain privé avec terrasse, parking, piscine privée, jardin de style méditerranéen avec de superbes vues. La maison dispose également de la climatisation chaude et froide, d'un interphone vidéo et d'une porte de sécurité.
Benijofar c'est un charmant village avec une charmante église et tous les services tels que supermarchés, pharmacies, banques, restaurants et parc naturel situé tout près des villas.
Il y a plusieurs terrains de golf à proximité ainsi que des parcs aquatiques dans les environs de Rojales et Torrevieja.
Benijófar situé à quelques minutes de la N-332 et de l'AP-7.
À seulement 30 minutes de l'aéroport d'Alicante, à 10 minutes des plages de Guardamar et Torrevieja.
410