VILLAS DE NOUVELLE CONSTRUCTION À FORTUNA
Nouvelle construction de villas à Fortuna, Murcia.
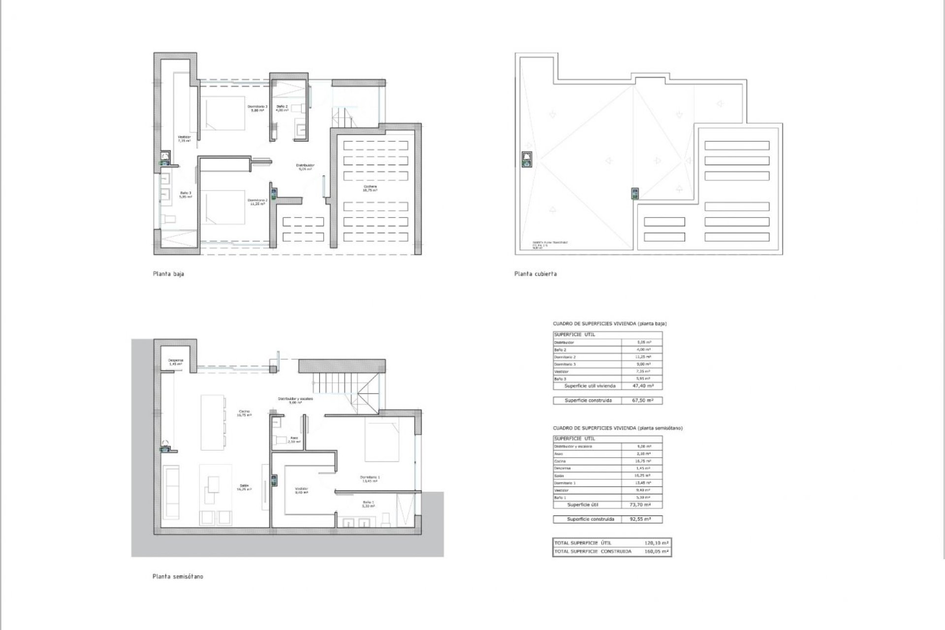
Villa indépendante construite sur 2 étages et dispose de 3 chambres, 2 salles de bains, 2 dressings, cuisine ouverte sur le salon, garage, jardin privé avec piscine.
La ville de Fortuna est à moins de 3 km pour les achats quotidiens et la ville de Murcia est à 25 km où il y a un large éventail d'installations gastronomiques et de loisirs.
Le climat de la Costa Cálida, souvent considéré comme le meilleur d'Europe, permet un style de vie très sociable et sain, en plein air, marqué par de fantastiques installations sportives et de loisirs, avec des villes touristiques passionnantes et cosmopolites, qui se distinguent par la fourniture de services de première classe, dont certains sont exclusifs, considérés comme un véritable luxe.
La Costa Cálida de Murcie compte plus de 300 jours d'ensoleillement par an.
Outre les terrains de golf et les marinas dont vous pouvez profiter tout au long de la côte, la région offre également la possibilité de skier dans la Sierra Nevada toute proche, un paradis pour les amateurs de sports d'hiver, avec de magnifiques paysages naturels.
La possibilité de profiter de toutes sortes d'offres culturelles et de loisirs dans les capitales voisines telles que Murcie et Carthagène.
Un paradis doté d'excellentes liaisons avec l'ensemble de l'Europe. Les aéroports d'Alicante-Elche et de Murcias Corvera sont situés à une heure de route.
410