Nouvelle construction » Appartements » Fuen

NOUVEAU COMPLEXE RÉSIDENTIEL À FUENGIROLA Fuengirola, Fuengirola

Les caractéristiques

NOUVEAU COMPLEXE RÉSIDENTIEL À FUENGIROLA Fuengirola, Fuengirola

NOUVEAU COMPLEXE RÉSIDENTIEL À FUENGIROLA

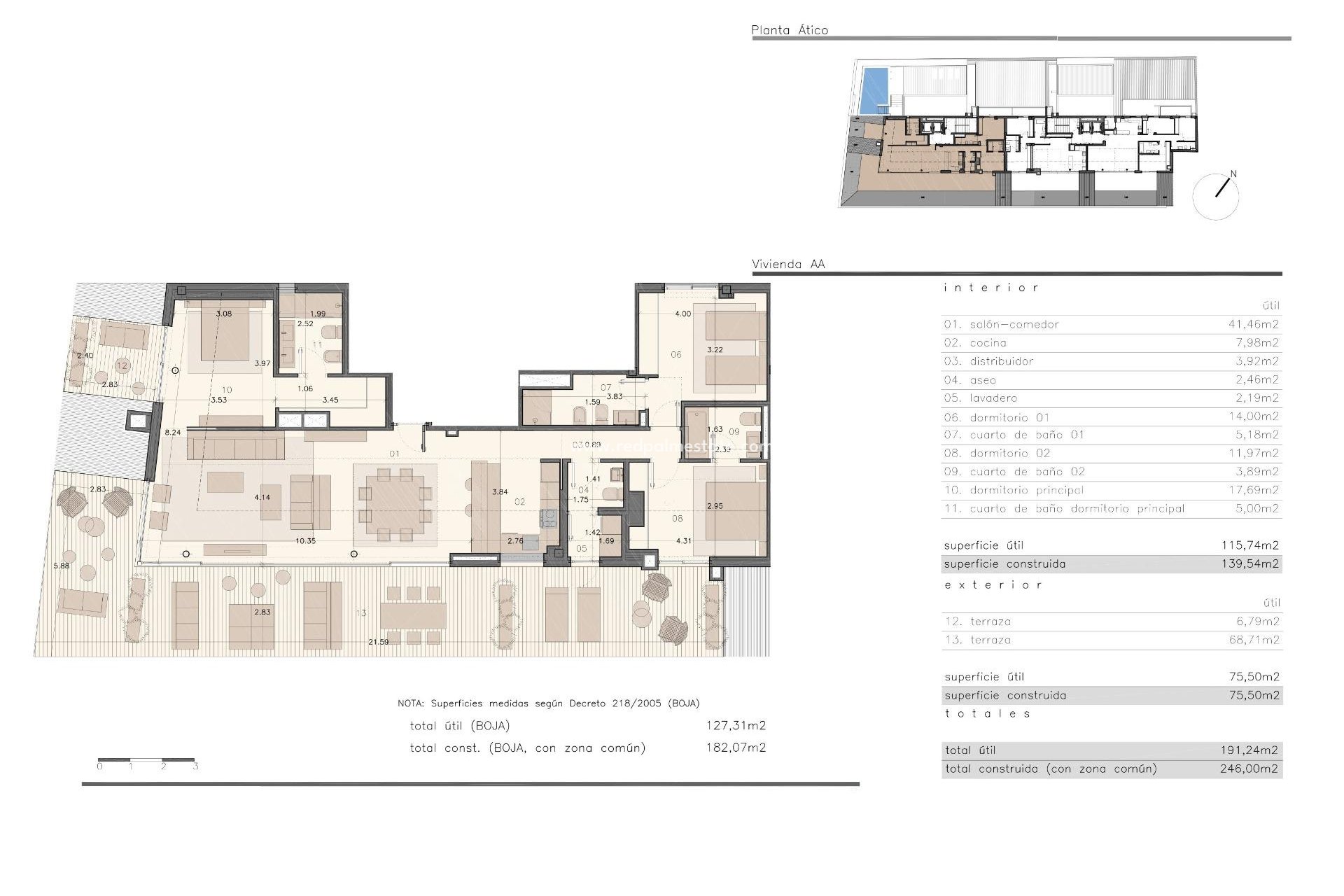
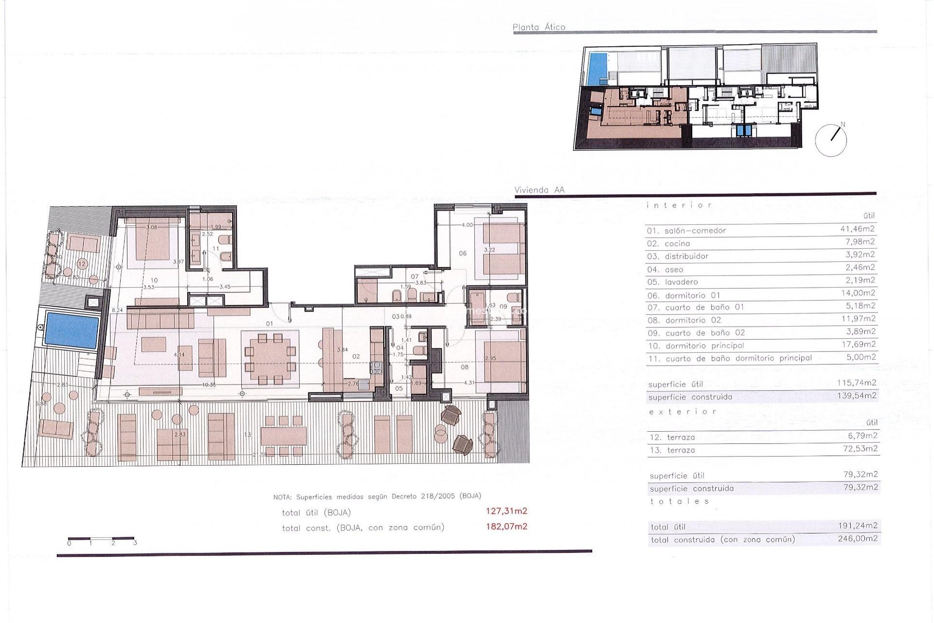
  • Mètres 139m2
  • Chambres 3
  • Salles de bain 2
  • Piscine Oui
Chambres:3
Salles de bain: 2
Construit: 139m2
Utile: 115m2
Piscine: Oui
Distance à la plage: 350 Mts.
Énergie: B
Stockage / Trastero
Piscine commune
Clé prête
Nombre de places de stationnement : 1
Chambres doubles : 3
Ascenseur/Ascenseur
Climatisation : Pré-installée
Localisation : côtière
Plage : 350 mètres
Espace de construction utilisable : 115 m².
Place de parking
Terrasse : 75 m².

La description

Carte

Commencez une nouvelle vie

Faire une enquête

Responsable del tratamiento: Red Palm Estate SL, Finalidad del tratamiento: Gestión y control de los servicios ofrecidos a través de la página Web de Servicios inmobiliarios, Envío de información a traves de newsletter y otros, Legitimación: Por consentimiento, Destinatarios: No se cederan los datos, salvo para elaborar contabilidad, Derechos de las personas interesadas: Acceder, rectificar y suprimir los datos, solicitar la portabilidad de los mismos, oponerse altratamiento y solicitar la limitación de éste, Procedencia de los datos: El Propio interesado, Información Adicional: Puede consultarse la información adicional y detallada sobre protección de datos Aquí.
Red Palm Estate
WhatsApp