NOUVEAU COMPLEXE RÉSIDENTIEL PRÈS D'ESTEPONA
Nouvelle construction d'un développement exclusif situé à Cancelada, l'un des meilleurs quartiers du nouveau Golden Mile d'Estepona.
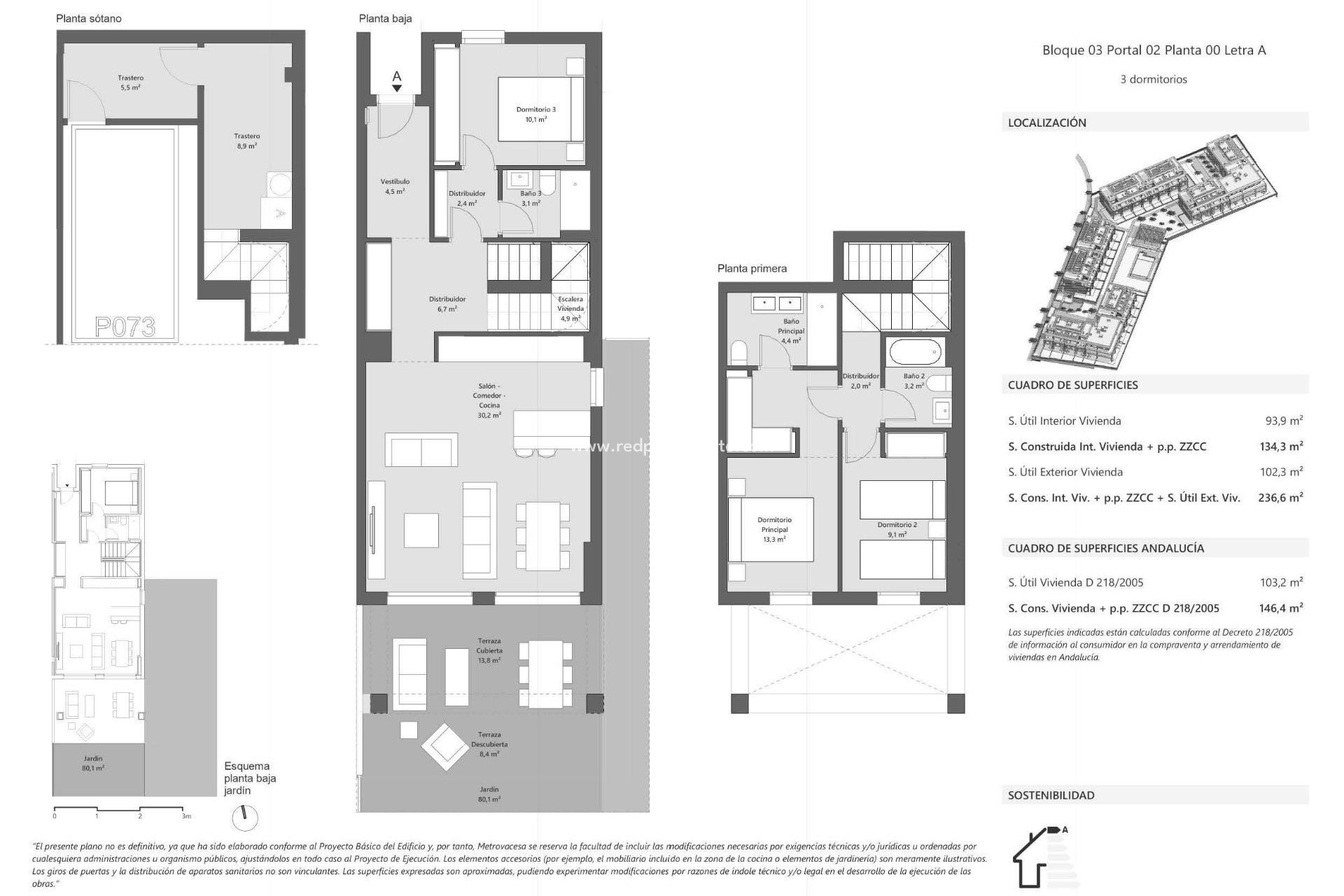
Le complexe résidentiel comprend 82 propriétés réparties sur 4 étages, principalement des duplex, avec 2 et 3 chambres à coucher avec terrasses et/ou jardins, ainsi que des penthouses avec solariums.
Toutes les propriétés disposent d'un débarras et d'un garage, et la plupart d'entre elles offrent une vue magnifique sur la mer Méditerranée.
Le complexe dispose d'une piscine, idéale pour profiter de plus de 320 jours de soleil et de beau temps que la Costa del Sol a à offrir, seul ou en famille. Vous aurez également accès à une salle de sport intérieure équipée, à une aire de sport extérieure, à deux terrains de pétanque et au Club House exclusif de Cancelada.
Située dans un endroit privilégié, à côté d'Estepona, à quelques minutes de la plage et à proximité des terrains de golf. À seulement 10 minutes de Marbella et 45 minutes de l'aéroport international de Malaga.
Vous pourrez profiter d'une réelle qualité de vie, avec une température moyenne annuelle de 20º et plus de 320 jours de soleil par an. Vous pourrez profiter d'une grande variété de terrains de golf, de kilomètres de côtes tranquilles, du soleil, de la nature et de la gastronomie de la région, de ses restaurants internationaux à sa cuisine locale accueillante.
L'hôtel allie parfaitement la tradition de ses rues pavées, de ses maisons blanchies à la chaux et de ses patios avec leurs pots de fleurs colorés, à la modernité et aux meilleures installations de loisirs de la Costa del Sol. Sa situation privilégiée entre la mer et la montagne en fait l'une des destinations touristiques les plus attrayantes de la province.
410