Nouvelle construction » Appartement » Santa

NOUVEAU COMPLEXE RÉSIDENTIEL A SANTA POLA Santa Pola, Estacion de autobuses

Les caractéristiques

NOUVEAU COMPLEXE RÉSIDENTIEL A SANTA POLA Santa Pola, Estacion de autobuses

NOUVEAU COMPLEXE RÉSIDENTIEL A SANTA POLA

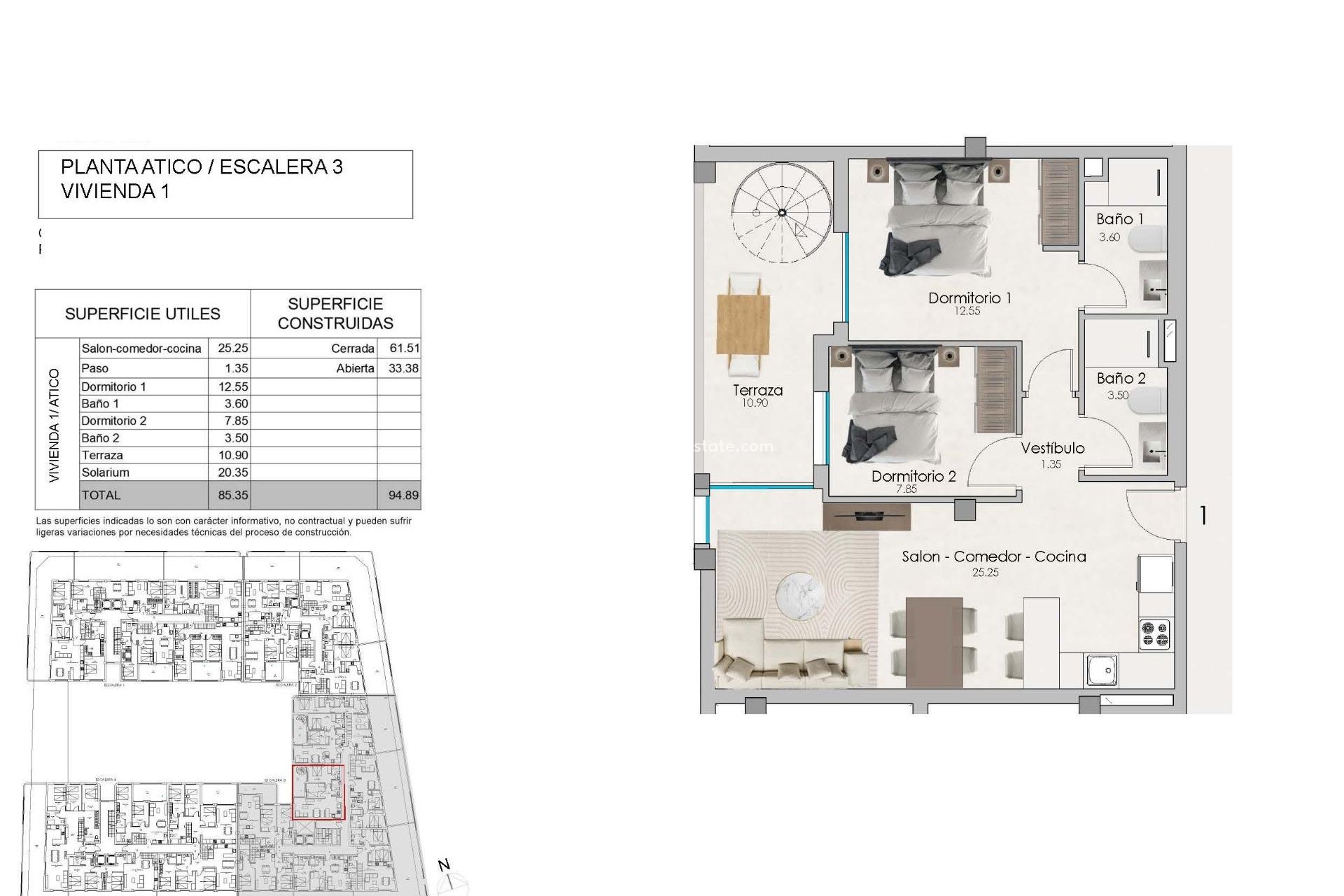
  • Mètres 94m2
  • Chambres 2
  • Salles de bain 2
  • Piscine Oui
Chambres:2
Salles de bain: 2
Construit: 94m2
Utile: 85m2
Piscine: Oui
Distance à la plage: 1000 Mts.
Énergie: B
À proximité de la ligne de bus
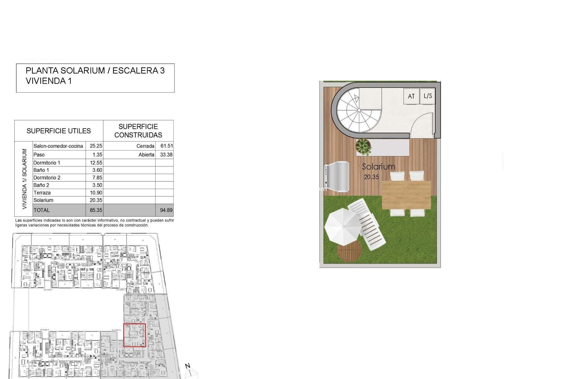
Solarium : Oui
Piscine commune
Salle de sport
Fermé
Nombre de places de stationnement : 1
Près des écoles
Près du centre commercial
Ascenseur/Ascenseur
Emplacement : Côtier, Urbanisation
Climatisation : Pré-installée
Chambres doubles : 2
Plage : 1000 mètres
Terrasse : 30 m².
Espace de construction utilisable : 85 M².
Place de parking
Stockage / Trastero

La description

Carte

Commencez une nouvelle vie

Faire une enquête

Responsable del tratamiento: Red Palm Estate SL, Finalidad del tratamiento: Gestión y control de los servicios ofrecidos a través de la página Web de Servicios inmobiliarios, Envío de información a traves de newsletter y otros, Legitimación: Por consentimiento, Destinatarios: No se cederan los datos, salvo para elaborar contabilidad, Derechos de las personas interesadas: Acceder, rectificar y suprimir los datos, solicitar la portabilidad de los mismos, oponerse altratamiento y solicitar la limitación de éste, Procedencia de los datos: El Propio interesado, Información Adicional: Puede consultarse la información adicional y detallada sobre protección de datos Aquí.
Red Palm Estate
WhatsApp