Nouvelle construction » Appartements » Este

Vie moderne à Estepona : Appartements spacieux avec terrasses ensoleillées Estepona, La Gaspara

Les caractéristiques

Vie moderne à Estepona : Appartements spacieux avec terrasses ensoleillées Estepona, La Gaspara

Vie moderne à Estepona : Appartements spacieux avec terrasses ensoleillées

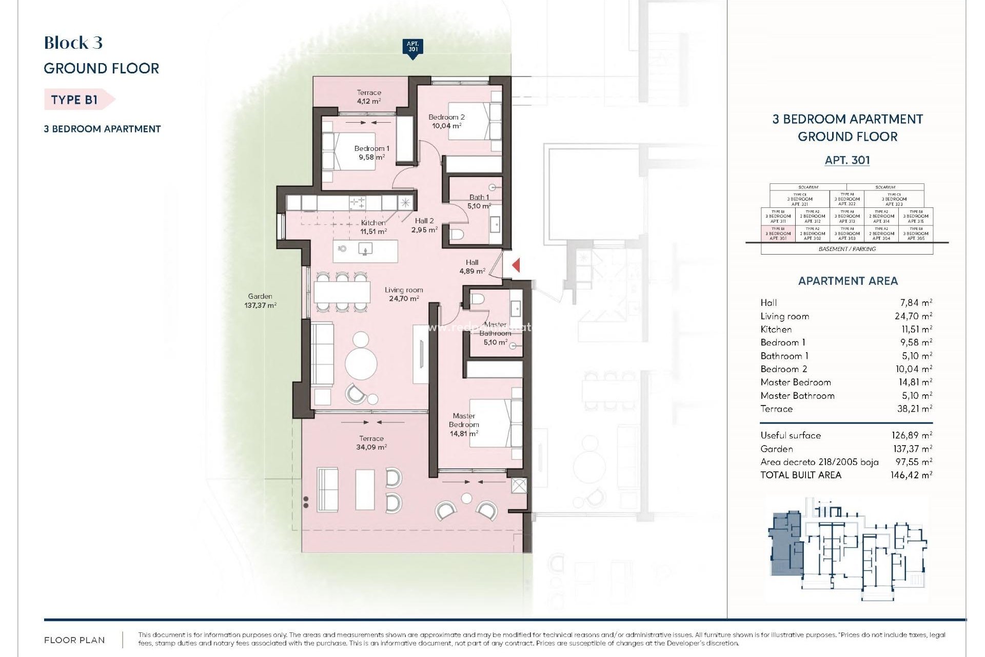
  • Mètres 133m2
  • Chambres 3
  • Salles de bain 2
  • Piscine Oui
Chambres:3
Salles de bain: 2
Construit: 133m2
Utile: 117m2
Piscine: Oui
Distance à la plage: 800 Mts.
Énergie: B
Piscine commune
Fermé
Nombre de places de stationnement : 1
Près des écoles
Près du centre commercial
Chambres doubles : 3
Ascenseur/Ascenseur
Plage : 800 mètres
Emplacement : Côtier, Urbanisation
Près des arbres
Terrasse : 33 m².
Espace de construction utilisable : 117 m².
Place de parking
Chauffage : Oui, Climatisation : Oui
Stockage / Trastero

La description

Carte

Commencez une nouvelle vie

Faire une enquête

Responsable del tratamiento: Red Palm Estate SL, Finalidad del tratamiento: Gestión y control de los servicios ofrecidos a través de la página Web de Servicios inmobiliarios, Envío de información a traves de newsletter y otros, Legitimación: Por consentimiento, Destinatarios: No se cederan los datos, salvo para elaborar contabilidad, Derechos de las personas interesadas: Acceder, rectificar y suprimir los datos, solicitar la portabilidad de los mismos, oponerse altratamiento y solicitar la limitación de éste, Procedencia de los datos: El Propio interesado, Información Adicional: Puede consultarse la información adicional y detallada sobre protección de datos Aquí.
Red Palm Estate
WhatsApp