Vie méditerranéenne exclusive à Lo Marabú, Ciudad Quesada
Situation privilégiée, nature et commodité
Découvrez le charme de la vie à Lo Marabú, Ciudad Quesada, un quartier résidentiel exclusif qui allie le confort moderne à la beauté de la nature méditerranéenne. Niché dans un emplacement de choix, ce lotissement offre un accès facile aux services essentiels tout en proposant un environnement serein et tranquille. À quelques minutes en voiture, vous trouverez les magnifiques lagunes salées de La Mata et de Torrevieja, un paradis pour les amoureux de la nature, les photographes et les personnes en quête de bien-être.
Plages magnifiques et activités de plein air
À seulement 15 minutes en voiture, les plages préservées de Guardamar del Segura et de Torrevieja vous invitent à profiter des dunes dorées et des eaux cristallines. Ces joyaux du littoral offrent des possibilités de détente, de sports nautiques et de promenades pittoresques le long du rivage. Les amateurs de plein air trouveront dans la région de nombreux sentiers de randonnée et pistes cyclables, tandis que les golfeurs apprécieront la proximité de plusieurs terrains de golf prestigieux, qui leur permettront de vivre une expérience sportive de premier ordre.
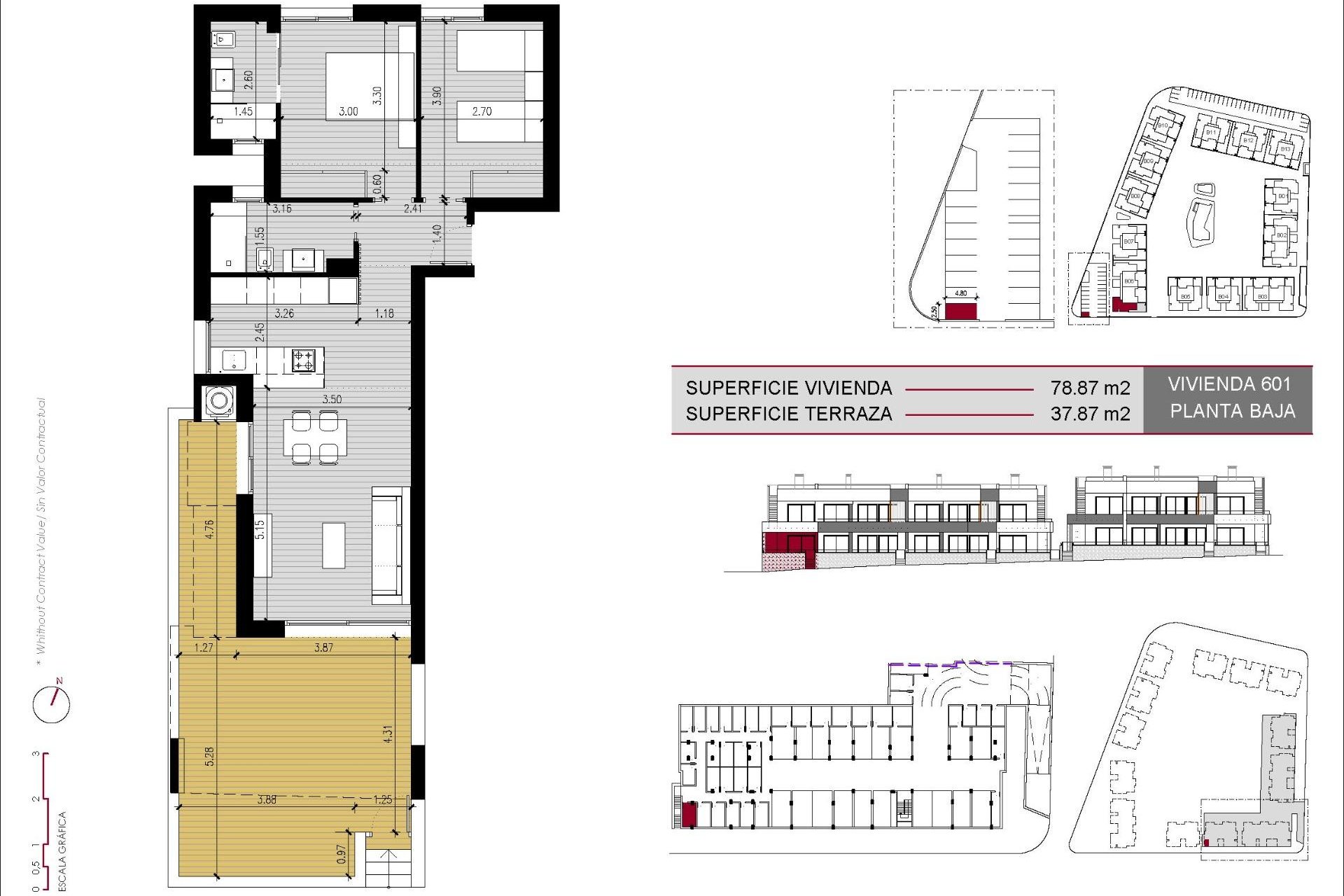
Des maisons et des équipements de grande qualité
Ce complexe résidentiel propose des maisons bien conçues, notamment
Bungalows : Des unités au rez-de-chaussée avec des jardins privés ou des options au dernier étage avec des solariums. Tous les bungalows comprennent deux chambres à coucher, deux salles de bains, une place de parking et un débarras, autour d'une zone commune centrale avec piscine et jardins paysagers.
Villas : Propriétés indépendantes avec trois chambres et trois salles de bains, disponibles sur un ou deux étages. Chaque villa comprend une piscine privée, un solarium et un parking sur le terrain. Des sous-sols sont également disponibles en option.
Confort moderne et caractéristiques exceptionnelles
Chaque maison est construite avec des matériaux et des finitions de première qualité :
Fenêtres en PVC avec double vitrage et volets motorisés télécommandés.
Chauffage électrique par le sol dans les salles de bains.
Installation d'air conditionné canalisé.
Villas avec piscines privées (3,00 x 6,00 m) et douches en acier inoxydable.
Piscines communautaires avec zone pour enfants pour les résidents des bungalows.
Dans le cadre d'une offre spéciale de lancement, certains logements sont équipés de produits blancs et d'un ensemble de meubles.
Excellente connectivité et points forts locaux
Stratégiquement situé à Rojales, Alicante, ce projet offre d'excellentes infrastructures et connexions :
Aéroport Alicante-Elche (ALC) : 38 km (35 minutes en voiture).
Aéroport de Murcia-Corvera (RMU) : 65 km (50 minutes en voiture).
La proximité de routes principales telles que l'AP-7 et la N-332 permet d'accéder facilement aux villes et attractions voisines.
Les centres commerciaux, les restaurants et les services quotidiens sont accessibles à pied.
Embrasser la vie méditerranéenne
Avec son mélange parfait de vie moderne, de beauté naturelle et de commodité inégalée, ce complexe résidentiel à Lo Marabú est le choix idéal pour ceux qui recherchent un style de vie de haute qualité. Ne manquez pas l'occasion d'investir dans la maison de vos rêves au cœur de la Méditerranée.
Contactez-nous dès aujourd'hui pour planifier une visite ou pour en savoir plus sur ce projet exceptionnel !
410