Opportunité unique !
Vivez un rêve dans cette villa de luxe située dans le prestigieux complexe aguas nuevas à Torrevieja, un emplacement idéal, à proximité des commodités et à quelques minutes de tout.
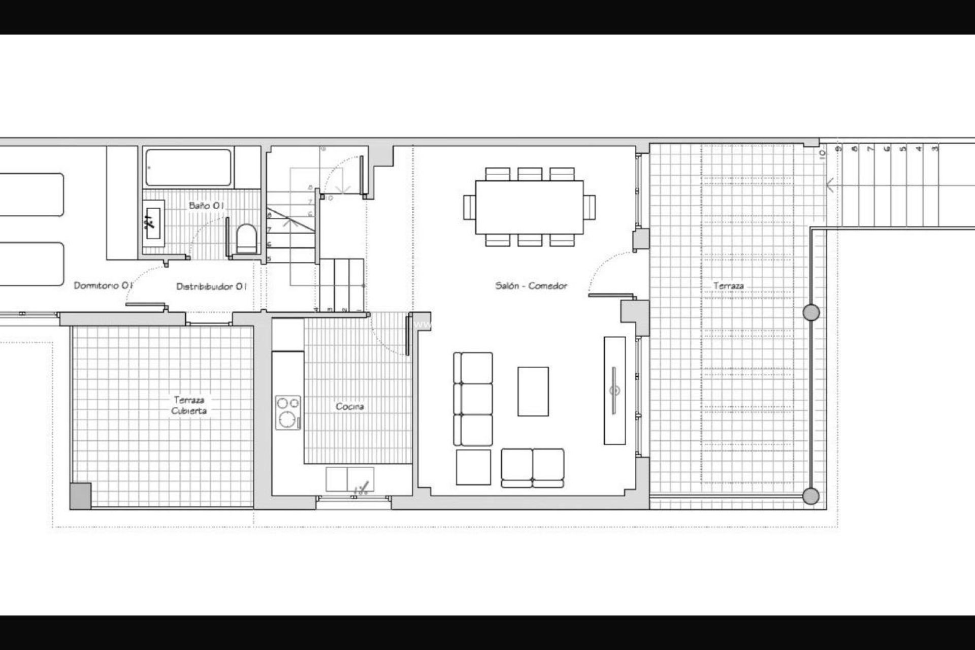
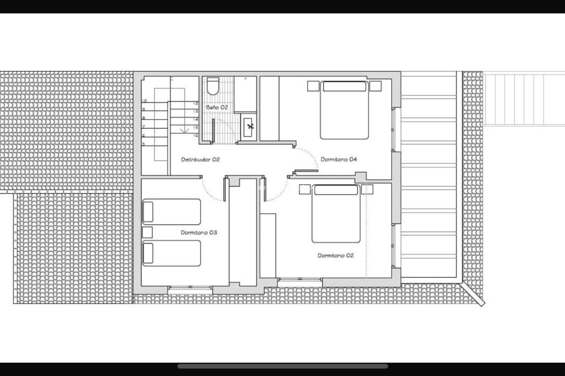
Cette incroyable maison dispose de 4 chambres spacieuses et de 2 salles de bains, conçues pour votre confort.
De plus, vous profiterez d'une très grande cuisine indépendante pour cuisiner sans fumées dans le reste de la maison.
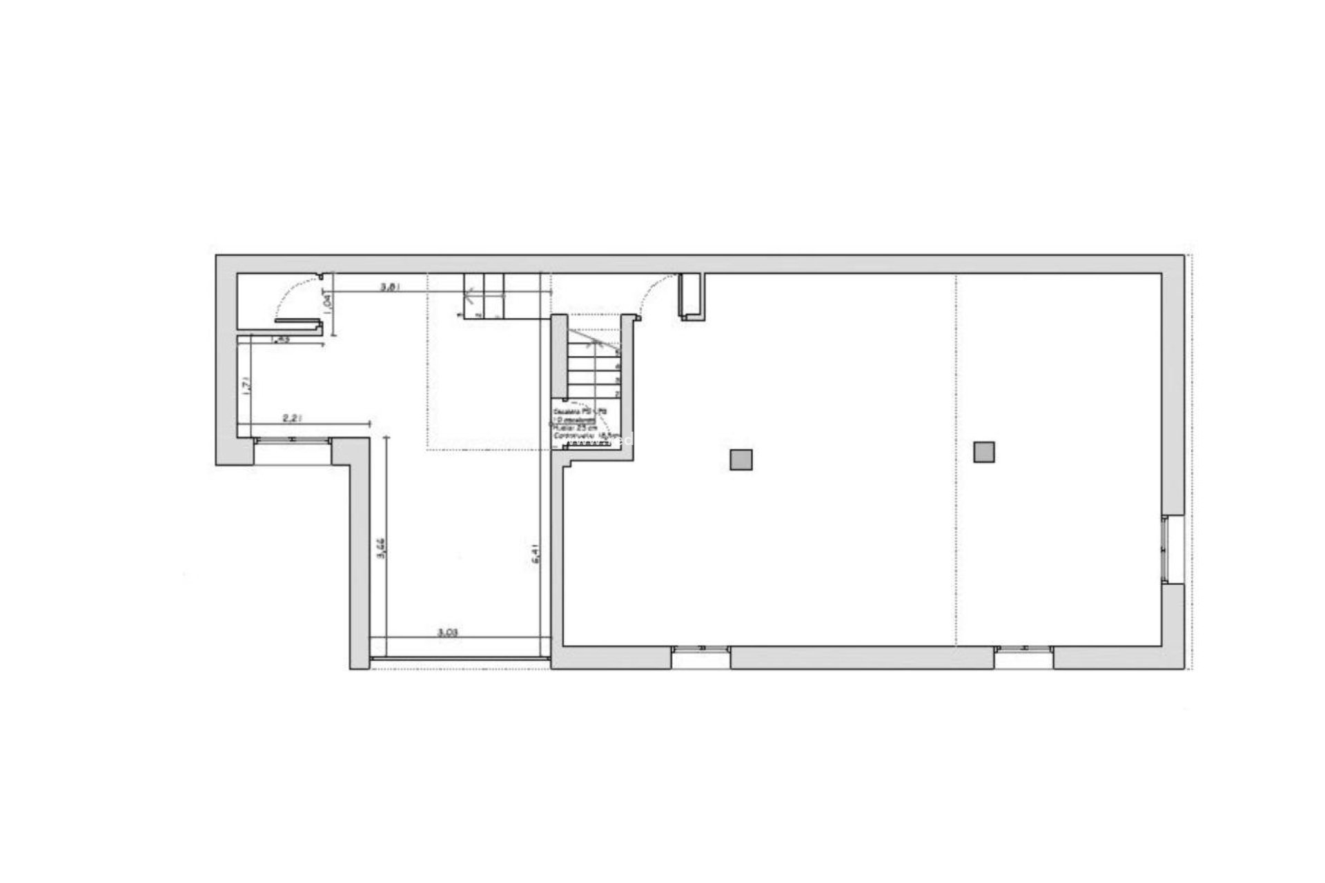
Et ce n'est pas tout : cette maison offre plus de 200 m² habitables avec de grands espaces tels qu'un garage fermé et un grand salon pouvant servir de salle de jeux, de cinéma ou même de grande salle de réception.
Ne manquez pas cette opportunité ! Contactez-nous pour découvrir comment cette magnifique villa de luxe pourrait devenir votre nouveau foyer.
Vous envisagez de vendre votre bien et d'acquérir l'appartement de vos rêves ? Notre agence vous propose une estimation gratuite, forte de plus de 20 ans d'expérience dans le secteur et des données de vente les plus récentes. Nous vous aidons à conclure une vente rapide et avantageuse pour que vous puissiez commencer à profiter de la vie dont vous avez toujours rêvé en bord de mer.
Contactez-nous dès maintenant et faites le premier pas vers votre nouvelle vie sur la Costa Blanca !