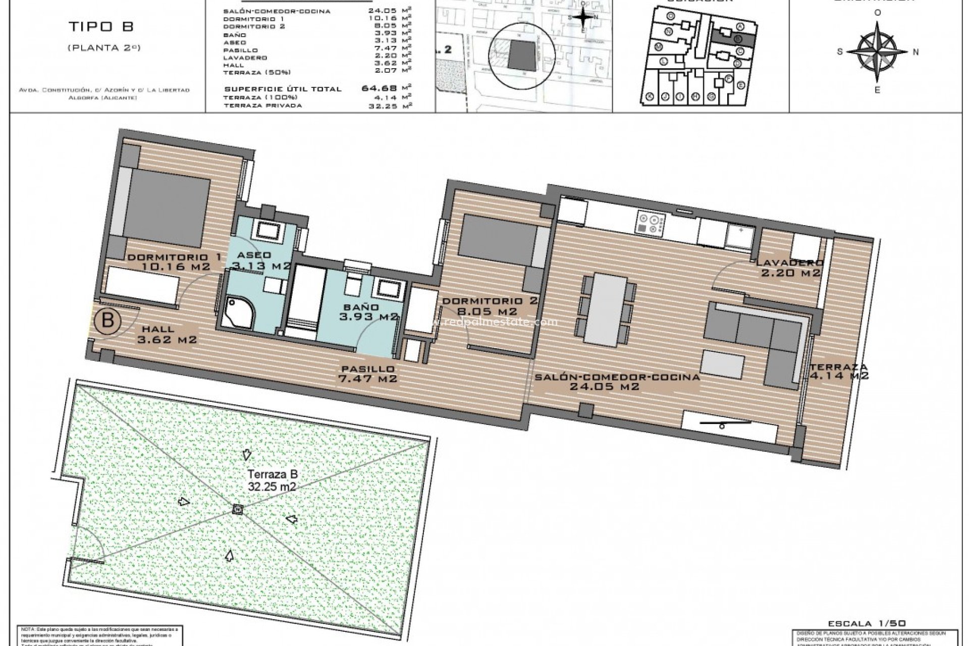
Algorfa – Appartement en revente dans une résidence moderne avec solarium privé, piscine et vueAppartement en revente situé dans un complexe résidentiel récent à Algorfa. Acheté sur plan par un particulier, ce bien n'a jamais été habité. Il est actuellement revendu par son premier propriétaire, les finitions étant encore en cours, offrant une opportunité quasi neuve, avec une livraison prévue pour septembre 2025.Situé au 2ème et dernier étage, avec accès par ascenseur, l'appartement comprend :Un hall d'entrée menant à2 chambres avec placards intégrés2 salles de bains entièrement équipées avec douchesUn séjour-salle à manger lumineux avec une cuisine ouverte aux finitions imitation bois, équipée d'un lave-vaisselle, d'une plaque vitrocéramique, d'une hotte aspirante, d'un micro-ondes, d'un four et d'un réfrigérateurUne buanderieUn balcon avec vue dégagée sur les environs et les montagnes, accessible par des portes coulissantes en verreSur le toit, profitez d'un solarium privatif de 32 m², idéal pour bronzer, dîner ou se détendre.Au sous-sol :Une place de parking privée sécuriséeUn débarras (trastero)Tous deux accessibles par ascenseurLes équipements communs comprennent :Une piscine sur le toitUne salle de fitness Certificat énergétique attendu : ASpécifications (rapport qualité) disponibles sur demandeÀ propos d'AlgorfaAlgorfa est une charmante ville espagnole située au sud de la Costa Blanca, près de Guardamar del Segura et de Torrevieja. Entourée de vergers d'agrumes et de collines vallonnées, elle offre un cadre paisible et authentique, ensoleillé presque toute l'année.À seulement 35 minutes de l'aéroport d'Alicante, Algorfa allie nature, marchés locaux, art de vivre méditerranéen et le prestigieux La Finca Golf Resort. C'est un lieu idéal pour une résidence principale, une maison de vacances ou un investissement locatif sûr.